Logo Passei Direto
Buscar

Ferramentas de estudo

Material
páginas com resultados encontrados.
páginas com resultados encontrados.
left-side-bubbles-backgroundright-side-bubbles-background

Crie sua conta grátis para liberar esse material. 🤩

Já tem uma conta?

Ao continuar, você aceita os Termos de Uso e Política de Privacidade

left-side-bubbles-backgroundright-side-bubbles-background

Crie sua conta grátis para liberar esse material. 🤩

Já tem uma conta?

Ao continuar, você aceita os Termos de Uso e Política de Privacidade

left-side-bubbles-backgroundright-side-bubbles-background

Crie sua conta grátis para liberar esse material. 🤩

Já tem uma conta?

Ao continuar, você aceita os Termos de Uso e Política de Privacidade

Prévia do material em texto

COORDENAÇÃO DE ENGENHARIA ELÉTRICA - COEEL 
Docente: Leonardo Souza Caires 
Disciplina: Conversão Eletromecânica 
Período: ________________ 
Data: ____/____/____ 
Graduação em Engenharia Elétrica 
 Aluno(s) : ____________________________________________ Nota: _________ 
 
Atividade Complementar 5 
Livro Vicent Del Toro - Fundamentos de Máquinas Elétricas 
 
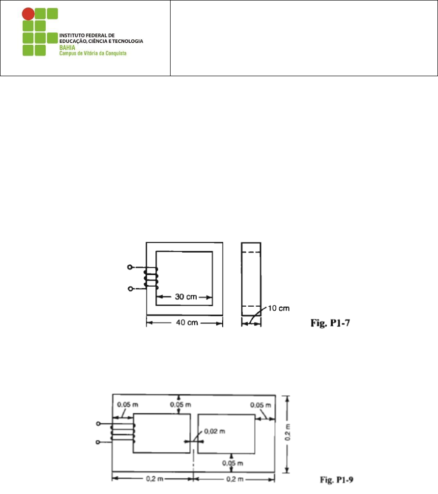
Questão 1.7 Um circuito magnético composto de chapas de aço-silício tem o formato quadrado 
indicado na Fig. P1-7. 
a) Calcule a Fmm necessária para produzir um fluxo no núcleo de 25.10⁻⁴ Wb. 
b) Se a bobina tem 80 espiras, qual o valor da corrente que deve circular através da bobina? 
 
Questão 1.9 No circuito magnético da Fig. P1-9, determine a Fmm da bobina necessária para 
produzir um fluxo de 0,0014Wb na perna direita. A espessura do circuito magnético é de 0,04m e 
é uniforma ao longo de todo o seu comprimento. É usado aço-silício médio. 
 
 
Questão 1.27 No circuito magnético da Fig. P1-27, a área da seção transversal do entreferro é 
0,0025m² e seu comprimento é 0,05cm. Além disso o núcleo de aço fundido tem um comprimento 
médio de 0,2m e tem um enrolamento de 1000 espiras. Deseja-se operar o circuito com uma 
densidade no entreferro de 1T. 
a) Calcule a corrente necessária na bobina para estabelecer essa densidade no entreferro. 
b) Calcule a enérgica armazenada no entreferro. 
c) Calcule a enérgica armazenada na seção e aço fundido do circuito 
d) Qual a indutância, em henrys, deste circuito magnético? 
 
 
 
Livro do Fitzgerald - Máquinas Elétricas 6° Edição 
Questão 1.12 O indutor da Figura 1.27 tem um núcleo de seção reta circular uniforme de área Ac, 
Comprimento médio lc, permeabilidade relativa μr e um enrolamento de N espiras. Escreva uma 
expressão para a indutância L. 
 
Questão 1.14 O indutor do problema 1.13 deve operar com uma fonte de tensão de 60Hz. O indutor 
da Figura 1.27 tem as seguintes dimensões: 
Ac = 1,0cm² 
lc = 15cm 
g = 0,8mm 
N = 480esp 
μr = 1000 
a) Supondo uma resistência de bobina desprezível, calcule a tensão eficaz no indutor que corresponde 
a uma densidade de fluxo de pico no núcleo de 1,5T. 
b) Sob essa condição de operação, calcule a corrente eficaz e a energia armazenada de pico. 
 
Questão 1.22 O circuito magnético da Fig. 1.32 tem dois enrolamentos e dois entreferros. Pode-se 
supor que o núcleo tenha permeabilidade infinita. As dimensões do núcleo são indicadas na figura. 
a) Supondo que a bobina 1esteja conduzindo uma corrente I1 e a corrente na bobina 2 seja zero, calcule 
(i) a densidade de fluxo magnético em cada um dos entreferros, (ii) o fluxo concatenado do 
enrolamento 1 e (iii) o fluxo concatenado do enrolamento2. 
b) Repita a parte (a), supondo uma corrente zero no enrolamento 1 e uma corrente I2 no enrolamento 
2. 
c) Repita a parte (a) supondo que a corrente do enrolamento 1 seja I1 e a corrente do enrolamento 2 
seja I2. 
d) Encontre as indutâncias próprias dos enrolamentos 1 e 2, e a indutância mútua entre os 
enrolamentos. 
 
 
Questão 1.23 O circuito magnético da Fig. 1.33 tem três enrolamentos. Os enrolamentos A e B tem N 
espiras cada um e são enrolados nas duas pernas inferiores do núcleo. As dimensões do núcleo estão 
na figura. 
a) Encontre a indutância própria de cada um dos enrolamentos. 
b) Encontre as indutâncias mútuas entres os três pares de enrolamentos. 
c) Encontre a tensão induzida no enrolamento 1 quando as correntes Ia(t) e Ib(t) dos enrolamentos A 
e B estão variando no tempo. Mostre que essa tensão pode ser usada para medir o desequilíbrio 
(diferença) entre duas correntes senoidais de mesma frequência.