em 27/11/2024
UNIFG
PUC-SP
UNICSUL
UNICID
UEM
UNIFATECIE
Prévia do material em texto
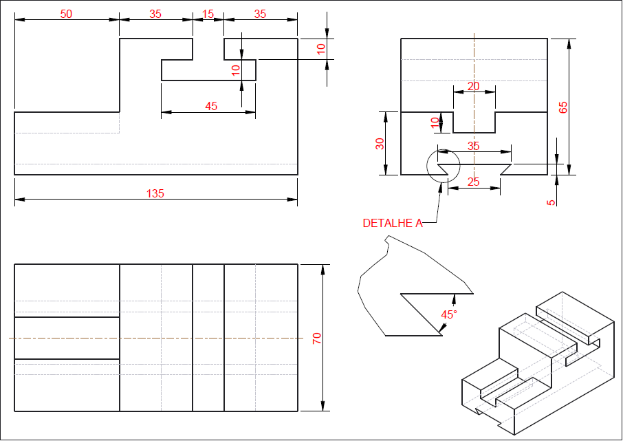
50 35 15 35 20 45 35 25 135 5 DETALHE A 45°