Logo Passei Direto
Buscar
Material
páginas com resultados encontrados.
páginas com resultados encontrados.
details

Libere esse material sem enrolação!

Craque NetoCraque Neto

Ao continuar, você aceita os Termos de Uso e Política de Privacidade

details

Libere esse material sem enrolação!

Craque NetoCraque Neto

Ao continuar, você aceita os Termos de Uso e Política de Privacidade

Prévia do material em texto

CURSO: ENGENHARIA CIVIL 
DISCIPLINA: ESTRUTURAS DE MADEIRAS E 
PROFESSORA: LUANA MARIS 
 
 
Entrega: até 26/11/24 através do forms: 
https://forms.gle/E4vSjGykyLzfr65F7 
 
1. Calcular a altura necessária da viga de madeira abaixo, considerando situação duradoura de projeto, com 
carregamento de longa duração. Supor que a viga está travada ao longo de seu comprimento. 
 
Dados: 
 
 Cargas permanentes, valores característicos. 
 Madeira: Classe D40, serrada e ambiente classe de umidade 3. 
 
 
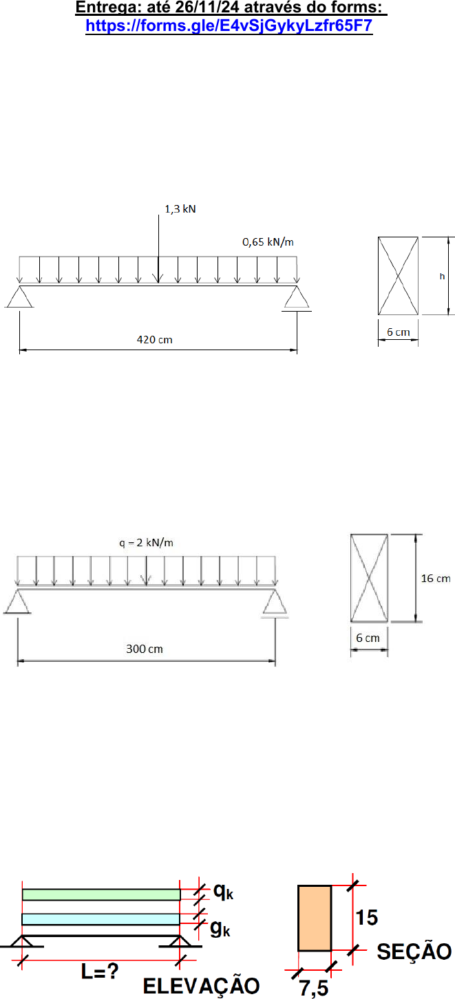
2. Verificar se a viga de madeira indicada na figura satisfaz as condições de segurança (estados limites 
últimos e estados limites de utilização). Considerar contraventamentos laterais nas extremidades da viga 
e carregamento de longa duração. 
 
Dados: 
 
 Cargas permanentes, valores característicos. 
 Madeira: classe D30, serrada e ambiente classe de umidade 3. 
 
 
3. Determinar o máximo valor do vão “L” da viga de madeira indicada nas figuras, sujeita à flexão simples 
reta, para que sejam respeitadas as condições de segurança (estados limites últimos e estados limites 
de utilização). Considerar contraventamentos laterais nas extremidades da viga e carregamento de longa 
duração. 
 
Dados: 
 
 Esforços atuantes: gk = 0,4 kN/m (permanente), qk = 2,4 kN/m (sobrecarga, local sem elevada 
concentração de pessoas). 
 Madeira: Classe D40, serrada e ambiente classe de umidade 3. 
 
https://forms.gle/E4vSjGykyLzfr65F7
Usuário
Realce
Usuário
Realce
CURSO: ENGENHARIA CIVIL 
DISCIPLINA: ESTRUTURAS DE MADEIRAS E 
PROFESSORA: LUANA MARIS 
 
 
4. Determinar, para a viga de madeira abaixo, o máximo valor da carga uniforme distribuída “qk” que pode 
ser aplicada, considerando situação duradoura de projeto, com carregamento de longa duração. Supor 
que a viga está travada ao longo de seu comprimento. 
 
Dados: 
 
 Esforços atuantes: gk = 2,0 kN/m (permanente), qk = ? kN/m (sobrecarga, local sem elevada 
concentração de pessoas). 
 Madeira: Classe D60, serrada e ambiente classe de umidade 3. 
 
 
5. Verificar se a viga de madeira indicada na figura satisfaz as condições de segurança (estados limites 
últimos e estados limites de utilização). Supor que a viga está travada ao longo de seu comprimento e 
carregamento de longa duração. 
 
Dados: 
 
 Esforços atuantes: gk = 1,5 kN/m (permanente), Pk = 1,0 kN (sobrecarga, local sem elevada 
concentração de pessoas). 
 Madeira: Classe D40, serrada e ambiente classe de umidade 3.

Mais conteúdos dessa disciplina