Logo Passei Direto
Buscar

Ferramentas de estudo

Questões resolvidas

Analise o consolo de concreto armado mostrado na figura em que a representa a distância da força aplicada no consolo até a face do pilar e d representa a altura útil de cálculo do consolo.
Segundo a NBR 6118, os consolos de concreto podem ser dimensionados segundo um modelo de biela e tirante, sendo classificados como consolos curtos, desde que:
a) 0,5 < a/d ≤ 1,0.
b) a/d ≤ 0,5.
c) 0,2 < a/d ≤ 0,5.
d) 1,0 < a/d ≤ 0,50.
e) a/d ≤ 1,0.

Determinar a área de aço necessária para o consolo a seguir: Fck = 30 MPa; Cobrimento: 3,0 cm; Largura do consolo: b = 20 cm; Distância da face do pilar ao ponto de aplicação da carga: a = 25 cm; Altura do consolo: h = 55 cm; d = 50cm; P = 20 KN; H = 3 KN; Aço CA 50 armaduras do pilar (estribo = 5 mm e armadura longitudinal = 20 mm); γc = 1,4; γs = 1,15; Obs.: Apresentar cálculos.
Qual é a área de aço necessária para o consolo?
a) 1,154 cm²
b) 0,153 cm²
c) 0,234 cm²
d) 0,668 cm²
e) 0,345 cm²

A utilização de peças de concreto protendido apresenta muitas vantagens em relação às peças de concreto armado em vários aspectos, tais como os de engenharia, econômico-financeiros, sociais e ambientais. Ainda assim, o uso de peças em concreto armado é muito superior ao uso de peças em concreto protendido.
Cite as principais razões para a ocorrência deste fato.

Explique qual a diferença entre os sistemas de protensão, pré e pós-tração. E a partir dessas possibilidades, determine as soluções mais adequadas para cada tipo de obra.

Explique o que é, e qual a diferença entre os níveis de protensão, completa, limitada e parcial e a relação desses níveis com os estados limites à fissuração.

Material
páginas com resultados encontrados.
páginas com resultados encontrados.
left-side-bubbles-backgroundright-side-bubbles-background

Experimente o Premium!star struck emoji

Acesse conteúdos dessa e de diversas outras disciplinas.

Libere conteúdos
sem pagar

Ajude estudantes e ganhe conteúdos liberados!

left-side-bubbles-backgroundright-side-bubbles-background

Experimente o Premium!star struck emoji

Acesse conteúdos dessa e de diversas outras disciplinas.

Libere conteúdos
sem pagar

Ajude estudantes e ganhe conteúdos liberados!

Questões resolvidas

Analise o consolo de concreto armado mostrado na figura em que a representa a distância da força aplicada no consolo até a face do pilar e d representa a altura útil de cálculo do consolo.
Segundo a NBR 6118, os consolos de concreto podem ser dimensionados segundo um modelo de biela e tirante, sendo classificados como consolos curtos, desde que:
a) 0,5 < a/d ≤ 1,0.
b) a/d ≤ 0,5.
c) 0,2 < a/d ≤ 0,5.
d) 1,0 < a/d ≤ 0,50.
e) a/d ≤ 1,0.

Determinar a área de aço necessária para o consolo a seguir: Fck = 30 MPa; Cobrimento: 3,0 cm; Largura do consolo: b = 20 cm; Distância da face do pilar ao ponto de aplicação da carga: a = 25 cm; Altura do consolo: h = 55 cm; d = 50cm; P = 20 KN; H = 3 KN; Aço CA 50 armaduras do pilar (estribo = 5 mm e armadura longitudinal = 20 mm); γc = 1,4; γs = 1,15; Obs.: Apresentar cálculos.
Qual é a área de aço necessária para o consolo?
a) 1,154 cm²
b) 0,153 cm²
c) 0,234 cm²
d) 0,668 cm²
e) 0,345 cm²

A utilização de peças de concreto protendido apresenta muitas vantagens em relação às peças de concreto armado em vários aspectos, tais como os de engenharia, econômico-financeiros, sociais e ambientais. Ainda assim, o uso de peças em concreto armado é muito superior ao uso de peças em concreto protendido.
Cite as principais razões para a ocorrência deste fato.

Explique qual a diferença entre os sistemas de protensão, pré e pós-tração. E a partir dessas possibilidades, determine as soluções mais adequadas para cada tipo de obra.

Explique o que é, e qual a diferença entre os níveis de protensão, completa, limitada e parcial e a relação desses níveis com os estados limites à fissuração.

Prévia do material em texto

Página 1 de 2 
FACULDADE ESTÁCIO DE CURITIBA 
 
Curso Engenharia Civil Turma 
CCE0185 / 
CCE1393 
Disciplina ESTRUTURAS DE CONCRETO III Professora 
CATERINA 
VERONESE 
Data 24/11/2020 Avaliação AV2 
Aluno 
Matrícula Nota 
 
• Leia com atenção as questões antes de responder. As questões devem ser respondidas somente à 
caneta azul ou preta, na folha de respostas. 
• O tempo de resolução de prova são 12h, ou seja, as entregas serão aceitas até a amanhã as 7h da 
manhã, dia 07/10/2020, preferencialmente no TEAMS! 
 
 
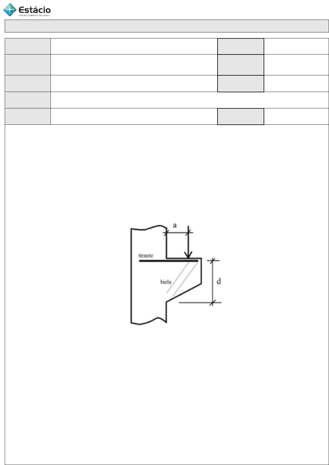
1) Analise o consolo de concreto armado mostrado na figura em que a representa a distância da força 
aplicada no consolo até a face do pilar e d representa a altura útil de cálculo do consolo. 
 
 
 
Segundo a NBR 6118, os consolos de concreto podem ser dimensionados segundo um modelo de 
biela e tirante, sendo classificados como consolos curtos, desde que: 
 
a) 0,5 < a/d ≤ 1,0. 
b) a/d ≤ 0,5. 
c) 0,2 < a/d ≤ 0,5 
d) 1,0 < a/d ≤ 0,50. 
e) a/d ≤ 1,0. 
 
 
 
 
 Página 2 de 2 
 
2) Determinar a área de aço necessária para o consolo a seguir: 
Fck = 30 MPa; 
Cobrimento: 3,0 cm; 
Largura do consolo: b = 20 cm; 
Distância da face do pilar ao ponto de aplicação da carga: a = 25 cm; 
Altura do consolo: h = 55 cm; 
d = 50cm; 
P = 20 KN; 
H = 3 KN; 
Aço CA 50 
armaduras do pilar (estribo = 5 mm e armadura longitudinal = 20 mm); 
γc = 1,4; γs = 1,15; 
Obs.: Apresentar cálculos 
 
a) 1,154 cm² 
b) 0,153 cm² 
c) 0,234 cm² 
d) 0,668 cm² 
e) 0,345 cm² 
 
3) A utilização de peças de concreto protendido apresenta muitas vantagens em relação às peças de 
concreto armado em vários aspectos, tais como os de engenharia, econômico-financeiros, sociais e 
ambientais. Ainda assim, o uso de peças em concreto armado é muito superior ao uso de peças em 
concreto protendido. Cite as principais razões para a ocorrência deste fato. 
 
 
4) Explique qual a diferença entre os sistemas de protensão, pré e pós-tração. E a partir dessas 
possibilidades, determine as soluções mais adequadas para cada tipo de obra. 
 
 
5) Explique o que é, e qual a diferença entre os níveis de protensão, completa, limitada e parcial e a 
relação desses níveis com os estados limites à fissuração.

Mais conteúdos dessa disciplina