Prévia do material em texto
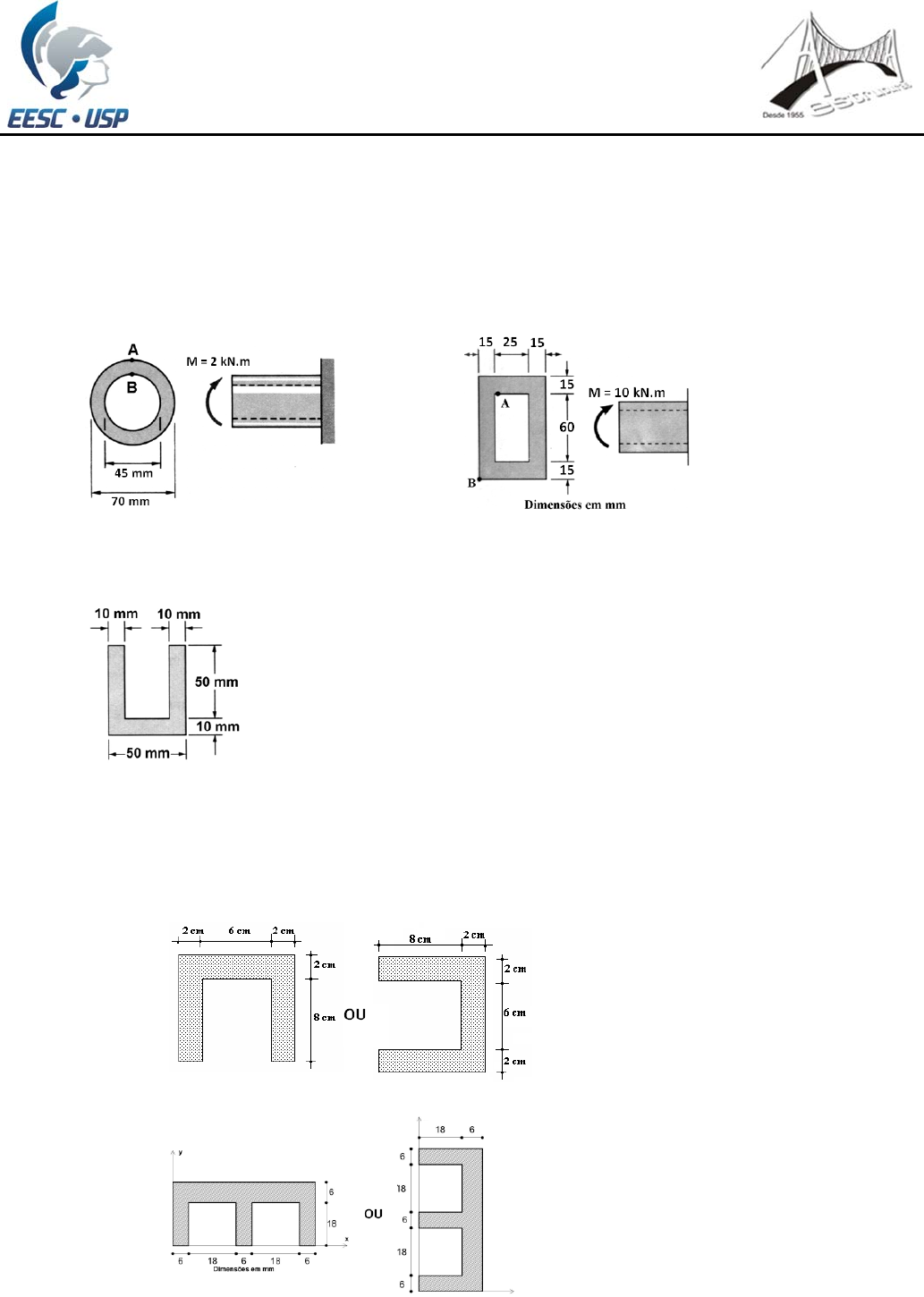
Escola de Engenharia de São Carlos / USP Departamento de Engenharia de Estruturas Lista de Exercícios – Flexão Pura 1 – Considere as vigas de seção indicada abaixo. Determine as tensões normais nos pontos A e B indicados. a) b) 2 – Determine o máximo momento fletor que pode ser aplicado à seção abaixo, considerando que a tensão admissível do material é de 150 MPa. 3 – Durante a execução de uma obra, você recebeu uma série de vigas metálicas que devem ser devidamente posicionadas. Considerando que o plano de solicitações é vertical, em que sentido as vigas abaixo devem ser posicionadas? Dica: W a) b) Escola de Engenharia de São Carlos / USP Departamento de Engenharia de Estruturas c) 4 – Considerando as figuras do exercício 3, qual o maior momento fletor que pode ser aplicado sabendo‐se que as tensões admissíveis à tração e à compressão valem, respectivamente, 120 e 150 MPa. 5 – Em uma construção existente, você foi requisitado a reforçar as vigas metálicas que compõem um dos pavimentos. Foram propostas duas maneiras de realizar o reforço. Qual das duas propostas poderia incrementar a resistência à flexão de maneira mais efetiva? Relacionada à viga sem reforço, em quanto seria esse aumento de resistência (em %)? 6 – Dada a viga composta por aço e alumínio, conforme a seção transversal mostrada na figura, determine o maior momento fletor que esta barra pode ser submetida. Considere Eaço = 210 GPa, 𝜎 ç = 120 MPa, Eal = 70 GPa, 𝜎 = 100 MPa. Escola de Engenharia de São Carlos / USP Departamento de Engenharia de Estruturas 7 – A viga de seção composta de alumínio e bronze é submetida a um momento fletor de 60 N.m. Considerando Eal = 70 GPa e Ebronze = 105 GPa, determine as tensões máximas no alumínio e no bronze. 8 – Uma viga de madeira foi reforçada em sua parte inferior com uma tira de aço. Determine a tensão máxima de tração que a viga pode resistir para a situação sem e com reforço, quando submetida a um momento no sentido apresentado na figura abaixo. Considere Eaço = 200 GPa, 𝜎 ç = 120 MPa, Emadeira = 12 GPa e 𝜎 = 50 MPa. 9 – Uma laje de concreto armado é reforçada por barras de aço de 12,5 mm de diâmetro, espaçadas em 200 mm. Se o concreto tem tensão admissível de 15 MPa e o aço admite tensão de 120 MPa, determine o maior momento fletor positivo que pode ser aplicado por metro de laje. Considere Eaço = 200 GPa e Econc = 20 GPa. Escola de Engenharia de São Carlos / USP Departamento de Engenharia de Estruturas 10 – Uma viga de concreto armado é composta por três barras de aço de 25 mm de diâmetro. Admitindo que as tensões admissíveis do aço e do concreto sejam, respectivamente, 150 MPa e 12 MPa, determine o maior momento que pode atuar na viga. Considere Eaço = 200 GPa e Econc = 20 GPa. 11 – Considerando as vigas abaixo, determine o valor das tensões normais nos pontos A, B e D indicados, assim como o ângulo que a linha neutra forma com a horizontal. 12 – Se o momento que atua na seção transversal de alumínio abaixo indicada vale M = 520 N.m, determine as tensões normais nos pontos A e B. Determine também o ângulo que a linha neutra forma com a horizontal.