Logo Passei Direto
Buscar
Material
páginas com resultados encontrados.
páginas com resultados encontrados.
left-side-bubbles-backgroundright-side-bubbles-background

Crie sua conta grátis para liberar esse material. 🤩

Já tem uma conta?

Ao continuar, você aceita os Termos de Uso e Política de Privacidade

Prévia do material em texto

LISTA DE EXERCÍCIOS 
Questão 01 
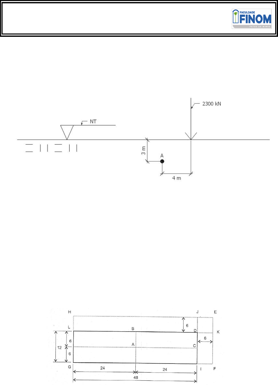
Uma torre foi construída na superfície de um terreno, aplicando sobre o mesmo uma carga pontual de 
2300 kN. Calcule o acréscimo da tensão vertical no ponto A devido à construção dessa torre. 
 
 
Questão 02 
Um tanque metálico circular, com 14 m de diâmetro, foi construído com fundação direta, na superfície, 
num terreno plano e horizontal, para estocagem de combustível. O tanque deverá transmitir ao terreno 
uma pressão de 50 kPa. Para a previsão de eventuais recalques, desejam-se conhecer os acréscimos de 
tensão a 3,5 e a 7 m de profundidade, no centro e na periferia do tanque. 
 
 
Questão 03 
Uma construção industrial apresenta uma planta retangular, com 12 m de largura e 48 m de comprimento, 
e vai aplicar ao terreno uma pressão distribuída de 50 kPa. Determinar o acrécimo de tensão nos pontos A 
e D, a 6 m e a 28 m de profundidade aplicando a solução de Newmark. 
 
Exercícios Curso:Engenharia Civil Turma: EC-7NA-PM 
Disciplina: Mecânica dos Solos II Professora: Marina da Mota Pereira 
Valor: 1,5 ponto Data: 12/04/2018 
NOME LEGÍVEL: ______________________________________________________

Mais conteúdos dessa disciplina