Logo Passei Direto
Buscar

Ferramentas de estudo

Questões resolvidas

Duas placas paralelas (uma superior e uma inferior) estão situadas a 2,5mm de distância. Entre as placas tem-se um líquido de massa específica de 900 kg/m3. Sob a ação de uma força tangencial, a placa superior move-se com velocidade de 2,0m/s, enquanto que a inferior está com velocidade= 0. Sabendo que é gerada uma tensão de cisalhamento de 10N/m2, Calcular a viscosidade dinâmica (µ) do líquido em Ns/m2 e a viscosidade cinemática do líquido em m2/s.

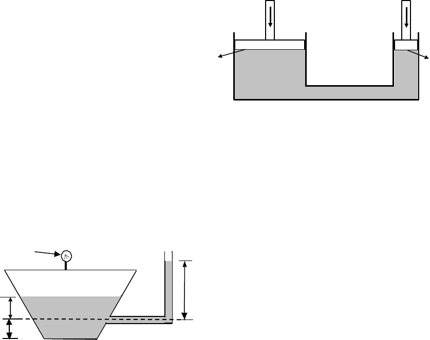
A figura mostra um tanque fechado que contém água. O manômetro indica que a pressão do ar é 5500 kgf/m2. Determine: a) a altura h da coluna aberta em “m”; b) a pressão no fundo do tanque em kgf/m2; c) a pressão absoluta do ar no topo do tanque, considerando uma pressão atmosférica de 10330 kgf/m2; d) considerar peso específico da água= 1000 kgf/m3.

Um tanque fechado contém ar comprimido e um líquido que apresenta peso específico igual a 900kgf/m3. O fluido utilizado no manômetro em “U” conectado ao tanque é mercúrio (peso específico=13600kgf/m3). Sabendo que h1= 920 mm e h2 = 155mm, correspondem ao líquido e h3= 230mm, corresponde ao mercúrio. Determine a pressão em kgf/m2 apresentada pelo manômetro localizado no topo do tanque.

Dois tanques de combustível pressurizados estão interconectados por uma tubulação conforme mostra a figura abaixo. Dado que o manômetro metálico M1 indica uma pressão de 4500kgf/m2 e que o peso específico do combustível é 800kgf/m3, determine: a) a pressão indicada pelo manômetro M2 em kgf/m2; b) a pressão indicada pelo manômetro M3 em kgf/m2.

Material
páginas com resultados encontrados.
páginas com resultados encontrados.
left-side-bubbles-backgroundright-side-bubbles-background

Crie sua conta grátis para liberar esse material. 🤩

Já tem uma conta?

Ao continuar, você aceita os Termos de Uso e Política de Privacidade

left-side-bubbles-backgroundright-side-bubbles-background

Crie sua conta grátis para liberar esse material. 🤩

Já tem uma conta?

Ao continuar, você aceita os Termos de Uso e Política de Privacidade

Questões resolvidas

Duas placas paralelas (uma superior e uma inferior) estão situadas a 2,5mm de distância. Entre as placas tem-se um líquido de massa específica de 900 kg/m3. Sob a ação de uma força tangencial, a placa superior move-se com velocidade de 2,0m/s, enquanto que a inferior está com velocidade= 0. Sabendo que é gerada uma tensão de cisalhamento de 10N/m2, Calcular a viscosidade dinâmica (µ) do líquido em Ns/m2 e a viscosidade cinemática do líquido em m2/s.

A figura mostra um tanque fechado que contém água. O manômetro indica que a pressão do ar é 5500 kgf/m2. Determine: a) a altura h da coluna aberta em “m”; b) a pressão no fundo do tanque em kgf/m2; c) a pressão absoluta do ar no topo do tanque, considerando uma pressão atmosférica de 10330 kgf/m2; d) considerar peso específico da água= 1000 kgf/m3.

Um tanque fechado contém ar comprimido e um líquido que apresenta peso específico igual a 900kgf/m3. O fluido utilizado no manômetro em “U” conectado ao tanque é mercúrio (peso específico=13600kgf/m3). Sabendo que h1= 920 mm e h2 = 155mm, correspondem ao líquido e h3= 230mm, corresponde ao mercúrio. Determine a pressão em kgf/m2 apresentada pelo manômetro localizado no topo do tanque.

Dois tanques de combustível pressurizados estão interconectados por uma tubulação conforme mostra a figura abaixo. Dado que o manômetro metálico M1 indica uma pressão de 4500kgf/m2 e que o peso específico do combustível é 800kgf/m3, determine: a) a pressão indicada pelo manômetro M2 em kgf/m2; b) a pressão indicada pelo manômetro M3 em kgf/m2.

Prévia do material em texto

EXERCÍCIOS: Fenômenos de Transporte 
(Entrega na prova P1) 
 
1)(0,25)Calcular o peso e a pressão de um líquido sobre a base retangular de um reservatório 
que mede 2,5m x 2,5m. Sabendo que o volume deste líquido no reservatório é de 15000 l (litros) 
e a densidade deste líquido é 0,85. Considerar que o líquido de referência (ou padrão) é a água 
cujo peso específico da água é 1000kgf/m3. 
 
 
2)(0,25)Calcular a altura de líquido em um reservatório cuja base mede 2,0m x 1,5m, sabendo 
que o peso específico do líquido é 900kgf/m3 e a pressão do líquido sobre a base é 10000kgf/m2. 
 
 
3)(0,5)Duas placas paralelas (uma superior e uma inferior) estão situadas a 2,5mm de distância. 
Entre as placas tem-se um líquido de massa específica de 900 kg/m3. Sob a ação de uma 
força tangencial, a placa superior move-se com velocidade de 2,0m/s, enquanto que a inferior 
está com velocidade= 0. Sabendo que é gerada uma tensão de cisalhamento de 10N/m2, 
Calcular a viscosidade dinâmica (µ) do líquido em Ns/m2 e a viscosidade cinemática do 
líquido em m2/s. 
 
 
4)(0,25)Calcular a força F1 (kgf), que deverá ser aplicada no pistão1(P1) para obter uma força 
F2=200kgf no pistão2(P2), conforme dimensões e desenho abaixo e não considerando os 
pesos dos pistões: 
.Dimensão do pistão 1, que é circular: Diâmetro de 1,5m 
.Dimensão do pistão 2, que é retangular): 2,5m X 3,0m 
 
F2 F1 
 
 
 
P2 P1 
 
A2 A1 
 
 
 
5)(0,5)A figura mostra um tanque fechado que contém água. O manômetro indica que a pressão 
do ar é 5500 kgf/m2. Determine : 
 
a) a altura h da coluna aberta em “m”; 
b) a pressão no fundo do tanque em kgf/m2; 
c) a pressão absoluta do ar no topo do tanque, considerando uma pressão atmosférica 
 de 10330 kgf/m2; 
d) considerar peso específico da água= 1000 kgf/m3. 
 
manômetro 
 
 
 
 
0,5m 
 
0,5m 
Ar 
 h 
Água 
6)(0,5)Um tanque fechado contém ar comprimido e um líquido que apresenta peso específico 
igual a 900kgf/m3. O fluido utilizado no manômetro em “U” conectado ao tanque é mercúrio 
(peso específico=13600kgf/m3). Sabendo que h1= 920 mm e h2 = 155mm, 
correspondem ao líquido e h3= 230mm, corresponde ao mercúrio. Determine a pressão 
em kgf/m2 apresentada pelo manômetro localizado no topo do tanque. 
 
 (manômetro) 
 
7)(0,5)Dois tanques de combustível pressurizados estão interconectados por uma tubulação 
conforme mostra a figura abaixo. Dado que o manômetro metálico M1 indica uma pressão 
de 4500kgf/m2 e que o peso específico do combustível é 800kgf/m3, determine : 
 
a) a pressão indicada pelo manômetro M2 em kgf/m2; 
b) a pressão indicada pelo manômetro M3 em kgf/m2. 
 
 
 
 
 
 
 
 
 
 
 
 
 
 
A 
 
 
8)(0,25)Num tubo circular (figura abaixo), escoa água e está totalmente preenchido por água. 
O diâmetro da seção(1) do tubo é 150mm e da seção(2) é 100mm . O peso específico da água 
é 1000kgf/m3 nas seções. Sendo a velocidade na seção(1)= 3 m/s, determine: 
 
a) a velocidade na seção (2); 
b) a vazão em peso nas seções (1) e (2); 
c) a vazão em volume nas seções (1) e (2). 
 Seção(1) Seção(2)

Mais conteúdos dessa disciplina