Logo Passei Direto
Buscar
Material
páginas com resultados encontrados.
páginas com resultados encontrados.
left-side-bubbles-backgroundright-side-bubbles-background

Experimente o Premium!star struck emoji

Acesse conteúdos dessa e de diversas outras disciplinas.

Libere conteúdos
sem pagar

Ajude estudantes e ganhe conteúdos liberados!

Prévia do material em texto

P5
P5
P6
P6
P5
P3
P1
P2
P4
P4
P6
P6
P6
P5 P6
P6
J1
J2
J1
J2 J2
J1
J1
1.75 4.00 1.75
0.59 0.80 0.59 0.16 0.80 0.16
0
.
4
1
1
.
5
0
0
.
4
1
0
.
8
4
1
.
5
0
0
.
8
4
0.86 4.88 0.96 1.36 4.04
3
.
6
0
4
.
0
0
3
.
5
0
1.13 1.50 1.13
0.75 1.50 0.75 0.20 0.80 0.20
1
.
1
6
1
.
5
0
1
.
1
6
P5
P6
P6
P6P6
P7
J2
J1
J2
J1 J1 J1
J3
J3
J3
1.20 1.50 0.38 0.99 1.50 0.54 2.90 1.50 1.30
3
.
6
6
4
.
0
0
3
.
4
4
1
.
1
0
1
.
8
1
1
.
1
0
0.85 4.00 0.850.16 4.00 0.16
0
.
0
9
0
.
8
0
0
.
0
9
0
.
6
9
1
.
5
0
0
.
6
9
1
.
8
5
0
.
8
0
0
.
1
0
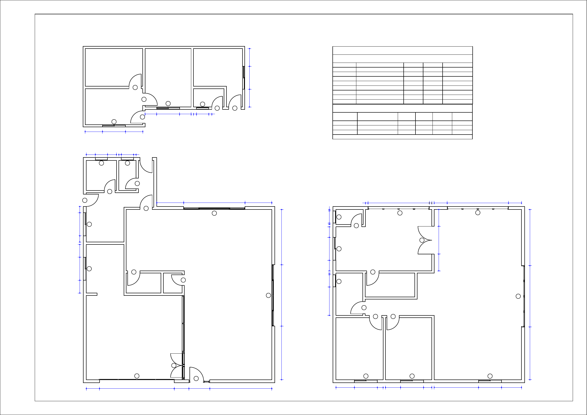
Obs.:Bonecas para P5 e P6 = 10 cm
Tabela de janelas
Marca de tipo Nome Largura Altura
Altura do
peitoril Quantidade
J1 Janela de dormitório 1,50 1,00 1,10 9
J2 Janela de WC 0,80 0,50 1,60 5
J3 Janela piso superior 4,00 1,50 0,60 3
Total geral: 17
Tabela de portas
Marca de tipo Nome Largura Altura Quantidade
P1 Porta de entrada 1,36 2,10 1
P2 Portão de Garagem 4,88 2,10 1
P3 Porta balcão da parede cortina 1,76 2,13 1
P4 Porta de sala 4,00 2,10 2
P5 Porta interna 0,70 2,10 5
P6 Porta interna 0,80 2,10 12
P7 Porta balcão dormitório 1,81 2,10 1
Total geral: 23
Quadro de esquadrias do Projeto Render
Plantas de piso para referência de posicionamento de portas e janelas.
	Sheets and Views
	PDF

Mais conteúdos dessa disciplina