Logo Passei Direto
Buscar

Ferramentas de estudo

Questões resolvidas

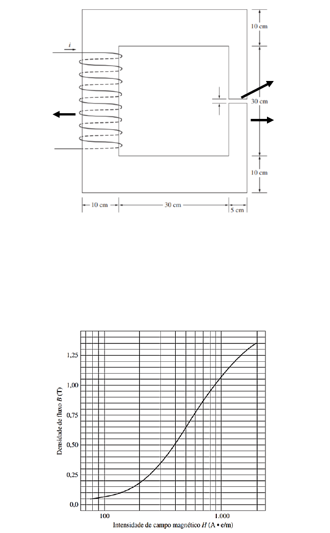
Um núcleo magnético de duas colunas, duas culatras e um entreferro está mostrado na Figura 1. A profundidade do núcleo é 7 cm, o comprimento do entreferro do núcleo é 0,03 cm e o número de espiras do núcleo é 1100. A curva de magnetização do material do núcleo está mostrada na Figura 2. Assuma um incremento de 5% na área efetiva do entreferro para compensar o espraiamento.
Qual é a corrente necessária para produzir uma densidade de fluxo no entreferro de 0,5T? Quais são as densidades de fluxo nas colunas e culatras do núcleo?

Uma máquina linear tem as seguintes características: B = 1,0 T (para dentro da página); R = 0,1 ohms; L = 0,02 m; VB = 1,5 V.
a) Se uma carga de 0,01 N for aplicada a essa barra no sentido de oposição ao movimento, qual será a velocidade de regime permanente da barra?

Uma máquina linear tem as seguintes características: B = 1,0 T (para dentro da página); R = 0,1 ohms; L = 0,02 m; VB = 1,5 V.
c) Agora considere que a tensão VB seja reduzida para 1,0 V e as condições do item b) são permanecidas. Qual é a nova velocidade em regime permanente da barra?

A Figura 4 mostra um sistema de potência CA monofásico simples com três cargas. A fonte de tensão é V = 240 |_0o V e as impedâncias das três cargas são: Z1 = 7 |_-15o ohms; Z2 = 7 |_15o ohms; Z3 = 7 |_30o ohms.
a) Assuma que a chave mostrada na figura esteja incialmente aberta, calcule a corrente I, o fator de potência e as potências ativa, reativa e aparente que são fornecidas pela fonte.

Material
páginas com resultados encontrados.
páginas com resultados encontrados.
left-side-bubbles-backgroundright-side-bubbles-background

Crie sua conta grátis para liberar esse material. 🤩

Já tem uma conta?

Ao continuar, você aceita os Termos de Uso e Política de Privacidade

left-side-bubbles-backgroundright-side-bubbles-background

Crie sua conta grátis para liberar esse material. 🤩

Já tem uma conta?

Ao continuar, você aceita os Termos de Uso e Política de Privacidade

left-side-bubbles-backgroundright-side-bubbles-background

Crie sua conta grátis para liberar esse material. 🤩

Já tem uma conta?

Ao continuar, você aceita os Termos de Uso e Política de Privacidade

left-side-bubbles-backgroundright-side-bubbles-background

Crie sua conta grátis para liberar esse material. 🤩

Já tem uma conta?

Ao continuar, você aceita os Termos de Uso e Política de Privacidade

Questões resolvidas

Um núcleo magnético de duas colunas, duas culatras e um entreferro está mostrado na Figura 1. A profundidade do núcleo é 7 cm, o comprimento do entreferro do núcleo é 0,03 cm e o número de espiras do núcleo é 1100. A curva de magnetização do material do núcleo está mostrada na Figura 2. Assuma um incremento de 5% na área efetiva do entreferro para compensar o espraiamento.
Qual é a corrente necessária para produzir uma densidade de fluxo no entreferro de 0,5T? Quais são as densidades de fluxo nas colunas e culatras do núcleo?

Uma máquina linear tem as seguintes características: B = 1,0 T (para dentro da página); R = 0,1 ohms; L = 0,02 m; VB = 1,5 V.
a) Se uma carga de 0,01 N for aplicada a essa barra no sentido de oposição ao movimento, qual será a velocidade de regime permanente da barra?

Uma máquina linear tem as seguintes características: B = 1,0 T (para dentro da página); R = 0,1 ohms; L = 0,02 m; VB = 1,5 V.
c) Agora considere que a tensão VB seja reduzida para 1,0 V e as condições do item b) são permanecidas. Qual é a nova velocidade em regime permanente da barra?

A Figura 4 mostra um sistema de potência CA monofásico simples com três cargas. A fonte de tensão é V = 240 |_0o V e as impedâncias das três cargas são: Z1 = 7 |_-15o ohms; Z2 = 7 |_15o ohms; Z3 = 7 |_30o ohms.
a) Assuma que a chave mostrada na figura esteja incialmente aberta, calcule a corrente I, o fator de potência e as potências ativa, reativa e aparente que são fornecidas pela fonte.

Prévia do material em texto

Prova 1 – Conversão de Energia Elétrica 
Data: 08/10/2020 
1. Um núcleo magnético de duas colunas, duas culatras e um entreferro está mostrado na 
Figura 1. A profundidade do núcleo é 7 cm, o comprimento do entreferro do núcleo é 
0,03 cm e o número de espiras do núcleo é 1100. A curva de magnetização do material 
do núcleo está mostrada na Figura 2. Assuma um incremento de 5% na área efetiva do 
entreferro para compensar o espraiamento. Qual é a corrente necessária para produzir 
uma densidade de fluxo no entreferro de 0,5T? Quais são as densidades de fluxo nas 
colunas e culatras do núcleo? 
 
 
 
Vol = 45 * 50 * 7 – (30 * 30 * 7) – (0,03 * 5 * 7) = 9448,95 cm³ = 9448,95 * 10-6 = 9,449 
10-3 m³ 
 
Figura 1. Núcleo magnético constituído por 2 colunas, 2 culatras e 1 entreferro (0,03 
cm). 
 
 
Profundidade: 7 cm 
N = 1100 
espiras 
0,03 cm 
Coluna 1 
Coluna 2 
Culatra 1 
Culatra 2 
Entreferro 
Figura 2. Curva de magnetização do material do núcleo. 
 
Resposta: 
Fi = B * S = Bgap * Sgap = 0,5 * 1,05 * 0,07* 0,05 = 1,8375 mweber 
N * I = fi * Rtotal => I = fi * Rtotal/N 
Rtotal = Rnucleo + Rgap 
Rgap = 0,03 * 10-2/(4*pi*10-7*1,05*0,07*0,05) = 64961,2 H-1 
Rnucleo = 2 * Rculatra + * Rcol1 + Rcol2 
Bcul = fi/Scul = 0,0018375/(0,1 * 0,07) = 0,2625 T 
Bcol1 = fi/Scol1 = 0,0018375/(0,1 * 0,07) = 0,2625 T 
Bcol2 = fi/Scol2 = 0,0018375/(0,05 * 0,07) = 0,525 T 
ucol1 = ucul = Bcul/Hcul = 0,2625/220 = 0,0011909 
ucol2 = Bcol2/Hcol2 = 0,525/400 = 0,0013125 
Rcul = 0,375/(0,0011909 * 0,1*0,07) = 44893,99 H-1 
Rcol1 = 0,4/(0,0011909 * 0,1*0,07) = 47982,92 H-1 
Rcol2 = 0,3997/(0,0013125*0,05*0,07) = 87009,52 H-1 
Rnucleo = 2 * 44893,99 + 47982,92 + 87009,52 = 224780,42 H-1 
Rtotal = 224780,42 + 64961,2 = 289741,62 H-1 
I = 289741,62 * 0,0018375/1100 = 0,484 A 
 
2. A Figura 3 mostra um fio que se move na presença de um campo magnético. Com a 
informação dada na figura, determine o valor e o sentido da tensão induzida no fio. 
Considerando que a tensão induzida e faz com que circule uma corrente i igual a 5 A, 
determine o valor e o sentido da força induzida no fio. 
Resposta: 
eind = L * (v x B) * sen30 = 0,25 * 10 * 0,2 * 0,5 = 0,25 V (para baixo) 
Find = I*(BxL) = 5 * 0,2 * 0,25 * sen30 = 0,125 N (para esquerda) 
 
Figura 3. Fio na presença do campo magnético B. 
 
3. A Tabela I mostra dados da metade superior de um laço de histerese simétrico de 60 Hz 
para uma amostra de aço magnético M-5. 
 
Tabela I. Parte superior do laço de histerese em 60 Hz do aço M-5. 
30o 
B [T] 0 0,2 0,4 0,6 0,7 0,8 0,9 1,5 0,95 0,9 0,8 0,7 0,6 0,4 0,2 0 
H 
[A.e/m] 
48 52 58 73 85 103 135 500 80 42 2 -18 -29 -40 -45 -48 
 
Considerando o equipamento da questão 1 e admitindo que o núcleo seja maciço e constituído 
do material M-5, calcule as perdas por histerese no núcleo a 60 Hz em watts/kg. Utilize a 
equação de Steinmetz para o cálculo das perdas (considere Kh = 0,001 e n = 2) e adote que a 
densidade do aço M-5 é 7,65 g/cm³. 
 
Resposta: 
 
Ph = vol*f*Kh*Bmaxn 
Vol = 9,449 * 10-3 m³ 
Bmax = 1,5 T 
Ph = 9,449 * 10-3 * 60 * 0,001 * 1,52 = 0,001276 W 
pnucleo = d * vol = 7,65 * 9449 = 72284,85 g = 72,285 kg 
Ph(nucleo) = 0,001276/72,285 = 0,00001765 W/kg 
 
Uma máquina linear tem as seguintes características: B = 1,0 T (para dentro da página); R = 0,1 
ohms; L = 0,02 m; VB = 1,5 V. 
a) Se uma carga de 0,01 N for aplicada a essa barra no sentido de oposição ao 
movimento, qual será a velocidade de regime permanente da barra? 
b) Se a barra se deslocar para uma região em que a densidade de fluxo é de 0,5 T e 
mantendo a carga do item a), o que acontecerá com a barra? Qual será a velocidade 
em regime permanente? 
c) Agora considere que a tensão VB seja reduzida para 1,0 V e as condições do item b) 
são permanecidas. Qual é a nova velocidade em regime permanente da barra? 
 
Resposta: 
a) Find = BIL = 1 * 0,02 * I => I = 0,01/(0,02) = 0,5 A 
eind = 1,5 – 0,1 * 0,5 = 1,45 V 
v = 1,45/(1*0,02) = 72,5 m/s 
b) I = 0,01/(0,02*0,5) = 1 A 
eind = 1,5 – 0,1 * 1 = 1,4 V 
v = 1,4/(0,5 * 0,02) = 140 m/s 
c) Find = BIL => 0,01 = 0,5 * I * 0,02 => I = 1 A 
eind = L*v*B = VB – R * I 
eind = 1 – 0,1 * 1 = 0,9 V 
Logo: v = 0,9/(0,02*0,5) = 90 m/s 
 
4. A Figura 4 mostra um sistema de potência CA monofásico simples com três cargas. A 
fonte de tensão é V = 240 |_0o V e as impedâncias das três cargas são: Z1 = 7 |_-15o 
ohms; Z2 = 7 |_15o ohms; Z3 = 7 |_30o ohms. 
a) Assuma que a chave mostrada na figura esteja incialmente aberta, calcule a 
corrente I, o fator de potência e as potências ativa, reativa e aparente que são 
fornecidas pela fonte. 
b) Agora considere que a chave esteja fechada, calcule novamente a corrente I, o fator 
de potência e as potências ativa, reativa e aparente fornecidas pela fonte. 
c) Explique o comportamento da corrente antes e após o fechamento da chave em 
relação à tensão da fonte. 
 
 
Figura 4. Sistema de potência CA monofásico. 
Resposta: 
 
V = 240 |_0o V; Z1 = 7 |_-15o ohms; Z2 = 7 |_15o ohms; Z3 = 7 |_30o ohms. 
 
a) Para chave aberta: 
I1 = V/Z1 = 240 |_0/7 |_-15 = 34,286 |_15 A (6,76 – j1,812) 
I2 = V/Z2 = 240 |_0/7 |_15 = 34,286 |_-15 A (6,76 + j1,812) 
I = I1 + I2 = 34,286 |_15 + 34,286 |_-15 = 33,118 + j8,874 + 33,118 - j8,874 = 66,236 |_0o A 
Fp = cos0 = 1; 
S = V * I = 66,236 * 240 = 15896,64 VA = P 
Q = 0 (pois fp = 1) 
 
b) Para chave fechada: 
I3 = V/Z3 = 240 |_0/7 |_30 = 34,286 |_-30 A (19,58 + j3,5 = 19,89 |_10,135), 2,17 
I = I1 + I2 + I3 = 66,236 |_0 + 34,286 |_-30 = 66,236 + 29,6925 – j17,143 = 95,928 – j17,143 = 
97,45|_-10,132o A 
Fp = cos -10,132 = 0,984 (atrasado); 
S = 23388 VA; P = S*cos10,132 = 23023,27 W; Q = S * sen10,132 = 4114,34 VAR 
 
c) Antes do fechamento da chave, a corrente estava em fase com a tensão da fonte, o que condiz 
com uma carga resultante puramente resistiva (consumo somente de potência ativa). Ao fechar 
a chave, a carga adquire uma característica indutiva, fazendo com que a corrente ficasse 
atrasada em relação à tensão da fonte a potência reativa consumida é o produto entre o módulo 
da tensão da fonte, módulo da corrente de carga e seno do ângulo de carga.

Mais conteúdos dessa disciplina