Logo Passei Direto
Buscar
Material
páginas com resultados encontrados.
páginas com resultados encontrados.
left-side-bubbles-backgroundright-side-bubbles-background

Crie sua conta grátis para liberar esse material. 🤩

Já tem uma conta?

Ao continuar, você aceita os Termos de Uso e Política de Privacidade

Prévia do material em texto

UNIVERSIDADE LUTERANA DO BRASIL - CAMPUS CARAZINHO
ASSUNTO:
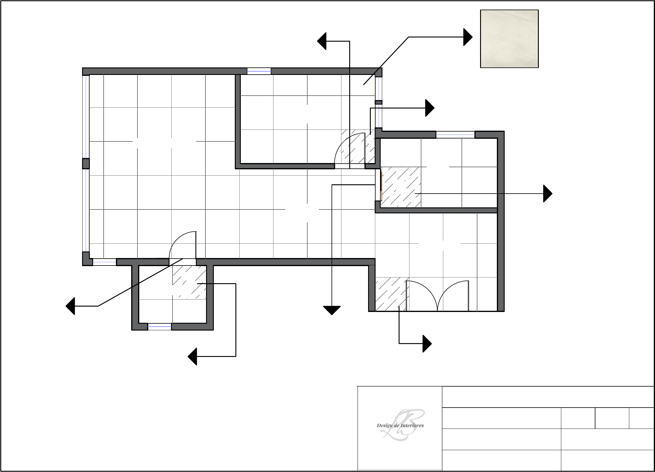
 PAGINAÇÃO DE PISO
DISCIPLINA:
NOME: CURSO:
PROFESSORA:
DATA: ESCALA: PRANCHA:
PROTEC
LETICIA LORENZI
JUNHO/2020
LIDIANE BAUMGRATZ
DESIGN DE INTERIORES
1/50
1/1
RECEPÇÃO
COPA
SALA DE
OSTEOPATIA
SALA DE PILATES
ÁREA DE
LAZER
LAVABO
1
1
1
1
Ponto do início
da colocação
Ponto do início
da colocação
Ponto do início
da colocação
Ponto do início
da colocação
Indicação de
soleira
Indicação de
soleira
Indicação de
soleira
Porcelanato Interno
Mármore Esmaltado
Polido Borda Reta Mont
Blanc 120x120cm
Portobello. a Soleira é
feita com o próprio
porcelanato.
	Folhas e vistas
	Modelo

Mais conteúdos dessa disciplina