Logo Passei Direto
Buscar
Material
páginas com resultados encontrados.
páginas com resultados encontrados.
left-side-bubbles-backgroundright-side-bubbles-background

Crie sua conta grátis para liberar esse material. 🤩

Já tem uma conta?

Ao continuar, você aceita os Termos de Uso e Política de Privacidade

Prévia do material em texto

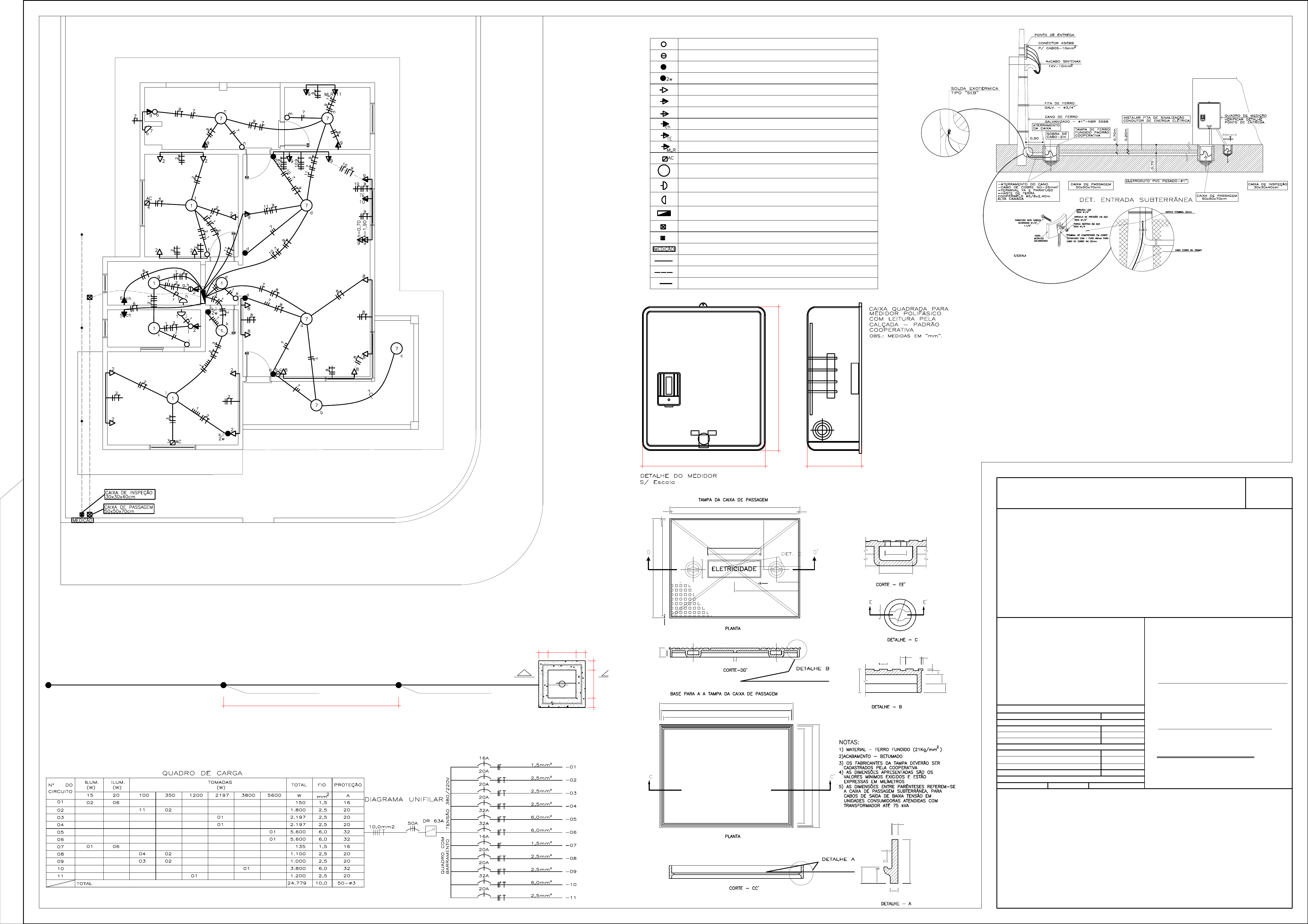
PLANTA BAIXA - PVTO TÉRREO
ESCALA 1 / 50 
Notas:
Fase 1 - Preta
Fase 2 - Branca
Fase 3 - Vermelho
Neutro - Azul claro
Retorno - Outras cores
Proteção - Verde/amarelo ou verde
DORMITÓRIO
DORMITÓRIO
ÁREA SERVIÇO
SALA DE ESTAR
COZINHA
VARANDA GOURMET
VARANDA
BANHO
BANHO
SIMBOLOGIA
INTERRUPTOR SIMPLES
INTERRUPTOR DUPLO SIMPLES
INTERRUPTOR PARALELO
INTERRUPTOR DUPLO PARALELO
TOMADA SIMPLES - BAIXA - h=0,30 DO PISO
TOMADA SIMPLES - MÉDIA - h=1,10 DO PISO
TOMADA SIMPLES - h=INDICADA
TOMADA PARA CHUVEIRO - ALTA - h=2,10
TOMADA PARA TORNEIRA ELÉTRICA - MÉDIA - h=1,10
TOMADA PARA MÁQUINA DE LAVAR ROUPA - MÉDIA - h=1,10
TOMADA PARA AR CONDICIONADO
PONTO DE ILUMINAÇÃO NA LAJE OU FORRO DO TIPO LED
OU FLUORESCENTE
PONTO DE ILUMINAÇÃO NO BANHEIRO TIPO LED
OU FLUORESCENTE
PONTO DE ILUMINAÇÃO NA CHURRASQUEIRA
QUADRO DE DISTRIBUIÇÃO
CAIXA DE PASSAGEM 50x50x70cm
CAIXA DE INSPEÇÃO 30x30x40cm
CAIXA DE MEDIÇÃO LEITURA PELA CALÇADA EM MURETA
TUBULAÇÃO PELO FORRO OU LAJE
TUBULAÇÃO PELO PISO
FASE, NEUTRO, TERRA E RETORNO
0,50
5,00
DET. DE ATERRAMENTO CANO GALV.
10
880(680)
10
900(700)
161
3
5
0
10
355(245)
375(265)
450
1
3
5
1
0
6
8
0
(
4
4
0
)
1
0
7
0
0
(
4
6
0
)
5
5
5
8
20
Ø50
Ø74
1
4
Ø
2
6
20
10
3
3
1
0
2
0
2
5
5
8
864 (664)
894 (694)
914 (714)
6
6
4
 
(
4
2
4
)
6
9
4
 
(
4
5
4
)
7
1
4
 
(
4
7
4
)
10
8
3
15
2
5
3
1
5
10
PLANTA BAIXA
HASTE DE ATERRAMENTO
A
A
HASTE DE ATERRAMENTO
DETALHE ATERRAMENTO QUADRO DE MEDIÇÃO
300
10 30 10
10
30
10
S/ Escala
348
45
0
206
DE PROPRIEDADE DO TERRENO
RECONHECIMENTO POR PARTE DA PREFEITURA DO DIREITO
DECLARO QUE A APROVAÇÃO DO PROJETO NÃO IMPLICA NO 
ESCALA:
PROPRIETÁRIO:
FOLHA:
ASSUNTO:
LOCAL:
LOTEAMENTO: 
MUNICÍPIO: U.P.:
PROPRIETÁRIO:
INSC. CADASTRAL:
ÁREA DO LOTE:
TOTAL PARCIAL 1
E =
AREA COMPUTAVEL À CONSTRUIR
PAVIMENTO SUPERIOR
T.O. = 
A.R.T.: 
CAU: 
AUTOR DO PROJETO E RESP. TÉCNICO
PREF.:
ARQUITETA
SITUAÇÃO S/ ESCALA:
TOTAL COMPUTAVÉL À DEMOLIR
PAVIMENTO TÉRREO
I.A. = TAXA PERM. = 
QUADRO DE ÁREAS 
AREA NÃO COMPUTAVEL À CONSTRUIR
PISCINA
CASA DE MÁQUINAS
TOTAL PARCIAL 2
TOTAL GERAL DAS CONSTRUÇÕES
PROJETO ELÉTRICO Única
Indicada
AutoCAD SHX Text
ch
AutoCAD SHX Text
ch
AutoCAD SHX Text
h=1,90
AutoCAD SHX Text
h=0,70
AutoCAD SHX Text
TE
AutoCAD SHX Text
MLR
AutoCAD SHX Text
AC
AutoCAD SHX Text
MEDIÇÃO
AutoCAD SHX Text
CAIXA DE PASSAGEM
AutoCAD SHX Text
50x50x70cm
AutoCAD SHX Text
CAIXA DE INSPEÇÃO
AutoCAD SHX Text
30x30x40cm
AutoCAD SHX Text
1
AutoCAD SHX Text
1
AutoCAD SHX Text
1
AutoCAD SHX Text
1
AutoCAD SHX Text
1
AutoCAD SHX Text
1
AutoCAD SHX Text
1
AutoCAD SHX Text
1
AutoCAD SHX Text
2
AutoCAD SHX Text
2
AutoCAD SHX Text
2
AutoCAD SHX Text
2
AutoCAD SHX Text
2
AutoCAD SHX Text
2
AutoCAD SHX Text
2
AutoCAD SHX Text
4
AutoCAD SHX Text
5
AutoCAD SHX Text
6
AutoCAD SHX Text
7
AutoCAD SHX Text
7
AutoCAD SHX Text
7
AutoCAD SHX Text
7
AutoCAD SHX Text
7
AutoCAD SHX Text
7
AutoCAD SHX Text
7
AutoCAD SHX Text
8
AutoCAD SHX Text
8
AutoCAD SHX Text
8
AutoCAD SHX Text
8
AutoCAD SHX Text
8
AutoCAD SHX Text
8
AutoCAD SHX Text
9
AutoCAD SHX Text
9
AutoCAD SHX Text
9
AutoCAD SHX Text
9
AutoCAD SHX Text
9
AutoCAD SHX Text
9
AutoCAD SHX Text
10
AutoCAD SHX Text
11
AutoCAD SHX Text
9
AutoCAD SHX Text
9
AutoCAD SHX Text
9
AutoCAD SHX Text
a
AutoCAD SHX Text
a
AutoCAD SHX Text
a
AutoCAD SHX Text
b,c
AutoCAD SHX Text
b
AutoCAD SHX Text
c
AutoCAD SHX Text
d
AutoCAD SHX Text
d
AutoCAD SHX Text
d
AutoCAD SHX Text
e
AutoCAD SHX Text
e
AutoCAD SHX Text
f
AutoCAD SHX Text
f
AutoCAD SHX Text
g,h
AutoCAD SHX Text
g
AutoCAD SHX Text
h
AutoCAD SHX Text
i
AutoCAD SHX Text
i
AutoCAD SHX Text
j
AutoCAD SHX Text
j
AutoCAD SHX Text
k,l
AutoCAD SHX Text
k
AutoCAD SHX Text
l
AutoCAD SHX Text
2w
AutoCAD SHX Text
k,l
AutoCAD SHX Text
2w
AutoCAD SHX Text
m
AutoCAD SHX Text
m
AutoCAD SHX Text
n
AutoCAD SHX Text
n
AutoCAD SHX Text
o
AutoCAD SHX Text
o
AutoCAD SHX Text
9
AutoCAD SHX Text
11
AutoCAD SHX Text
11
AutoCAD SHX Text
11
AutoCAD SHX Text
11
AutoCAD SHX Text
10
AutoCAD SHX Text
10
AutoCAD SHX Text
10
AutoCAD SHX Text
10
AutoCAD SHX Text
10
AutoCAD SHX Text
10
AutoCAD SHX Text
9
AutoCAD SHX Text
9
AutoCAD SHX Text
9
AutoCAD SHX Text
9
AutoCAD SHX Text
9
AutoCAD SHX Text
9
AutoCAD SHX Text
9
AutoCAD SHX Text
9
AutoCAD SHX Text
9
AutoCAD SHX Text
9
AutoCAD SHX Text
9
AutoCAD SHX Text
9
AutoCAD SHX Text
9
AutoCAD SHX Text
9
AutoCAD SHX Text
9
AutoCAD SHX Text
8
AutoCAD SHX Text
8
AutoCAD SHX Text
8
AutoCAD SHX Text
8
AutoCAD SHX Text
8
AutoCAD SHX Text
8
AutoCAD SHX Text
8
AutoCAD SHX Text
7
AutoCAD SHX Text
7
AutoCAD SHX Text
7
AutoCAD SHX Text
7
AutoCAD SHX Text
7
AutoCAD SHX Text
7
AutoCAD SHX Text
7
AutoCAD SHX Text
7
AutoCAD SHX Text
7
AutoCAD SHX Text
7
AutoCAD SHX Text
7
AutoCAD SHX Text
7
AutoCAD SHX Text
7
AutoCAD SHX Text
7
AutoCAD SHX Text
7
AutoCAD SHX Text
6
AutoCAD SHX Text
6
AutoCAD SHX Text
4
AutoCAD SHX Text
4
AutoCAD SHX Text
3
AutoCAD SHX Text
3
AutoCAD SHX Text
3
AutoCAD SHX Text
2
AutoCAD SHX Text
2
AutoCAD SHX Text
2
AutoCAD SHX Text
2
AutoCAD SHX Text
2
AutoCAD SHX Text
2
AutoCAD SHX Text
2
AutoCAD SHX Text
2
AutoCAD SHX Text
2
AutoCAD SHX Text
2
AutoCAD SHX Text
2
AutoCAD SHX Text
2
AutoCAD SHX Text
2
AutoCAD SHX Text
2
AutoCAD SHX Text
2
AutoCAD SHX Text
2
AutoCAD SHX Text
2
AutoCAD SHX Text
1
AutoCAD SHX Text
1
AutoCAD SHX Text
1
AutoCAD SHX Text
1
AutoCAD SHX Text
1
AutoCAD SHX Text
1
AutoCAD SHX Text
1
AutoCAD SHX Text
1
AutoCAD SHX Text
1
AutoCAD SHX Text
1
AutoCAD SHX Text
1
AutoCAD SHX Text
1
AutoCAD SHX Text
1
AutoCAD SHX Text
1
AutoCAD SHX Text
1
AutoCAD SHX Text
AC
AutoCAD SHX Text
2
AutoCAD SHX Text
2
AutoCAD SHX Text
2
AutoCAD SHX Text
2
AutoCAD SHX Text
3
AutoCAD SHX Text
2w
AutoCAD SHX Text
ch
AutoCAD SHX Text
TE
AutoCAD SHX Text
MLR
AutoCAD SHX Text
AC
AutoCAD SHX Text
MEDIÇÃO
AutoCAD SHX Text
2
AutoCAD SHX Text
2
AutoCAD SHX Text
4xCABO SINTENAX
AutoCAD SHX Text
 1KV-10mm
AutoCAD SHX Text
CONECTOR KSEBB
AutoCAD SHX Text
P/ CABOS-10mm
AutoCAD SHX Text
CAIXA DE INSPEÇÃO
AutoCAD SHX Text
 30x30x40cm
AutoCAD SHX Text
0,70
AutoCAD SHX Text
ELETRODUTO PVC PESADO-%%C1"
AutoCAD SHX Text
0,70m
AutoCAD SHX Text
0,20m
AutoCAD SHX Text
FITA DE FERRO
AutoCAD SHX Text
CANO DE FERRO
AutoCAD SHX Text
GALVANIZADO - %%C1"-NBR 5598
AutoCAD SHX Text
GALV. - %%C3/4"
AutoCAD SHX Text
CABO-2m
AutoCAD SHX Text
0,50
AutoCAD SHX Text
SOBRA DE
AutoCAD SHX Text
2
AutoCAD SHX Text
-HASTE DE TERRA
AutoCAD SHX Text
-ATERRAMENTO DO CANO
AutoCAD SHX Text
-CABO DE COBRE NÚ-25mm
AutoCAD SHX Text
COOPERWELD %%C5/8x2,40m
AutoCAD SHX Text
-TERMINAL YA E PARAFUSO
AutoCAD SHX Text
DET. ENTRADA SUBTERRÂNEA
AutoCAD SHX Text
CAIXA DE PASSAGEM
AutoCAD SHX Text
 50x50x70cm
AutoCAD SHX Text
INSTALAR FITA DE SINALIZAÇÃO
AutoCAD SHX Text
CONDUTOR DE ENERGIA ELÉTRICA
AutoCADSHX Text
COOPERATIVA
AutoCAD SHX Text
TAMPA DE FERRO
AutoCAD SHX Text
FUNDIDO PADRÃO
AutoCAD SHX Text
SOLDA EXOTÉRMICA TIPO "SEB"
AutoCAD SHX Text
SAPATA TERMINAL 25mm
AutoCAD SHX Text
CABO COBRE NU 35MM2
AutoCAD SHX Text
 CABO DE COBRE NU 25mm
AutoCAD SHX Text
 ESTANHADO COM 1 FURO %%C8mm PARA
AutoCAD SHX Text
TERMINAL DE COMPRESSÃO EM COBRE
AutoCAD SHX Text
ARRUELA DE PRESSÃO EM AÇO
AutoCAD SHX Text
 INOX %%C1/4" 
AutoCAD SHX Text
INOX %%C1/4
AutoCAD SHX Text
PORCA SEXTAVA EM AÇO
AutoCAD SHX Text
 INOX %%C1/4" 
AutoCAD SHX Text
ARRUELA LISA
AutoCAD SHX Text
METÁLICO
AutoCAD SHX Text
GALVANIZADO
AutoCAD SHX Text
PARAFUSO INOX CABEÇA 
AutoCAD SHX Text
1.1/4" 
AutoCAD SHX Text
SEXTAVADA %%C1/4" 
AutoCAD SHX Text
CANO
AutoCAD SHX Text
S/ESCALA
AutoCAD SHX Text
ALTA CAMADA
AutoCAD SHX Text
DA CAIXA
AutoCAD SHX Text
ATERRAMENTO 
AutoCAD SHX Text
PONTO DE ENTREGA
AutoCAD SHX Text
CAIXA DE PASSAGEM
AutoCAD SHX Text
 50x50x70cm
AutoCAD SHX Text
VERIFICAR DETALHE
AutoCAD SHX Text
QUADRO DE MEDIÇÃO
AutoCAD SHX Text
35mm2
AutoCAD SHX Text
PONTO DE ENTREGA
AutoCAD SHX Text
ELETRICIDADE
AutoCAD SHX Text
DET. C
AutoCAD SHX Text
D
AutoCAD SHX Text
D'
AutoCAD SHX Text
PLANTA
AutoCAD SHX Text
CORTE-DD'
AutoCAD SHX Text
DETALHE B
AutoCAD SHX Text
CORTE - EE'
AutoCAD SHX Text
E'
AutoCAD SHX Text
E
AutoCAD SHX Text
DETALHE - C
AutoCAD SHX Text
DETALHE - B
AutoCAD SHX Text
C'
AutoCAD SHX Text
C
AutoCAD SHX Text
PLANTA
AutoCAD SHX Text
DETALHE A
AutoCAD SHX Text
CORTE - CC'
AutoCAD SHX Text
DETALHE - A
AutoCAD SHX Text
NOTAS:
AutoCAD SHX Text
1) MATERIAL - FERRO FUNDIDO (21Kg/mm )
AutoCAD SHX Text
2
AutoCAD SHX Text
2)ACABAMENTO - BETUMADO
AutoCAD SHX Text
3) OS FABRICANTES DA TAMPA DEVERÃO SER
AutoCAD SHX Text
CADASTRADOS PELA COOPERATIVA
AutoCAD SHX Text
4) AS DIMENSÕES APRESENTADAS SÃO OS
AutoCAD SHX Text
VALORES MÍNIMOS EXIGIDOS E ESTÃO
AutoCAD SHX Text
EXPRESSAS EM MILÍMETROS
AutoCAD SHX Text
5) AS DIMENSÕES ENTRE PARÊNTESES REFEREM-SE
AutoCAD SHX Text
A CAIXA DE PASSAGEM SUBTERRÂNEA, PARA
AutoCAD SHX Text
CABOS DE SAÍDA DE BAIXA TENSÃO EM
AutoCAD SHX Text
UNIDADES CONSUMIDORAS ATENDIDAS COM
AutoCAD SHX Text
TRANSFORMADOR ATÉ 75 kVA
AutoCAD SHX Text
BASE PARA A A TAMPA DA CAIXA DE PASSAGEM
AutoCAD SHX Text
TAMPA DA CAIXA DE PASSAGEM
AutoCAD SHX Text
A
AutoCAD SHX Text
mm
AutoCAD SHX Text
W
AutoCAD SHX Text
02
AutoCAD SHX Text
03
AutoCAD SHX Text
01
AutoCAD SHX Text
04
AutoCAD SHX Text
TOMADAS
AutoCAD SHX Text
QUADRO DE CARGA 
AutoCAD SHX Text
CIRCUITO
AutoCAD SHX Text
Nº DO
AutoCAD SHX Text
TOTAL
AutoCAD SHX Text
(W)
AutoCAD SHX Text
PROTEÇÃO
AutoCAD SHX Text
FIO
AutoCAD SHX Text
2
AutoCAD SHX Text
ILUM.
AutoCAD SHX Text
(W)
AutoCAD SHX Text
TOTAL 
AutoCAD SHX Text
ILUM.
AutoCAD SHX Text
(W)
AutoCAD SHX Text
DIAGRAMA UNIFILAR
AutoCAD SHX Text
10,0mm2
AutoCAD SHX Text
DR 63A
AutoCAD SHX Text
BARRAMENTO
AutoCAD SHX Text
QUADRO COM
AutoCAD SHX Text
TENSÃO 380/220V
AutoCAD SHX Text
50A
AutoCAD SHX Text
-04
AutoCAD SHX Text
-01
AutoCAD SHX Text
-02
AutoCAD SHX Text
-03
AutoCAD SHX Text
06
AutoCAD SHX Text
07
AutoCAD SHX Text
05
AutoCAD SHX Text
08
AutoCAD SHX Text
09
AutoCAD SHX Text
10
AutoCAD SHX Text
11
AutoCAD SHX Text
-05
AutoCAD SHX Text
-08
AutoCAD SHX Text
-06
AutoCAD SHX Text
-07
AutoCAD SHX Text
-09
AutoCAD SHX Text
-10
AutoCAD SHX Text
-11
AutoCAD SHX Text
20
AutoCAD SHX Text
15
AutoCAD SHX Text
100
AutoCAD SHX Text
350
AutoCAD SHX Text
2197
AutoCAD SHX Text
5600
AutoCAD SHX Text
3800
AutoCAD SHX Text
1200
AutoCAD SHX Text
1,5mm²
AutoCAD SHX Text
06
AutoCAD SHX Text
02
AutoCAD SHX Text
11
AutoCAD SHX Text
02
AutoCAD SHX Text
01
AutoCAD SHX Text
01
AutoCAD SHX Text
01
AutoCAD SHX Text
01
AutoCAD SHX Text
06
AutoCAD SHX Text
01
AutoCAD SHX Text
04
AutoCAD SHX Text
02
AutoCAD SHX Text
03
AutoCAD SHX Text
02
AutoCAD SHX Text
01
AutoCAD SHX Text
01
AutoCAD SHX Text
150
AutoCAD SHX Text
1.800
AutoCAD SHX Text
2.197
AutoCAD SHX Text
2.197
AutoCAD SHX Text
5.600
AutoCAD SHX Text
5.600
AutoCAD SHX Text
135
AutoCAD SHX Text
1.100
AutoCAD SHX Text
1.000
AutoCAD SHX Text
3.800
AutoCAD SHX Text
1.200
AutoCAD SHX Text
24.779
AutoCAD SHX Text
16
AutoCAD SHX Text
20
AutoCAD SHX Text
20
AutoCAD SHX Text
20
AutoCAD SHX Text
32
AutoCAD SHX Text
32
AutoCAD SHX Text
16
AutoCAD SHX Text
20
AutoCAD SHX Text
20
AutoCAD SHX Text
32
AutoCAD SHX Text
20
AutoCAD SHX Text
1,5
AutoCAD SHX Text
2,5
AutoCAD SHX Text
2,5
AutoCAD SHX Text
2,5
AutoCAD SHX Text
6,0
AutoCAD SHX Text
6,0
AutoCAD SHX Text
1,5
AutoCAD SHX Text
2,5
AutoCAD SHX Text
2,5
AutoCAD SHX Text
6,0
AutoCAD SHX Text
2,5
AutoCAD SHX Text
10,0
AutoCAD SHX Text
50-%%C3
AutoCAD SHX Text
2,5mm²
AutoCAD SHX Text
2,5mm²
AutoCAD SHX Text
2,5mm²
AutoCAD SHX Text
6,0mm²
AutoCAD SHX Text
6,0mm²
AutoCAD SHX Text
1,5mm²
AutoCAD SHX Text
2,5mm²
AutoCAD SHX Text
2,5mm²
AutoCAD SHX Text
6,0mm²
AutoCAD SHX Text
2,5mm²
AutoCAD SHX Text
16A
AutoCAD SHX Text
20A
AutoCAD SHX Text
20A
AutoCAD SHX Text
20A
AutoCAD SHX Text
32A
AutoCAD SHX Text
32A
AutoCAD SHX Text
16A
AutoCAD SHX Text
20A
AutoCAD SHX Text
20A
AutoCAD SHX Text
32A
AutoCAD SHX Text
20A
AutoCAD SHX Text
CALÇADA - PADRÃO 
AutoCAD SHX Text
OBS.: MEDIDAS EM "mm".
AutoCAD SHX Text
MEDIDOR POLIFÁSICO 
AutoCAD SHX Text
DETALHE DO MEDIDOR
AutoCAD SHX Text
CAIXA QUADRADA PARA 
AutoCAD SHX Text
S/ Escala
AutoCAD SHX Text
COM LEITURA PELA 
AutoCAD SHX Text
COOPERATIVA
	Sheets and Views
	Layout1

Mais conteúdos dessa disciplina