Logo Passei Direto
Buscar
Material
páginas com resultados encontrados.
páginas com resultados encontrados.
left-side-bubbles-backgroundright-side-bubbles-background

Crie sua conta grátis para liberar esse material. 🤩

Já tem uma conta?

Ao continuar, você aceita os Termos de Uso e Política de Privacidade

left-side-bubbles-backgroundright-side-bubbles-background

Crie sua conta grátis para liberar esse material. 🤩

Já tem uma conta?

Ao continuar, você aceita os Termos de Uso e Política de Privacidade

Prévia do material em texto

P02
1
P02
1
P02
3
P02
3
PAVIMENTAÇÃO EM PISO DE CONCRETO INTERTRAVADO 
NA COR NATURAL,
OBEDECENDO MODELO E PAGINAÇÃO UTILIZADOS NO 
CONDOMÍNIO
MEIO FIO A SER REBAIXADO PARA ACESSO AO LOTE
DE ACORDO COM A NECESSIDADE DO PROJETO
-0.30
-0.40
ACESSO
SOBE
GUIA REBAIXADA
MEIO FIO EXISTENTE
0.
30
1.
20
RUA PROJETADA 11
4.81 m²
CIRCULAÇÃO
10.55 m²
COZINHA
1.44 m²
DESPENSA
5.35 m²
SERVIÇO
21.05 m²
ESTAR / JANTAR
6.78 m²
GOURMET
8.30 m²
QUARTO
8.28 m²
SUÍTE 01
3.59 m²
BWC 01
3.59 m²
BWC SOCIAL
3.35 m²
CLOSET
3.19 m²
BWC 02
11.28 m²
SUÍTE 02
20.48 m²
GARAGEM
2.
83
1.
27
0.
12
4.
81
0.12 2.53 0.12 1.00 0.12
0.
12
6.
23
0.
12
2.
56
0.
12
3.
28
0.
12
2.
83
0.
12
1.
38
0.
12
1.40 0.12 1.47 0.12 1.38
1.
00
0.
12
3.
38
1.00
10.00
17
.0
0
3.
00
0.80 0.58
0.12 1.38 0.12 3.35 0.11 4.80 0.12
-0.01
+0.00
0.58 0.40 0.41 0.40 0.43 1.16 0.20
1.50 8.50
J05 J05 P07
0.
52
2.
00
1.
26
2.
00
0.
70
0.
47
1.
70
2.
14
1.
10
1.
07
15
.5
0
ø 1
.50
ø 3.00
0.86 1.70 0.87 1.38
J01 G01
J04
P04
P06
P04
J03
J03
1.50 0.12 3.65 0.12 1.47 0.12 1.40 0.12 1.50
1.38 5.68 1.00 0.32 1.38
7.00
20
.0
0
3.
00
3.
50
0.
12
1.
27
0.
12
3.
76
0.
12
8.
11
2.
00
J02
J02
P06
2.
40
1.
65
1.
00
0.
30
1.
00
0.
62
2.
00
2.
91
0.
12
2.
28
0.
12
2.
77
0.
12
1.
20
0.
12
1.
20
0.
12
0.
98
0.
12
2.
73
J03
J02
P02
P05
2.53 0.12 1.00 0.12 2.99
P03
P03
P03
2.65
P01
P05
P01
proj. viga
pr
oj.
 vi
ga
pro
j. v
az
io 
pé
 di
rei
to 
du
plo
1.
93
0.
80
1.
10
1.09
1.09
0.
90
0.
42 0.
60
0.78
ø 1
.50
ø 1
.50
0.80 0.58
0.34 0.60
-0.01
+0.00
+0.00
+0.00
-0.01
-0.01
+0.00
+0.00
+0.00
+0.00
-0.01
LO
TE
 02
LO
TE
 04
LOTE 27
ÁREA 
PERMEÁVEL
ÁREA 
PERMEÁVEL
ÁREA 
PERMEÁVEL
ÁREA 
PERMEÁVEL
ÁREA 
PERMEÁVEL
3.
00
1.38
0.
95
4.75
0.
40
1.
50
10.00
pr
oj.
 co
be
rtu
ra
pro
j. ca
ixa 
d'ág
ua
pr
oj.
 co
be
rtu
ra
proj. cobertura
-0.01
proj. vazio cobertura
P02
2
P02
2
P02
4
P02
4
3.36
3.
36
proj. pilar sobre a viga
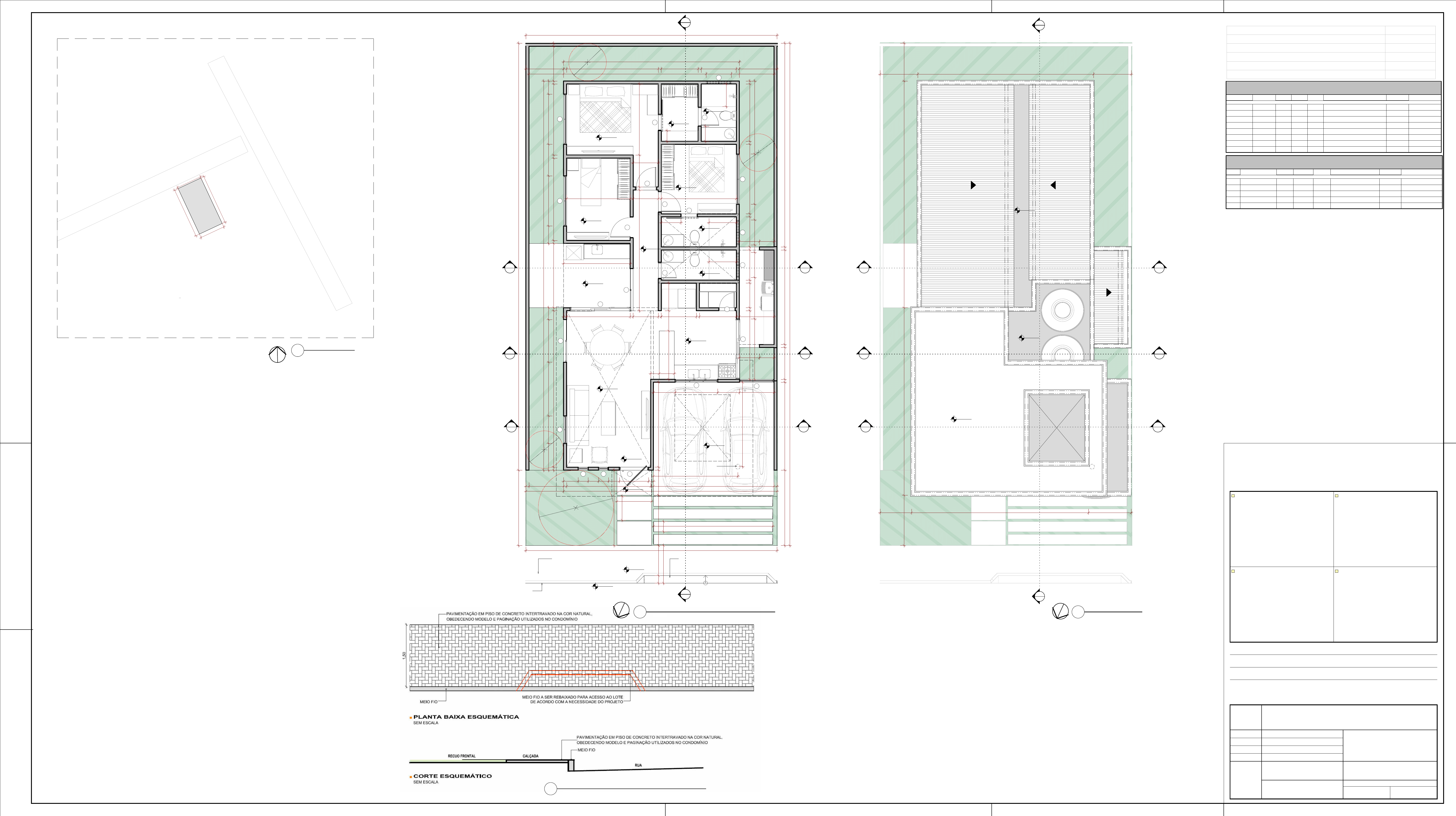
DADOS DO EMPREENDIMENTO
ÁREA DO TERRENO
ÍNDICE DE UTILIZAÇÃO DO PROJETO
TAXA DE OCUPAÇÃO
200,00m²
0,60
60%
ÁREA TOTAL CONSTRUÍDA
ÁREA DE COBERTURA
ÁREA PERMEÁVEL (22,32%) 
119,95m²
44,63m²
119,95m²
RUA
 PR
OJE
TAD
A 11
RUA PRO
JETADA 04
20.00
10.0
0
20.00
10.0
0
P02
1
P02
1
P02
3
P02
3
CX D'ÁGUA
CAPACIDADE TOTAL 3000 LITROS
TE
LH
A 
DE
 F
IB
RO
CI
ME
NT
O
VAZIO
+3.00
+5.15
+3.00
LAJE IMPERMEABILIZADA
LA
JE
 IM
PE
RM
EA
BI
LI
ZA
DA
P02
2
P02
2
7% 7%
CA
HA
 D
E 
CO
NC
RE
TO
TE
LH
A 
DE
 F
IB
RO
CI
ME
NT
O
LAJE 
IMPERMEABILIZADA
P02
4
P02
4
CX D'ÁGUA
1500 LITROS
CX D'ÁGUA
1500 LITROS
2.
00
7.
47
9.
03
1.
50
1.25 7.05 1.70
1.50 7.00 1.50
TE
LH
A 
DE
 F
IB
RO
CI
ME
NT
O
7%
ESCALA 1 : 50
 PLANTA BAIXA PAVIMENTO TÉRREO _02
QUADRO DE ESQUADRIAS - JANELAS
CÓD ABERTURA L A P MATERIAL QUANT. OBSERVAÇÕES
J01 CORRER 1.70 0.50 1.30 ALUMÍNIO E VIDRO 1
J02 CORRER 1.00 0.40 1.70 ALUMÍNIO E VIDRO 3 
J03 CORRER 2.00 1.10 1.00 ALUMÍNIO E VIDRO 3 
J04 CORRER 1.10 1.10 1.00 ALUMÍNIO E VIDRO 1
J05 BASCULANTE/FIXA 0.40 5.00 0.00 ALUMÍNIO E VIDRO 2 
QUADRO DE ESQUADRIAS - PORTAS E GRADIS
CÓD ABERTURA L A P MATERIAL QUANT. OBS.
G01 GIRO 1.37 2.60 0.00 GRADIL METÁLICO 1
P01 GIRO 0.66 2.10 0.00 MADEIRA MACIÇA / LAMINADA 2 
P02 GIRO 0.76 2.10 0.00 MADEIRA MACIÇA / LAMINADA 1
P03 GIRO 0.84 2.10 0.00 MADEIRA MACIÇA / LAMINADA 3 
P04 CORRER 1.70 2.20 0.00 ALUMÍNIO E VIDRO 2 
P05 CORRER 0.66 2.10 0.00 MADEIRA MACIÇA / LAMINADA 2 
P06 CORRER 2.40 2.40 0.00 ALUMÍNIO E VIDRO 2 
P07 PIVOTANTE 1.10 5.00 0.00 MADEIRA MACIÇA / LAMINADA 1
ESCALA 1 : 500
 SITUAÇÃO _05
ESCALA 1 : 50
 COBERTURA _04
N
N
ESCALA 1 : 25
 DETALHE CALÇADA PADRÃO CONDOMÍNIO _
DESENHO
CÓPIA
VISTO
ESCALAS DESENHO(S)
RESPONSÁVEL
FOLHA PROJETO:
LOCAL:
PROPRIETÁRIO:
CONSTRUÇÃO:
PROJETO:
PROPRIETÁRIO:
DATA ARQUIVO
ETAPA - PROJETO LEGAL
*Este documento é propriedade do proprietário da obra, ficando proibida a submissão do mesmo a terceiros.
*Fica velada sua reprodução ou alteração no todo ou em parte sem a prévia autorização do Autor do Projeto.
 Conforme Lei nº5.194 de 24 de dezembro de 1966.
CORPO DE BOMBEIROS: ORGÃO AMBIENTAL:
PREFEITURA: ANÁLISE CRÍTICA PROJETO APROVADO 
EM:
INDICADA
P01
/02 XXXXXXXXX
XXXXXXXXX
RESIDÊNCIA UNIFAMILIAR
PLANTA BAIXA, COBERTURA, SITUAÇÃO E
DETALHES CONDOMÍNIO
03/05/2022 XXXXXXXXX
XXXXXXXXX
XXXXXXXXX
XXXXXXXXX
N
OBS - TERRENO DE TOPOGRAFIA PLANA SENDO DISPENSADA A APRESENTAÇÃO DE LEVANTAMENTO TOPOGRÁFICO.
FREE
 DOWNLOAD @
REVITCARS.COM
FREE
 DOWNLOAD @
REVITCARS.COM
TEXTURIZADO CINZA CLARO
CHAPIM
MADEIRA
TEXTURIZADO BRANCO
VIA
PASSEIO
CHAPIM
REVESTIMENTO EM TIJOLO APARENTE
MURO DIVISOR
MURO DIVISOR
CHAPIM
TEXTURIZADO BRANCO
CHAPIM DE CONCRETO
TEXTURIZADO BRANCO
TEXTURIZADO CINZA CLARO
FRISO
CIMENTO QUEIMADO
TEXTURIZADO CINZA CLARO
CIMENTO QUEIMADO
TEXTURIZADO CINZA CLARO
VIA
CALÇADA
TEXTURIZADO BRANCO
CHAPIM DE CONCRETO
TEXTURIZADO BRANCO
MURO DIVISOR
TEXTURIZADO CINZA CLARO
CIMENTO QUEIMADO
TEXTURIZADO CINZA CLARO
REVESTIMENTO EM 
TIJOLO APARENTE
TEXTURIZADO BRANCO
CHAPIM DE CONCRETO
FRISO
FRISO
TEXTURIZADO CINZA CLARO
CIMENTO QUEIMADO
MURO DIVISOR
TELHA DE FIBROCIMENTO 
INCLINAÇÃO 8%
CHAPIM CHAPIM
2.
86
2.
61
2.
60
1.
20
2.
61
FORROFORROFORRO
TELHA DE FIBROCIMENTO 
INCLINAÇÃO 8%
CALHA
3.
80
3.
00
-0.01 +0.00 -0.01
GOURMET CIRCULAÇÃO BWC SOCIAL
MURO DIVISOR
+3.80
+3.00
MURO DIVISOR
CHAPIMCHAPIM
CHAPIM
MURO DIVISOR
LAJE IMPERMEABILIZADA
FORROFORRO
CAIXA D'ÁGUA 
CAP. TOTAL 3.000L
2.
60
2.
00
0.
15
2.
85
5.
00
+0.00-0.05
2.
81
2.
64
5.
45
3.
00
2.
81
2.
64
5.
45
2.
60
0.
40
2.
00
3.
00
GARAGEMESTAR / JANTAR
+0.00 -0.01
3.
00
CHAPIM LAJE IMPERMEABILIZADA
0.
25
0.
15
2.
26
0.
15
2.
60
FORRO
LAJE IMPERMEABILIZADA
+5.40
+5.15
+3.00
+2.74
0.
25
0.
15
2.
26
0.
15
2.
60
0.
40
2.
00
0.
41
2.
60
5.
41
2.
60
1.
10
0.
15
2.
85
2.
60 2.
85
0.
15
0.
80
3.
85
CLOSETSUÍTE 01BWC 01BWC SOCIALCOZINHAGARAGEM
-0.01 +0.00 -0.01 -0.01 +0.00 +0.00
FORRO FORROFORRO
CHAPIM
+2.74
+5.15
+5.40
+3.00
+4.10
+3.80
MURO DIVISOR
TELHA DE FIBROCIMENTO 
INCLINAÇÃO 8%
ESCALA 1 : 50
 FACHADA LAT. ESQUERDA _6
ESCALA 1 : 50
 FACHADA LAT. DIREITA _5 ESCALA 1 : 50
 FACHADA POSTERIOR _7
ESCALA 1 : 50
 FACHADA FRONTAL _8
ESCALA 1 : 50
 CORTE 01 _1
ESCALA 1 : 50
 CORTE 03 _3
DESENHO
CÓPIA
VISTO
ESCALAS DESENHO(S)
RESPONSÁVEL
FOLHA PROJETO:
LOCAL:
PROPRIETÁRIO:
CONSTRUÇÃO:
PROJETO:
PROPRIETÁRIO:
DATA ARQUIVO
ETAPA - PROJETO LEGAL
*Este documento é propriedade do proprietário da obra, ficando proibida a submissão do mesmo a terceiros.
*Fica velada sua reprodução ou alteração no todo ou em parte sem a prévia autorização do Autor do Projeto.
 Conforme Lei nº5.194 de 24 de dezembro de 1966.
CORPO DE BOMBEIROS: ORGÃO AMBIENTAL:
PREFEITURA: ANÁLISE CRÍTICA PROJETO APROVADO 
EM:
INDICADA
P02
/02 XXXXXXXXX
XXXXXXXXX
RESIDÊNCIA UNIFAMILIAR
CORTES E FACHADAS
03/05/2022 XXXXXXXXX
XXXXXXXXX
XXXXXXXXX
XXXXXXXXX
ESCALA 1 : 50
 CORTE 02 _2
ESCALA 1 : 50
 CORTE 04 _4
	P01 - PLANTA BAIXA, COBERTURA, SITUAÇÃO E DETALHES CONDOMÍNIO
	P02 - CORTES E FACHADAS

Mais conteúdos dessa disciplina