Logo Passei Direto
Buscar
Material
páginas com resultados encontrados.
páginas com resultados encontrados.
left-side-bubbles-backgroundright-side-bubbles-background

Experimente o Premium!star struck emoji

Acesse conteúdos dessa e de diversas outras disciplinas.

Libere conteúdos
sem pagar

Ajude estudantes e ganhe conteúdos liberados!

left-side-bubbles-backgroundright-side-bubbles-background

Experimente o Premium!star struck emoji

Acesse conteúdos dessa e de diversas outras disciplinas.

Libere conteúdos
sem pagar

Ajude estudantes e ganhe conteúdos liberados!

Prévia do material em texto

DADOS DO EMPREENDIMENTO
ÁREA DO TERRENO
ÍNDICE DE UTILIZAÇÃO DO PROJETO
TAXA DE OCUPAÇÃO
352,64m²
0,276
27,62%
ÁREA TOTAL CONSTRUÍDA
ÁREA DE COBERTURA
ÁREA PERMEÁVEL (26.09%) 
180,28m²
92,01m²
180,28m²
AVENIDA ALPHAVILLE
N
4.98 m²
CIRCULAÇÃO
27.99 m²
ESTAR/JANTAR
13.55 m²
COZINHA
2.99 m²
SERVIÇO
17.59 m²
SUÍTE 01
10.16 m²
QUARTO
11.21 m²
SEMI-SUÍTE 01
11.21 m²
SEMI-SUÍTE 02
26.19 m²
GARAGEM
5.35 m²
BWC
4.31 m²
CLOSET
2.56 m²
BWC
13.02 m²
GOURMET
3.45 m²
WC
2.67 m²
HALL
P02
1
P02
1
P02
2
P02
2
P02
4
P02
4
3.01 1.60 1.29 1.61 0.15 2.65 0.12 2.65 0.12 1.50 0.12 2.65 0.12 3.00 0.15 2.49 0.15
-0.01
+0.00 +0.00
+0.00
+0.00
+0.00
+0.00 +0.00
-0.01
-0.01
+0.00
0.
15
4.
03
0.
15
1.
20
0.
15
6.
57
5.
68
3.18 0.46 0.92 3.28 0.15 3.20 0.15 1.17 0.15 2.15 2.43 0.50 7.25
14.58 7.24
0.
93
1.
50
0.
30
5.
72
0.
15
3.
85
0.
30
2.
43
10
.3
2
1.33 0.20 3.00
4.
00
6.48 0.15 3.32 0.15 2.95
1.61
1.
15
6.58
4.98
0.
60
3.
63
1.
00
4.
23
4.
23
2.
30
0.
15
1.
78
1.45
4.45
5.
38 2.49
2.
43
0.
15
4.
00
0.
15
1.
00
0.
60
3.
40
1.
60
1.60
+0.00 +0.00 -0.01
PROJEÇÃO PÉ-DIREITO ALTO
PORCELANATO COM 
APARÊNCIA DE MADEIRA
ÁREA PERMEÁVEL
ÁREA PERMEÁVEL
ÁREA PERMEÁVEL
RA
MP
A 
DE
 A
CE
SS
O 
A 
GA
RA
GE
M
ACESSO PEDESTRES
-0.01
-0.02-0.06
-0.08
-0.10
0.
49
ø 1.50
1.
51
1.70
P02
3
P02
3
P05
P06
P05
A02
P02
J03 J03 J03 J01J06
P03
P02 P03
P03
G01
P03
J02
A01
J04
J05
P04 P04
P01
J01
0.76 2.57
0.
59
0.
90
1.80
0.
69
0.47
1.30
0.
45
1.
50
1.55 m²
DESPENSA
+0.00
CASA DE GÁS
0.
78
PE
DR
A 
IN
TE
RT
RA
VA
DO
 
RE
VE
ST
IM
EN
TO
 E
M 
O 
CI
ME
NT
O,
 O
U 
EM
 IN
TE
RT
RA
VA
DO
 (C
ON
FO
RM
E
RE
GI
ME
NT
O 
IN
TE
RN
O)
 
-0.25
VIA
LOTE 271
LOTE 273
LO
TE
 25
3
ø 1.5
0
RA
MP
A 
DE
 A
CE
SS
O 
A 
GA
RA
GE
M
0.30 1.20
1.50
PASSEIO
MURO H=80cm
3.00 25.00
13
.7
114
.5
0
25.00
0.75 2.25
3.00
PROJEÇÃO LAJE DE PROTEÇÃO ESQUADRIA
PROJEÇÃO
COBERTURA GARAGEM
7.
82
PROJEÇÃO COBERTURA
1.
85
PERGOLADO PARA
ILUMINAÇÃO DO BWC
0.15
ESQUADRIA ATENDE 1/5
P/ CÁLCULO DE VENTILAÇÃO E ILUMINAÇÃO
8.16
0.
93
RECUO FRONTAL
RECUO LATERAL
RECUO LATERAL
RECUO POSTERIOR
P07
+1.25
1.
23
0.
39
0.
70
1.
80
0.
15
0.46
1.
36
0.55
0.45
1.
00
1.50 0.97
2.
15
0.
85
0.92
QUADRO DE OBSERVAÇÕES
01
02
03
04
05
CONFERIR MEDIDAS NO LOCAL;
06
O PROFISSIONAL RESPONSÁVEL PELA EXECUÇÃO DA OBRA, JUNTAMENTE COM O PROPRIETÁRIO SE COMPROMETEM A CONSTRUIR A
CALÇADA DE SUA RESPONSABILIDADE, ADEQUANDO-A COM AS VIZINHAS EXISTENTES, ATENDENDO A ACESSIBILIDADE A TODAS, 
COM RAMPAS E OUTROS ITENS NOS TERMOS DO CÓDIGO DE EDIFICAÇÕES DO MUNICÍPIO;
COTAS DOS DESENHOS, PISOS E SUPERFÍCIES EM METROS;
PARA A EXECUÇÃO DA OBRA DEVERÁ SER CONSULTADO O PROJETO DE ARQUITETURA REFERENTE À EXECUÇÃO;
OS DESENHOS APRESENTADOS NESTE DOCUMENTO FAZEM PARTE DE UM PROJETO GLOBAL DE ARQUITETURA;
PARA LEITURA DOS DESENHOS CONSIDERAR COTAS.
07 SERÃO EXECUTADAS IMPERMEABILIZAÇÕES NOS LOCAIS QUE TECNICAMENTE SE FIZEREM NECESSÁRIAS.
TELHA DE FIBROCIMENTO
RESERVATÓRIO
CAPACIDADE 1500 LITROS
ÁREA RESERVADA
PARA BOYLER DE AQUECIMENTO
RESERVATÓRIO
CAPACIDADE 1500 LITROS
TELHA DE FIBROCIMENTO
6%
RUFO DE CONCRETO
LAJE IMPERMEABILIZADA
INCLINAÇÃO 1%
P02
1
P02
1
P02
2
P02
2
P02
4
P02
4
A CX DÁGUA SERÁ ACESSADA
POR MEIO DE ESCADA COMUM
POR SE TRATAR DE RESIDÊNCIA 
TÉRREA
6%
RUFO DE CONCRETO
CALHA
CALHA
LAJE IMPERMEABILIZADA
3%
TELHA DE FIBROCIMENTO
+5.90
+6.60
+2.80 +1.25
+2.80
LAJE IMPERMEABILIZADA
LAJE IMPERMEABILIZADA
+4.10
+3.84
N
QUADRO DE ESQUADRIAS - JANELAS
CÓD ABERTURA L A P MATERIAL QUANT. OBSERVAÇÕES
J01 CORRER 1.50 0.45 1.65 ALUMÍNIO E VIDRO 2 
J02 CORRER 0.75 0.70 1.90 ALUMÍNIO E VIDRO 1
J03 CORRER 2.00 1.10 1.00 ALUMÍNIO E VIDRO 3 
J04 BASCULANTE 2.00 3.80 0.00 ALUMÍNIO E VIDRO 1
J05 BASCULANTE/FIXA 0.70 5.10 0.00 ALUMÍNIO E VIDRO 1
J06 CORRER 2.70 1.10 1.00 ALUMÍNIO E VIDRO 1
QUADRO DE ESQUADRIAS - PORTAS E GRADIS
CÓD ABERTURA L A P MATERIAL QUANT. OBS.
A01 FIXA 0.00 ABERTURA 1
A02 FIXA 0.00 ABERTURA 1
G01 GIRO 0.84 2.10 0.00 GRADIL METÁLICO 1
P01 GIRO 0.66 2.10 0.00 MADEIRA MACIÇA / LAMINADA 1
P02 GIRO 0.76 2.10 0.00 MADEIRA MACIÇA / LAMINADA 2 
P03 GIRO 0.84 2.10 0.00 MADEIRA MACIÇA / LAMINADA 4 
P04 GIRO 0.80 2.10 0.00 MADEIRA MACIÇA / LAMINADA 2 
P05 CORRER 3.20 2.20 0.00 ALUMÍNIO E VIDRO 2 
P06 PIVOTANTE 1.20 5.10 0.00 MADEIRA MACIÇA / LAMINADA 1
P07 CORRER 0.66 2.10 0.00 MADEIRA MACIÇA / LAMINADA 1
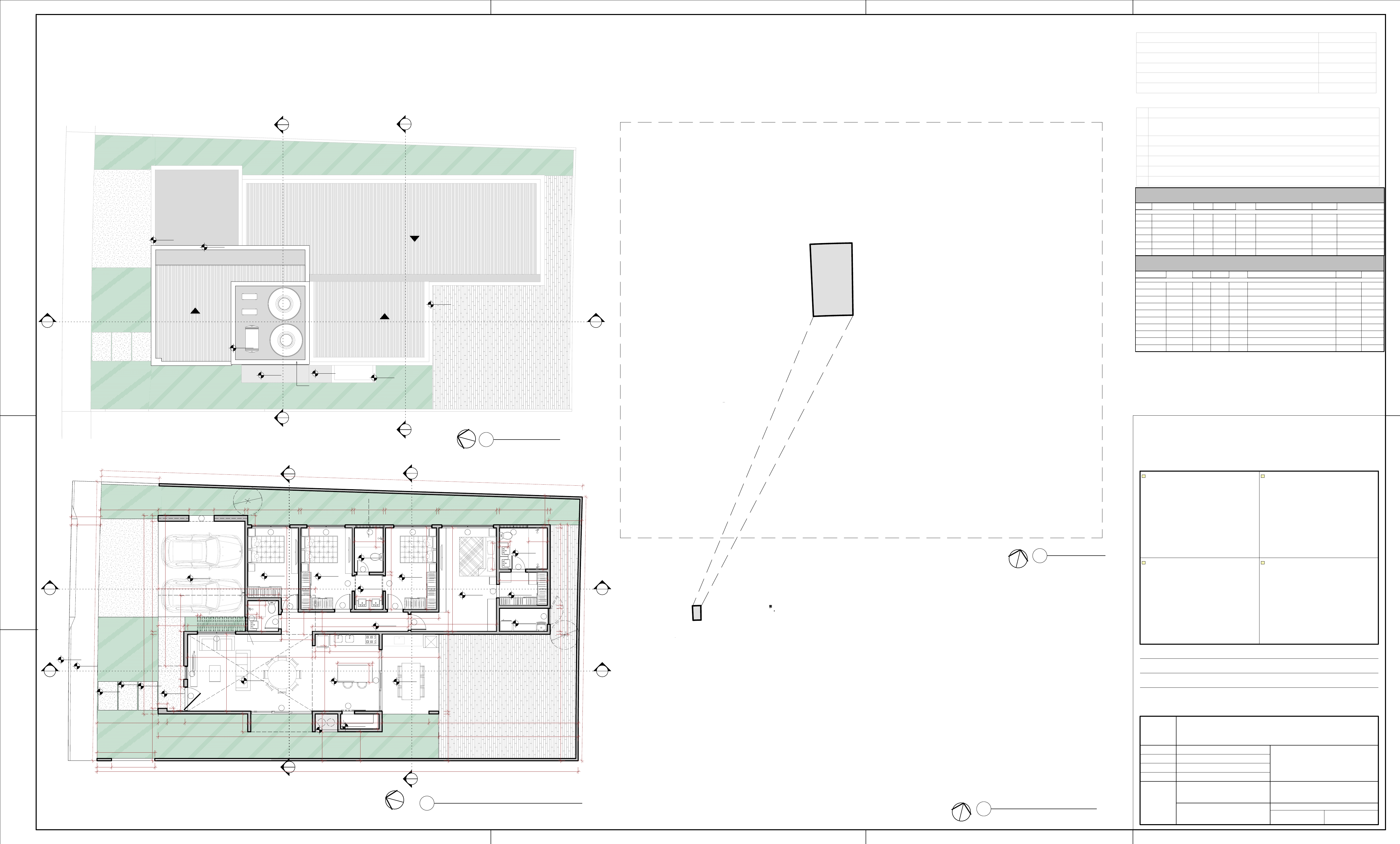
ESCALA 1 : 500
 SITUAÇÃO _05
N
ESCALA 1 : 75
 PLANTA BAIXA PAVIMENTO TÉRREO _1
ESCALA 1 : 2500
 MAPA DE LOCALIZAÇÃO _2
DESENHO
CÓPIA
VISTO
ESCALAS DESENHO(S)
RESPONSÁVEL
FOLHA PROJETO:
LOCAL:
PROPRIETÁRIO:
CONSTRUÇÃO:
PROJETO:
PROPRIETÁRIO:
DATA ARQUIVO
ETAPA - PROJETO LEGAL
*Este documento é propriedade do proprietário da obra, ficando proibida a submissão do mesmo a terceiros.
*Fica velada sua reprodução ou alteração no todo ou em parte sem a prévia autorização do Autor do Projeto.
 Conforme Lei nº5.194 de 24 de dezembro de 1966.
CORPO DE BOMBEIROS: ORGÃO AMBIENTAL:
PREFEITURA: ANÁLISE CRÍTICA PROJETO APROVADO 
EM:
INDICADA
P01
/02 XXXXXXXXX
XXXXXXXXX
RESIDÊNCIA UNIFAMILIAR
PLANTA BAIXA TÉRREO, COBERTURA,
MAPA DE LOCALIZAÇÃO E SITUAÇÃO
09/11/2021 LOTE 272
XXXXXXXXX
XXXXXXXXX
XXXXXXXXX
ESCALA 1 : 75
 COBERTURA _3
N
QUADRO DE OBSERVAÇÕES
01
02
03
04
05
CONFERIR MEDIDAS NO LOCAL;
06
O PROFISSIONAL RESPONSÁVEL PELA EXECUÇÃO DA OBRA, JUNTAMENTE COM O PROPRIETÁRIO SE COMPROMETEM A CONSTRUIR A
CALÇADA DE SUA RESPONSABILIDADE, ADEQUANDO-A COM AS VIZINHAS EXISTENTES, ATENDENDO A ACESSIBILIDADE A TODAS, 
COM RAMPAS E OUTROS ITENS NOS TERMOS DO CÓDIGO DE EDIFICAÇÕES DO MUNICÍPIO;
COTAS DOS DESENHOS, PISOS E SUPERFÍCIES EM METROS;
PARA A EXECUÇÃO DA OBRA DEVERÁ SER CONSULTADO O PROJETO DE ARQUITETURA REFERENTE À EXECUÇÃO;
OS DESENHOS APRESENTADOS NESTE DOCUMENTO FAZEM PARTE DE UM PROJETO GLOBAL DE ARQUITETURA;
PARA LEITURA DOS DESENHOS CONSIDERAR COTAS.
07 SERÃO EXECUTADAS IMPERMEABILIZAÇÕES NOS LOCAIS QUE TECNICAMENTE SE FIZEREM NECESSÁRIAS.
0.
30
0.
15
5.
45 5.
90
1.
00
5.
60
6.
60
0.
55
5.
355.
90
0.
60
0.
15
3.
09
3.
83
0.
01
1.
10
2.
74
3.
84
ESTAR/JANTAR COZINHA GOURMET
+0.00 +0.00 -0.01 -0.02
5.
20
2.
80
2.
80
CAIXA D'ÁGUA
CAP. TOTAL 1.500L
PLATIBANDA / CHAPIM
TELHA DE FIBROCIMENTO
INCLINAÇÃO 6%
FORRO DE GESSO
FORRO DE GESSO FORRO DE GESSO
2.
00
PASSEIO
-0.01-0.10
-0.25
2.
80
1.
00
0.
15
5.
456.
60 0.
60
0.
15
3.
09
3.
84
0.
55
5.
35 5.
90
ESTAR/JANTAR QUARTO
+0.00 +0.00
5.
20
2.
80
2.
80
CAIXA D'ÁGUA
CAP. TOTAL 1.500L
CAIXA D'ÁGUA
CAP. TOTAL 1.500L
TELHA DE FIBROCIMENTO
INCLINAÇÃO 6%
PLATIBANDA / CHAPIM
CALHA
PLATIBANDA / CHAPIM
LAJE IMPERMEABILIZADA
CALHA
FORRO DE GESSO
FORRO DE GESSO
2.
00
2.
00
0.
60
0.
15
3.
10
3.
85
3.
84
3.
09
GOURMET
SUÍTE 01
SEMI-SUÍTE 02
+0.00 +0.00 +0.00
2.
81
2.
80
2.
80
TELHA DE FIBROCIMENTO
INCLINAÇÃO 6%
TELHA DE FIBROCIMENTO
INCLINAÇÃO 6%
CALHA
FORRO DE GESSO FORRO DE GESSO
2.
00
2.
00
PINTURA BRANCA
PINTURA CINZA ESCURA
PINTURA BRANCA
ARRIMO A SER 
IMPERMEABILIZADO 
ÁREA DE ATERRO
PINTURA BRANCA
PINTURA CINZA ESCURA
REVESTIMENTO COM APARÊNCIA DE CONCRETO
PINTURA CINZA ESCURA
0.
80
POSTE DE ENERGIA
MEDIDOR DE ENERGIA
HIDRÔMETRO
PINTURA BRANCA
PINTURA CINZA ESCURA
REVESTIMENTO COM APARÊNCIA DE CONCRETO REVESTIMENTO PORCELANATO 3D
REVESTIMENTO COM APARÊNCIA DE MADEIRA
COM RÉGUAS NA HORIZONTAL
3.
90
PINTURA CINZA ESCURA
PINTURA CINZA ESCURA
NÍVEL TÉRREO
PINTURA BRANCA
PINTURA CINZA ESCURA
PINTURA BRANCA
PROJEÇÃO MURO DIVISOR
0.
30
3.
814.
11
0.
60
0.
15
3.
09
3.
84
3.
84
GARAGEM QUARTO SEMI-SUÍTE 01 HALL SEMI-SUÍTE 02 SUÍTE 01 CLOSET
+0.00 +0.00 +0.00 +0.00 +0.00 +0.00
2.
80
2.
80
2.
80
2.
80
2.
80
2.
80
TELHA DE FIBROCIMENTO
INCLINAÇÃO 6%
LAJE IMPERMEABILIZADA
FORRO DE GESSO FORRODE GESSO FORRO DE GESSO FORRO DE GESSO FORRO DE GESSO FORRO DE GESSO
2.
00
PASSEIO
-0.01-0.10
-0.25
DESENHO
CÓPIA
VISTO
ESCALAS DESENHO(S)
RESPONSÁVEL
FOLHA PROJETO:
LOCAL:
PROPRIETÁRIO:
CONSTRUÇÃO:
PROJETO:
PROPRIETÁRIO:
DATA ARQUIVO
ETAPA - PROJETO LEGAL
*Este documento é propriedade do proprietário da obra, ficando proibida a submissão do mesmo a terceiros.
*Fica velada sua reprodução ou alteração no todo ou em parte sem a prévia autorização do Autor do Projeto.
 Conforme Lei nº5.194 de 24 de dezembro de 1966.
CORPO DE BOMBEIROS: ORGÃO AMBIENTAL:
PREFEITURA: ANÁLISE CRÍTICA PROJETO APROVADO 
EM:
INDICADA
P02
/02 XXXXXXXXX
XXXXXXXXX
RESIDÊNCIA UNIFAMILIAR
CORTES E FACHADAS
09/11/2021 LOTE 272
XXXXXXXXX
XXXXXXXXX
XXXXXXXXX
ESCALA 1 : 75
 CORTE 01 _1
ESCALA 1 : 75
 CORTE 02 _2
ESCALA 1 : 75
 CORTE 04 _4
ESCALA 1 : 75
 FACHADA SUL _5
ESCALA 1 : 75
 FACHADA LESTE _6
ESCALA 1 : 75
 FACHADA NORTE _7 ESCALA 1 : 75
 FACHADA OESTE _8
ESCALA 1 : 75
 CORTE 03 _3
	P01 - PLANTA BAIXA TÉRREO, COBERTURA, MAPA DE LOCALIZAÇÃO E SITUAÇÃO
	P02 - CORTES E FACHADAS

Mais conteúdos dessa disciplina