Logo Passei Direto
Buscar
Material
páginas com resultados encontrados.
páginas com resultados encontrados.
left-side-bubbles-backgroundright-side-bubbles-background

Crie sua conta grátis para liberar esse material. 🤩

Já tem uma conta?

Ao continuar, você aceita os Termos de Uso e Política de Privacidade

Prévia do material em texto

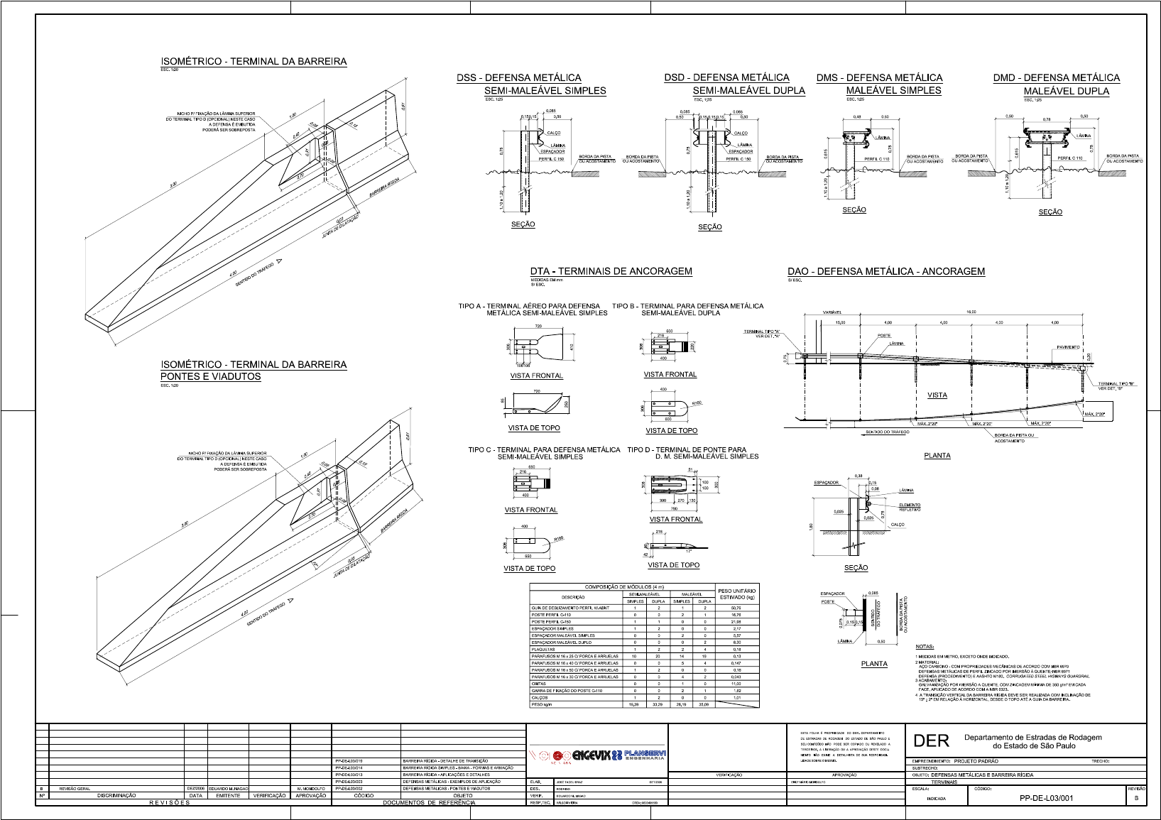
<p>ISOMÉTRICO - TERMINAL DA BARREIRA DSS DEFENSA METÁLICA DSD - DEFENSA METÁLICA DMS DEFENSA METÁLICA DMD DEFENSA METÁLICA SEMI-MALEÁVEL SIMPLES SEMI-MALEÁVEL DUPLA MALEÁVEL SIMPLES MALEÁVEL DUPLA ESC. 1:25 ESC. 1:25 0.085 NICHO DA SUPERIOR 0.085 0.085 0.50 DO TERMINAL TIPO (OPCIONAL) NESTE CASO 0.50 0.50 0.48 0.50 0.50 0.50 0.78 EMBUTIDA PODERÁ SOBREPOSTA CALCO ESPAÇADOR PERF C 150 BORDA PISTA BORDA DA PISTA PERFIL C 150 BORDA BORDA PISTA BORDA DA PISTA PERFIL C 110 BORDA PISTA ACOSTAMENTO PERFIL C 110 ACOSTAMENTO SEÇÃO SEÇÃO SEÇÃO SEÇÃO DTA TERMINAIS DE ANCORAGEM DAO - DEFENSA METÁLICA - ANCORAGEM MEDIDAS EM mm TIPO A TERMINAL AÉREO PARA DEFENSA TIPO B TERMINAL PARA DEFENSA METÁLICA METÁLICA SEMI-MALEÁVEL SIMPLES SEMI-MALEAVEL DUPLA VARIÁVEL 16.00 15.00 4.00 4.00 4.00 4.00 720 600 TERMINAL 216 POSTE LAMINA PAVIMENTO 400 ISOMÉTRICO - TERMINAL DA BARREIRA PONTES E VIADUTOS VISTA FRONTAL VISTA FRONTAL ESC 1:20 TERMINAL 400 "B" 720 VISTA R160 600 VISTA DE TOPO VISTA DE TOPO SENTIDO BORDA PISTA OU ACOSTAMENTO TIPO C TERMINAL PARA DEFENSA METÁLICA TIPO D TERMINAL DE PONTE PARA DA SUPERIOR DO TERMINAL SEMI-MALEAVEL SIMPLES D. M. SEMI-MALEÁVEL SIMPLES PLANTA EMBUTIDA 650 PODERÁ SER SOBREPOSTA 216 100 ESPACADOR 0.15 100 0.08 400 390 270 130 ELEMENTO VISTA FRONTAL 790 0.025 REFLETIVO VISTA FRONTAL 400 CALCO 216 R160 N 17 650 42 VISTA DE TOPO VISTA DE TOPO SEÇÃO COMPOSIÇÃO DE MÓDUL m) PESO UNITÁRIO SEM MALEÁVEL ESPACADOR 0.085 ESTIMADO (kg) H SIMPLES DUPLA SIMPLES DUPLA POSTE GUIA DE DESLIZAMENTO W-ABNT 1 2 1 2 2 50.76 POSTE PERFIL C-110 0 0 2 16.76 POSTE PERFIL C-150 1 1 0 0 21.98 ESPACADOR SIMPLES 1 2 0 0 2.17 ESPACADOR SIMPLES 0 0 2 0 5.57 ESPACADOR 0 0 0 2 8.30 0.50 NOTAS: PLAQUETAS 1 2 2 4 0.18 PARAFUSOS ARRUELAS 10 20 14 19 0.13 1 MEDIDAS EM METRO EXCETO ONDE ARRUELAS 0 0 5 0.147 PLANTA CARBONO COM PROPRIEDADES DE ACORDO COM NBR 6970 PARAFUSOS ARRUELAS 1 2 0 0 0.16 DEFENSAS METÁLICAS DE PERFIL ZINCADO POR IMERSÃO QUENTE NBR 6971 PARAFUSOS ARRUELAS 0 0 4 2 0.043 DEFENSA CORRUGATED STEEL HIGWAY GUARDRAIL 3 CINTAS 0 0 0 11.00 POR QUENTE COM ZINCAGEM DE EM CADA FACE 0 FACE GARRA DE C-110 0 2 LICADO 1 ACORDO RÍGIDA DEVE SER REALIZADA CALCOS 1 2 0 0 1.01 DESDE GUIA DA BARREIRA PESO kg/m 19.39 33.29 28.19 35.09 ESTA FOLHA PROPRIEDADE DER DEPARTAMENTO DE ESTRADAS RODAGEM ESTADO PAULO E PODE COPIADO REVELADO DER Departamento de Estradas de Rodagem do Estado de São Paulo LIBERAÇÃO APROVAÇÃO DESTE PLANSERVI MENTO EXIME DETALHISTA SUA PP-DE-L03/019 BARRE DETALHE DE LIDADE OMESMO EMPREENDIMENTO: PROJETO PADRÃO BARRE IRA RIGIDA SIMPLES BAIXA FORMAS SUBTRECHO PP-DE-L03/013 BARREIRA APLICAÇÕES APROVAÇÃO OBJETO: DEFENSAS F BARREIRA DEFENSAS EXEMPLOS ELAB JOSE SET/2005 MONDOLFO TERMINAIS B REVISÃO DEZ/2006 EDUARDO NAGAC MONDOLEO DEFENSAS METÁLICAS -PONTES VIADUTOS DES ESCALA CÓDIGO: REVISÃO DISCRIMINAÇÃO DATA EMITENTE ICAÇÃO APROVAÇÃO CÓDIGO OBJETO EDUARDO INDICADA PP-DE-L03/001 B REVISÕES DOCUMENTOS DE REFERÊNCIA CREA</p>

Mais conteúdos dessa disciplina