Logo Passei Direto
Buscar
Material
páginas com resultados encontrados.
páginas com resultados encontrados.
left-side-bubbles-backgroundright-side-bubbles-background

Crie sua conta grátis para liberar esse material. 🤩

Já tem uma conta?

Ao continuar, você aceita os Termos de Uso e Política de Privacidade

left-side-bubbles-backgroundright-side-bubbles-background

Crie sua conta grátis para liberar esse material. 🤩

Já tem uma conta?

Ao continuar, você aceita os Termos de Uso e Política de Privacidade

left-side-bubbles-backgroundright-side-bubbles-background

Crie sua conta grátis para liberar esse material. 🤩

Já tem uma conta?

Ao continuar, você aceita os Termos de Uso e Política de Privacidade

Prévia do material em texto

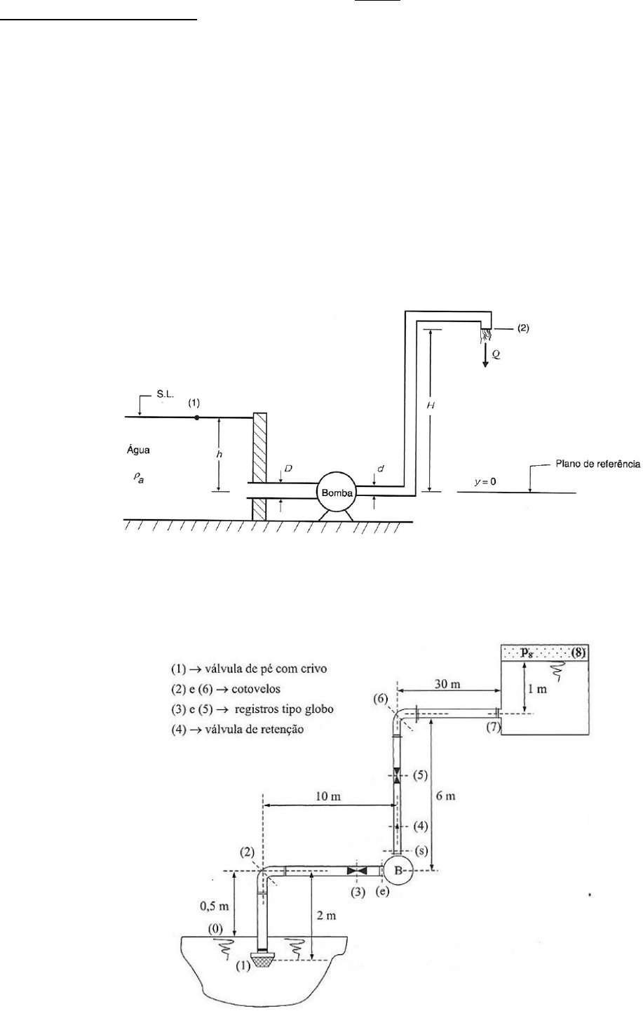
<p>Universidade Federal Rural do Rio de Janeiro</p><p>IT395 Princípio das Operações Unitárias</p><p>DEQ/IT/UFRRJ</p><p>Professor: Cristiano</p><p>Lista 1</p><p>TRANSPORTE DE FLUIDO</p><p>1) Mostrar a equação de Bernoulli Modificada e definir o significado de cada termo desta equação.</p><p>2) Determinar a diferença de pressão entre a entrada e saída de uma tubulação de aço comercial com 1 km de</p><p>comprimento e diâmetro de 45 cm. O fluido é óleo (ρ = 840 kg/m</p><p>3</p><p>e ν = µ/ρ = 1,06.10</p><p>-5</p><p>m</p><p>2</p><p>/s) e vazão de 190</p><p>litros/segundos.</p><p>R: ΔP = 28.647 Pa</p><p>3) A figura abaixo mostra um esquema simplificado e fora de escala de uma bomba que retira água, através de um duto de</p><p>diâmetro interno D = 10 cm, de um reservatório de grandes dimensões com a superfície livre (S.L.) mantida em nível</p><p>constante. A água é descarregada, com vazão constante Q = 0,02 m</p><p>3</p><p>/s, a uma altura H = 38 m acima da bomba, através de</p><p>um duto de diâmetro interno d = 8 cm, em uma caixa-d´água aberta para a atmosfera. Considerando que entre as seções</p><p>(1) e (2) mostradas na Figura abaixo existe uma perda de carga ht = 2 m e que h = 3 m, determine a potência que a bomba</p><p>fornece ao escoamento para um rendimento de 70%.</p><p>R: Pot = 10.493 W</p><p>4) Sendo a pressão P8 mantida igual a 532 kPa constante, determinar a potência da bomba que possui 70% de rendimento</p><p>e a pressão na entrada dela se a vazão for de 40 L/s. Dados: Tubo de ferro galvanizado; Dsucção= 15 cm e Drecalque= 10 cm;</p><p>ν = 10</p><p>-6</p><p>m</p><p>2</p><p>/s; γágua=10</p><p>4</p><p>N/m</p><p>3</p><p>; Patm= 101 kPa.</p><p>R: Pot = 47,36 kW;</p><p>CARACTERIZAÇÃO DE PARTÍCULAS</p><p>1) Um profissional foi convocado para projetar um reator do tipo leito fluidizado, destinado ao craqueamento catalítico de</p><p>petróleo. Para tanto, a primeira informação a ser obtida sobre o projeto refere-se à caracterização do material</p><p>particulado. A classificação foi conduzida por meio de peneiramento de uma amostra de 100g de partículas, cujos</p><p>resultados percentuais de massa, retido em cada peneira, são mostrados abaixo.</p><p>a) Construa uma tabela que mostre as fracções ponderais das partículas xi, yi e zi;</p><p>b) Determine o gráfico da distribuição de tamanho acumulada;</p><p>c) Determine o diâmetro médio de Sauter.</p><p>Peneiras (mesh) Percentual em</p><p>massa retido</p><p>-65 +80 0</p><p>-80 +100 1,29</p><p>-100 +115 5,93</p><p>-115 +150 9,70</p><p>-150 +170 14,16</p><p>-170 +200 16,97</p><p>-200 +250 15,21</p><p>-250 +270 14,32</p><p>-270 +325 11,21</p><p>-325 +400 6,18</p><p>-400 fundo 5,03</p><p>R:</p><p>mesh d#(-) mm d#(+) mm d(med) mm massa retida (g) xi yi zi</p><p>-65 +80 0,21 0,177 0,194 0,00 0,000 1,000 0,000</p><p>-80 +100 0,177 0,149 0,163 1,29 0,013 0,987 0,013</p><p>-100 +115 0,149 0,125 0,137 5,93 0,059 0,928 0,072</p><p>-115 +150 0,125 0,105 0,115 9,70 0,097 0,831 0,169</p><p>-150 +170 0,105 0,088 0,097 14,16 0,142 0,689 0,311</p><p>-170 +200 0,088 0,074 0,081 16,97 0,170 0,520 0,481</p><p>-200 +250 0,074 0,063 0,069 15,21 0,152 0,367 0,633</p><p>-250 +270 0,063 0,053 0,058 14,32 0,143 0,224 0,776</p><p>-270 +325 0,053 0,044 0,049 11,21 0,112 0,112 0,888</p><p>-325 +400 0,044 0,037 0,041 6,18 0,062 0,050 0,950</p><p>-400 0,037 fundo 0,037 5,03 0,050 0,000 1,000</p><p>100,00 1,000</p><p>Dmed. Sauter = 0,0675</p><p>OBS: para calcular o diâmetro médio de Sauter utiliza-se o diâmetro médio da partícula!</p><p>2) Os resultados de uma análise granulométrica de quartzo estão representados na tabela abaixo. Determine graficamente</p><p>as distribuições de tamanho acumulativa, bem como as frações ponderais xi, yi e zi. Determine o diâmetro médio de</p><p>Sauter.</p><p>Peneiras (mesh) Massa retida (g)</p><p>4 0</p><p>6 6,68</p><p>8 9,096</p><p>10 14,992</p><p>14 23,408</p><p>20 8,976</p><p>28 4,88</p><p>35 3,424</p><p>48 2,328</p><p>65 1,882</p><p>100 1,712</p><p>150 1,422</p><p>325 1,2</p><p>fundo 0</p><p>0,0</p><p>0,2</p><p>0,4</p><p>0,6</p><p>0,8</p><p>1,0</p><p>0 0,1 0,2 0,3</p><p>y</p><p>d (mm)</p><p>Distribuição acumulada</p>

Mais conteúdos dessa disciplina