Logo Passei Direto
Buscar
Material
páginas com resultados encontrados.
páginas com resultados encontrados.
left-side-bubbles-backgroundright-side-bubbles-background

Crie sua conta grátis para liberar esse material. 🤩

Já tem uma conta?

Ao continuar, você aceita os Termos de Uso e Política de Privacidade

Prévia do material em texto

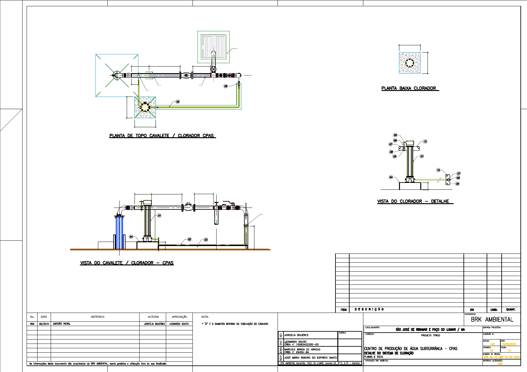
<p>2D*5D *.50</p><p>5D *</p><p>2D *</p><p>.50</p><p>CAIXA DE DRENAGEM</p><p>COM TAMPA METÁLICA</p><p>TIPO GRELHA</p><p>(DIM: 0,60X0,60XHVAR)</p><p>.20</p><p>.60</p><p>.</p><p>6</p><p>0</p><p>.</p><p>2</p><p>0</p><p>.</p><p>2</p><p>0</p><p>Esc.: 1:25</p><p>01</p><p>- 1,00</p><p>SISTEMA DOSADOR REF.: NORCLOR TC9032 - LONZA.</p><p>04 BASE EM CONCRETO</p><p>02 TUBO PVC SOLDAVEL</p><p>8,00</p><p>03</p><p>BASE EM ALVENARIA (H=0,05m; L= 0,10M; C - AJUSTAR EM CAMPO)</p><p>07 COLAR DE TOMADA EM FºFº</p><p>08</p><p>LUVA PVC SOLDÁVEL</p><p>05</p><p>JOELHO PVC/SOL</p><p>06</p><p>10</p><p>UN</p><p>M</p><p>UN</p><p>UN</p><p>UN</p><p>UN</p><p>UN</p><p>UN</p><p>2,00</p><p>1,00</p><p>1,00</p><p>1,00</p><p>3,00</p><p>1,00</p><p>1,00</p><p>25MM</p><p>-</p><p>60X60X20CM</p><p>25MM</p><p>2.1/2X3/4"</p><p>25MM</p><p>25mm</p><p>- -CONF. PROJETO</p><p>ADAPTADOR SOLDÁVEL CURTO C/BOLSA-ROSCA</p><p>UN</p><p>1,0025mmX3/4"</p><p>09 REGISTRO DE ESFERA EM PVC</p><p>TUBO DE uPVC</p><p>TRECHO DE ACOMODAÇÃO DE</p><p>FLUXO PROIBIDO INSTALAÇÃO</p><p>DE SINGULARIDADE</p><p>PONTO PARA INSTALAÇÃO DA</p><p>ENTRADA DO CLORADOR</p><p>PONTO PARA INSTALAÇÃO</p><p>DA ENTRADA DO CLORADOR</p><p>(ALTURA DE MONTAGEM</p><p>PELO CAMPO)</p><p>P</p><p>C</p><p>BRK AMBIENTAL Maranhão. PAÇO DO LUMIAR. Avenida 09, Nº15, Q:76 - Maiobão.</p><p>Esc.: 1:25</p><p>Esc.: 1:25</p><p>.60</p><p>.</p><p>6</p><p>0</p><p>PARA DETALHE DO CAVALETE DO CPAS VER DES BRK-AG-PE-EMP-CA-HD-DE01</p><p>NOTA:</p><p>Esc.: 1:25</p><p>AutoCAD SHX Text</p><p>02</p><p>AutoCAD SHX Text</p><p>01</p><p>AutoCAD SHX Text</p><p>01</p><p>AutoCAD SHX Text</p><p>04</p><p>AutoCAD SHX Text</p><p>05</p><p>AutoCAD SHX Text</p><p>06</p><p>AutoCAD SHX Text</p><p>07</p><p>AutoCAD SHX Text</p><p>08</p><p>AutoCAD SHX Text</p><p>05</p><p>AutoCAD SHX Text</p><p>07</p><p>AutoCAD SHX Text</p><p>08</p><p>AutoCAD SHX Text</p><p>05</p><p>AutoCAD SHX Text</p><p>04</p><p>AutoCAD SHX Text</p><p>10</p><p>AutoCAD SHX Text</p><p>10</p><p>AutoCAD SHX Text</p><p>VISTA DO CLORADOR - DETALHE</p><p>AutoCAD SHX Text</p><p>09</p><p>AutoCAD SHX Text</p><p>02</p><p>AutoCAD SHX Text</p><p>ITEM</p><p>AutoCAD SHX Text</p><p>D E S C R I Ç Ã O</p><p>AutoCAD SHX Text</p><p>DN</p><p>AutoCAD SHX Text</p><p>UNID.</p><p>AutoCAD SHX Text</p><p>QUANT.</p><p>AutoCAD SHX Text</p><p>APROVAÇÃO BRK AMBIENTAL:</p><p>AutoCAD SHX Text</p><p>LOCAL/MUNICÍPIO:</p><p>AutoCAD SHX Text</p><p>SÃO JOSÉ DE RIBAMAR E PAÇO DO LUMIAR / MA</p><p>AutoCAD SHX Text</p><p>EMPRESA PROJETISTA:</p><p>AutoCAD SHX Text</p><p>FORMATO:</p><p>AutoCAD SHX Text</p><p>CONTRATO N°:</p><p>AutoCAD SHX Text</p><p>ESCALA:</p><p>AutoCAD SHX Text</p><p>FOLHA:</p><p>AutoCAD SHX Text</p><p>1:25</p><p>AutoCAD SHX Text</p><p>A2</p><p>AutoCAD SHX Text</p><p>1/1</p><p>AutoCAD SHX Text</p><p>NÚMERO DE ORIGEM:</p><p>AutoCAD SHX Text</p><p>HISTÓRICO (ALTERAÇÃO):</p><p>AutoCAD SHX Text</p><p>R00</p><p>AutoCAD SHX Text</p><p>BRK AMBIENTAL</p><p>AutoCAD SHX Text</p><p>CONTEÚDO:</p><p>AutoCAD SHX Text</p><p>BRK-AG-PE-EMP-CA-HD-DE03</p><p>AutoCAD SHX Text</p><p>CONTRATANTE:</p><p>AutoCAD SHX Text</p><p>DATA:</p><p>AutoCAD SHX Text</p><p>15/08/2019</p><p>AutoCAD SHX Text</p><p>RESP.</p><p>AutoCAD SHX Text</p><p>GEREN.</p><p>AutoCAD SHX Text</p><p>RUBRICA</p><p>AutoCAD SHX Text</p><p>DES.</p><p>AutoCAD SHX Text</p><p>ENG%%D</p><p>AutoCAD SHX Text</p><p>BRK AMBIENTAL Maranhão. PAÇO DO LUMIAR. Avenida 09, Nº15, Q:76 - Maiobão.</p><p>AutoCAD SHX Text</p><p>08/2019</p><p>AutoCAD SHX Text</p><p>R00</p><p>AutoCAD SHX Text</p><p>DATA</p><p>AutoCAD SHX Text</p><p>No.</p><p>AutoCAD SHX Text</p><p>EMISSÃO INICIAL</p><p>AutoCAD SHX Text</p><p>AUTORIA</p><p>AutoCAD SHX Text</p><p>HISTÓRICO</p><p>AutoCAD SHX Text</p><p>APROVAÇÃO</p><p>AutoCAD SHX Text</p><p>As informações deste documento são propriedade da BRK AMBIENTAL, sendo proibida a utilização fora da sua finalidade.</p><p>AutoCAD SHX Text</p><p>JORCÉLIA BOUÉRES</p><p>AutoCAD SHX Text</p><p>LEONARDO SOUTO</p><p>AutoCAD SHX Text</p><p>JORCÉLIA BOUÉRES</p><p>AutoCAD SHX Text</p><p>MARCELO BRAGA DE ARAÚJO CREA n° 29454-BA</p><p>AutoCAD SHX Text</p><p>LEONARDO SOUTO CREA n° 1006342230D-GO</p><p>AutoCAD SHX Text</p><p>JOSÉ MÁRIO RIBEIRO DO ESPIRITO SANTO</p><p>AutoCAD SHX Text</p><p>CENTRO DE PRODUÇÃO DE ÁGUA SUBTERRÂNEA - CPAS</p><p>AutoCAD SHX Text</p><p>DETALHE DO SISTEMA DE CLORAÇÃO</p><p>AutoCAD SHX Text</p><p>PLANTA E VISTA</p><p>AutoCAD SHX Text</p><p>PROJETO TÍPICO</p><p>AutoCAD SHX Text</p><p>NOTA:</p><p>AutoCAD SHX Text</p><p>* "D" É O DIAMETRO INTERNO DA TUBULAÇÃO DO CAVALETE</p><p>AutoCAD SHX Text</p><p>PLANTA DE TOPO CAVALETE / CLORADOR CPAS</p><p>AutoCAD SHX Text</p><p>PLANTA BAIXA CLORADOR</p><p>AutoCAD SHX Text</p><p>VISTA DO CAVALETE / CLORADOR - CPAS</p><p>AutoCAD SHX Text</p><p>03</p><p>Sheets and Views</p><p>Model</p>