Logo Passei Direto
Buscar
Material
páginas com resultados encontrados.
páginas com resultados encontrados.
left-side-bubbles-backgroundright-side-bubbles-background

Crie sua conta grátis para liberar esse material. 🤩

Já tem uma conta?

Ao continuar, você aceita os Termos de Uso e Política de Privacidade

Prévia do material em texto

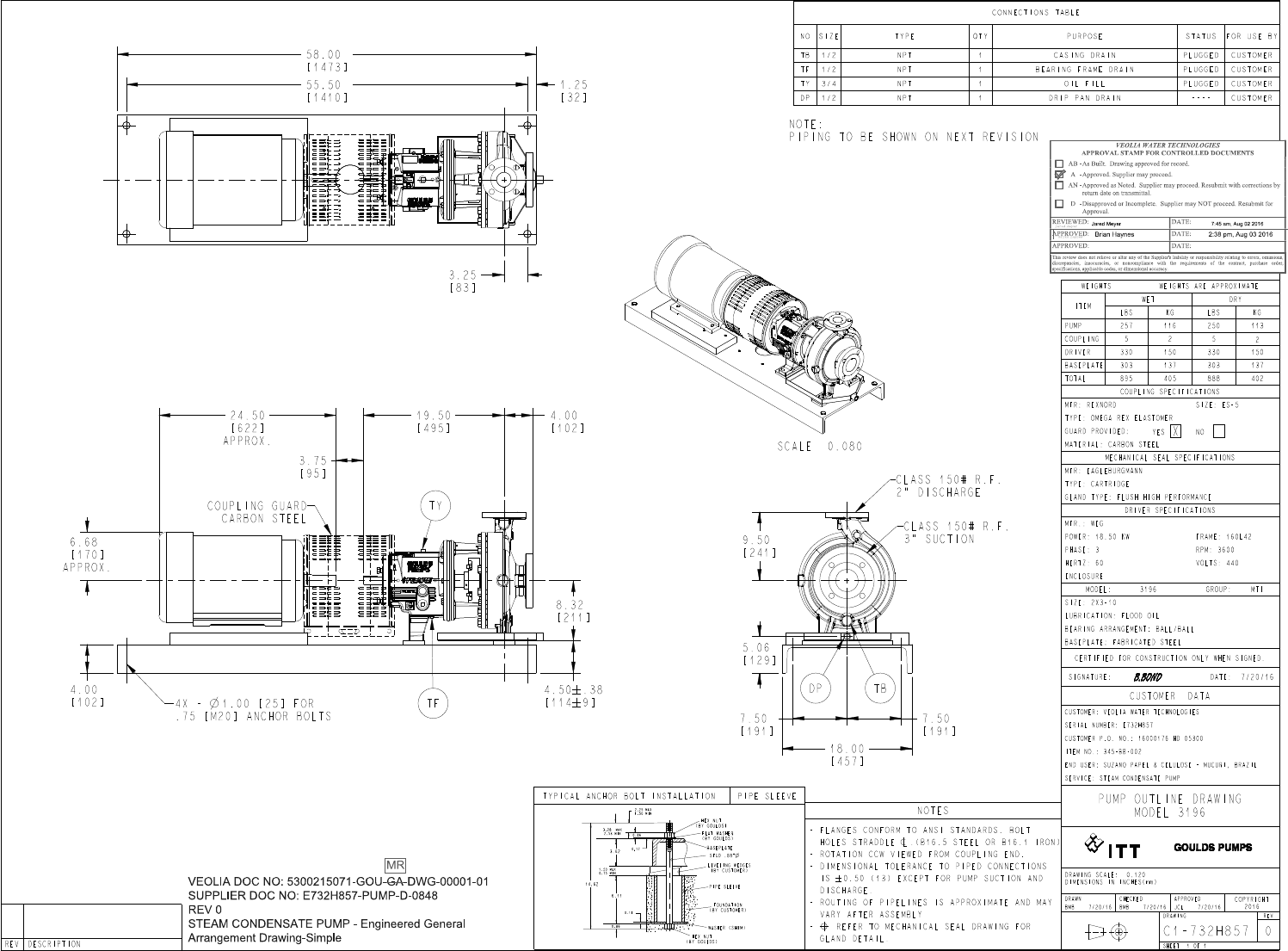
<p>CONNECTIONS TABLE NO SIZE TYPE QTY PURPOSE STATUS FOR USE BY 58.00 TB 1/2 NPT 1 CASING DRAIN PLUGGED CUSTOMER [1473] TF 1/2 NPT 1 BEARING FRAME DRAIN PLUGGED CUSTOMER 55.50 1.25 TY 3/4 NPT 1 OIL FILL PLUGGED CUSTOMER [1410] [32] DP 1/2 NPT 1 DRIP PAN DRAIN CUSTOMER NOTE PIPING TO BE SHOWN ON NEXT REVISION TECHNOLOGIES APPROVAL STAMP FOR CONTROLLED DOCUMENTS Drawing approved for A -Approved. Supplier may -Approved as Noted. Supplier may proceed Resubmit with corrections by return date on transmittal D -Disapproved or Supplier may NOT proceed Resubmit for Approval Jared Meyer DATE 2016 Brian Haynes DATE 2:38 Aug 03 2016 APPROVED DATE This review not relieve alter any of the Supplier's liability responsibility relating noncompliance with the requirements of the purchase order applicable 3.25 [83] WE EIGHTS WEIGHTS ARE APPROXIMATE WET DRY ITEM LBS KG LBS KG PUMP 257 116 250 113 COUPLING 5 2 5 2 DRIVER 330 150 330 150 BASEPLATE 303 137 303 137 TOTAL 895 405 888 402 COUPLING SPECIFICATIONS MFR: REXNORD SIZE: ES-5 24.50 19.50 4.00 TYPE: OMEGA REX ELASTOMER [622] [495] [102] GUARD PROVIDED: YES X NO SCALE 0.080 MATERIAL: CARBON STEEL 3.75 MECHANICAL SEAL SPECIFICATIONS [95] MFR: EAGLEBURGMANN CLASS 150# R.F. TYPE: CARTRIDGE 2" DISCHARGE GLAND TYPE: FLUSH HIGH PERFORMANCE COUPLING GUARD TY DRIVER SPECIFICATIONS CARBON STEEL CLASS 150# MFR. WEG 6.68 9.50 3" SUCTION 18.50 KW 160L42 [170] [241] PHASE 3 RPM: 3600 APPROX HERTZ: 60 VOLTS: 440 ENCLOSURE MODEL: 3196 GROUP: 8.32 SIZE: 2X3-10 [211] FLOOD OIL BEARING BALL/BALL FABRICATED STEEL 5.06 [129] CERTIFIED FOR CONSTRUCTION ONLY WHEN SIGNED B.BOND DATE: 7/20/16 4.00 DP TB CUSTOMER DATA [102] 4X 01.00 [25] FOR TF 75 [M20] ANCHOR BOLTS VEOLIA WATER TECHNOLOGIES 7.50 7.50 SERIAL NUMBER: E732H857 [191] [191] CUSTOMER P.O. NO.: 16000176 HD 05300 18.00 ITEM NO. 345-BB-002 [457] END USER: SUZANO PAPEL & CELULOSE - BRAZIL STEAM CONDENSATE PUMP TYPICAL ANCHOR BOLT INSTALLATION PIPE SLEEVE PUMP OUTLINE DRAWING NOTES MODEL 3196 NUT BY FLAT WASHER FLANGES CONFORM TO ANSI BOLT GOULDS) HOLES STRADDLE (B16.5 STEEL OR IRON) 3.62 STUD ROTATION CCW VIEWED FROM COUPLING END. ITT GOULDS PUMPS MR LEVELING WEDGES DIMENSIONAL TOLERANCE TO PIPED CONNECTIONS CUSTOMER) IS (13) EXCEPT FOR PUMP SUCTION AND DRAWING SCALE: 0.120 VEOLIA DOC NO: 5300215071-GOU-GA-DWG-00001-01 DIMENSIONS IN INCHES(mm) PIPE SLEEVE SUPPLIER DOC NO: E732H857-PUMP-D-0848 DISCHARGE ROUTING OF PIPELINES IS APPROXIMATE AND MAY DRAWN CHECKED APPROVED COPYRIGHT FOUNDATION REV 0 (BY CUSTOMER BMB 7/20/16 BMB 7/20/16 JCL 7/20/16 2016 VARY AFTER ASSEMBLY DRAWING REV STEAM CONDENSATE PUMP - Engineered General WASHER (SHIM) REFER TO MECHANICAL SEAL DRAWING FOR C1-732H857 0 Arrangement Drawing-Simple HEX NUT (BY GOULDS) GLAND DETAIL REV DESCRIPTION SHEET 1 OF</p>

Mais conteúdos dessa disciplina