Logo Passei Direto
Buscar
Material
páginas com resultados encontrados.
páginas com resultados encontrados.
left-side-bubbles-backgroundright-side-bubbles-background

Crie sua conta grátis para liberar esse material. 🤩

Já tem uma conta?

Ao continuar, você aceita os Termos de Uso e Política de Privacidade

Prévia do material em texto

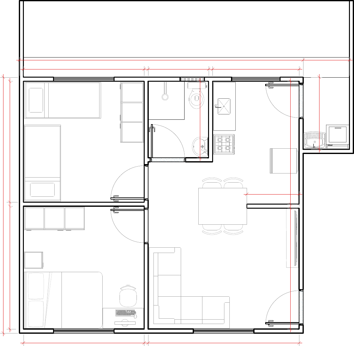
PM1
PM1
PM1
PF-1
AP
Tº
 00
1
A=
47
,03
m²
Mu
ro
 h=
2.2
0m
PF-2
Quarto
A=9.15m²
CHWC
A=2.85m²
Cozinha
A=6.98m²
Estar/Jantar
A=12.75m²
Área Privativa
A=variável
Área Serviço
A=2.06m²
Quarto
A=9.00m²
3.00 1.50 2.15
3.0
5
3.0
0
3.00 3.75
3.0
5
3.0
0
1.9
0
1.30
7.05
6.3
5
1.15
1.7
9
ESCALA : 1 / 50
PLANTA BAIXA - PAVIMENTO TIPO
	Sheets and Views
	Model

Mais conteúdos dessa disciplina