Logo Passei Direto
Buscar
Material
páginas com resultados encontrados.
páginas com resultados encontrados.
left-side-bubbles-backgroundright-side-bubbles-background

Crie sua conta grátis para liberar esse material. 🤩

Já tem uma conta?

Ao continuar, você aceita os Termos de Uso e Política de Privacidade

left-side-bubbles-backgroundright-side-bubbles-background

Crie sua conta grátis para liberar esse material. 🤩

Já tem uma conta?

Ao continuar, você aceita os Termos de Uso e Política de Privacidade

left-side-bubbles-backgroundright-side-bubbles-background

Crie sua conta grátis para liberar esse material. 🤩

Já tem uma conta?

Ao continuar, você aceita os Termos de Uso e Política de Privacidade

left-side-bubbles-backgroundright-side-bubbles-background

Crie sua conta grátis para liberar esse material. 🤩

Já tem uma conta?

Ao continuar, você aceita os Termos de Uso e Política de Privacidade

left-side-bubbles-backgroundright-side-bubbles-background

Crie sua conta grátis para liberar esse material. 🤩

Já tem uma conta?

Ao continuar, você aceita os Termos de Uso e Política de Privacidade

Prévia do material em texto

CENTRO FEDERAL DE EDUCAÇÃO TECNOLÓGICA DE MINAS GERAIS 
CAMPUS X – UNIDADE CURVELO | CEFET – MG 
 
 Solicitações Normais - CONCRETO ARMADO I 
 
CURSO DE ENGENHARIA CIVIL – 22/06/2021 
PROFESSOR: THIAGO BOMJARDIM PORTO 
Aluno(a): _________________________________________________ Nota:_________ 
 
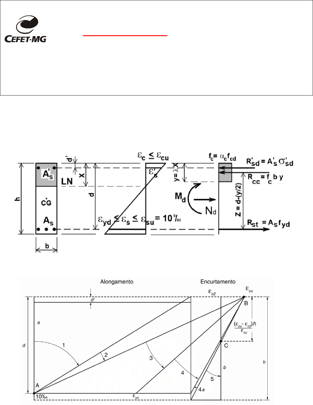
1. Para a seção apresentada, calcular o par de valores M e N tal que no Estado Limite Último (ELU) o diagrama 
de deformação coincida com o limite entre os domínios 3 e 4. Dados: fck =20 MPa; Aço CA 50; 
fyd=43,48kN/cm2; As=3,69 cm2; A’s=2,46cm2; h=50cm; d’=5cm; d=45cm; b=20cm; Eaço=210GPa. 
 
 
 
 
 
 
 
 
 
 
 
SOLUÇÃO 
1) 
Dados do Exercício: 
fck = 2,0 kN/cm
2 = 20 MPa 
h = 50 cm 
d = 45 cm 
d’ = 5 cm (assumido) 
Aço CA 50 
fy = 50 kN/cm
2=500MPa 
γs = 1,15 
fyd = 43,48 kN/cm
2 
c=cu=3,5%0 
c = 0,35% 
𝜀𝑦𝑑
′ =0,207 % 
Eaço=21000 kN/cm
2 
RESPOSTA: 
’s=0,288 % 
 
 
Diagrama de deformação ao longo da seção transversal: 
 
 Fibra mais comprimida (face superior) 
 x = Profundidade da Linha Neutra (LN) 
 fyd =Tensão de escoamento de cálculo/projeto = 43,48 kN/cm2 
 Eaço = Módulo de Elasticidade do aço = 210GPa = 210000MPa=21000kN/cm2 
Por semelhança de triângulos, tem-se: 
 
𝑥
ℇ𝑐
=
𝑑 − 𝑥
ℇ𝑠
 
Mas, 
d = 45 cm 
s = yd 
Assim, tem-se: 
𝑥
ℇ𝑐
=
45 − 𝑥
ℇ𝑦𝑑
 
Pela Lei de Hooke, tem-se: 
𝑓𝑦𝑑 = 𝐸𝑎ç𝑜 × 𝜀𝑦𝑑 (𝐷𝑒𝑓𝑖𝑛𝑖çã𝑜 𝑑𝑎 𝑅𝑒𝑠𝑖𝑠𝑡ê𝑛𝑐𝑖𝑎 𝑑𝑜𝑠 𝑀𝑎𝑡𝑒𝑟𝑖𝑎𝑠) 
Ou ainda, 
𝜀𝑦𝑑 =
𝑓𝑦𝑑
𝐸𝑎ç𝑜
=
43,48
21000
 
𝜀𝑦𝑑 = 2,07 × 10
−3 = 0,207% 
Assim: 
𝑥
0,35
=
45 − 𝑥
0,207
 
0,207𝑥 = (45 − 𝑥)0,35 
0,207𝑥 = (15,75 − 0,35𝑥) 
0,207𝑥 + 0,35𝑥 = 15,75 
0,557𝑥 = 15,75 
𝑥 =
15,75
0,557
= 28,276𝑐𝑚 → 𝑃𝑜𝑠𝑖çã𝑜 𝑑𝑎 𝐿𝑖𝑛ℎ𝑎 𝑁𝑒𝑢𝑡𝑟𝑎 (𝐿𝑁) 
 
Cálculo da deformação no aço comprimido (A’s): 
 
Por semelhança de triângulos, tem-se: 
 
𝜀𝑠
′
𝑥 − 𝑑′
=
ℇ𝑐
𝑥
 
Mas, 
c = 0,35% 
d' = 5 cm (assumido) 
x = 28,276 cm 
Assim, tem-se: 
𝜀𝑠
′
28,276 − 5
=
0,35
28,276
 
Assim: 
28,276𝜀𝑠
′ = 0,35 × 23,276 
𝜀𝑠
′ =
0,35 × 23,276
28,276
 
𝜀𝑠
′ = 0,288% > 𝜀𝑦𝑑
′ =0,207% (Lei de Hooke – Dado do aço)  O aço comprimido escoou 
 
CONCLUSÃO PARCIAL: 
Como a deformação no aço comprimento (’s=0,288%) está no trecho constante do gráfico (entre 0,207% e 0,35%) 
a tensão f’yd=fyd=43,48 kN/cm2 (compressão). 
 
 
 
ESQUEMA DAS RESULTANTES NA SEÇÃO TRANSVERSAL ANALISADA: 
 
Sabe-se: 
 A = Ponto localizado no centro geométrico da viga 
 y=0,8x = 0,8 X 28,276 = 22,62 cm 
 Rsc = R’sd = Resultante de compressão no aço 
 Rst = Resultante de tração no aço 
 Rcc = Resultante de compressão no concreto 
𝑓𝑐 = 0,85𝑓𝑐𝑑=0,85𝑓𝑐𝑘 (Definição da NBR 6118:2014) 
𝑓𝑐 =
0,85
𝛾𝑐
𝑓𝑐𝑘 (Definição da NBR 6118:2014) 
𝑓𝑐 =
0,85
1,4
2 = 1,21
𝑘𝑁
𝑐𝑚2
 
𝑅𝑠𝑐 = A𝑆
′ × 𝑓𝑦𝑑
′ = 2,46 × 43,48 ≈ 107𝑘𝑁 
𝑅𝑠𝑡 = A𝑠 × 𝑓𝑦𝑑 = 3,69 × 43,48 ≈ 160,4𝑘𝑁 
Definição clássica de tensão: 
𝑇𝑒𝑛𝑠ã𝑜 =
𝐹𝑜𝑟ç𝑎
Á𝑟𝑒𝑎
(𝐷𝑒𝑓𝑖𝑛𝑖çã𝑜 𝑑𝑎 𝑅𝑒𝑠𝑖𝑠𝑡ê𝑛𝑐𝑖𝑎 𝑑𝑜𝑠 𝑀𝑎𝑡𝑒𝑟𝑖𝑎𝑠) 
𝑓𝑐 =
𝑅𝑐𝑐
𝐴𝑐
 
𝐴𝑐 = 𝑏𝑦 
𝑅𝑐𝑐 = 𝐴𝑐 × 𝑓𝑐 = 𝑏𝑦𝑓𝑐 = 20 × 22,62 × 1,214 ≈ 549,3𝑘𝑁 
 
 Equilíbrio do sistema 
EQUAÇÕES UNIVERSAIS DO EQUILÍBRIO 2D 
 
∑ 𝐻𝑥 = 0 
𝑁𝑑 + 𝑅𝑠𝑡 = 𝑅𝑐𝑐 + 𝑅𝑠𝑐 
𝑁𝑑 + 160,4 = 549,3 + 107 
𝑁𝑑 = 495,9𝑘𝑁 
Mas, 
𝑁𝑑 = 𝛾𝑓 ∙ 𝑁 
Logo, 
𝑁 =
𝑁𝑑
𝛾𝑓
 
Assim, 
𝑵 =
𝟒𝟗𝟓, 𝟗
𝟏, 𝟒
= 𝟑𝟓𝟒, 𝟐𝟏𝒌𝑵 → (𝒄. 𝒒. 𝒅. ) 
 
 
∑ 𝑀𝐴 = 0 
Definição dos braços de alavanca: 
 
𝑀𝑑 = 𝑅𝑐𝑐 (25 −
22,62
2
) + 𝑅𝑠𝑐(25 − 5) + 𝑅𝑠𝑡(25 − 5) 
𝑀𝑑 = 549,3(25 − 11,312) + 107(25 − 5) + 160,4(25 − 5) 
𝑀𝑑 = 549,3(13,688) + 107(20) + 160,4(20) 
𝑀𝑑 = 12867𝑘𝑁. 𝑐𝑚 
Mas, 
𝑀𝑑 = 𝛾𝑓 ∙ 𝑀 
Logo, 
𝑀 =
𝑀𝑑
𝛾𝑓
 
Assim, 
𝑴 =
𝟏𝟐𝟖𝟔𝟕
𝟏, 𝟒
= 𝟗𝟏𝟗𝟏𝒌𝑵. 𝒄𝒎 = 𝟗𝟏, 𝟗𝟏𝒌𝑵. 𝒎 → (𝒄. 𝒒. 𝒅. )

Mais conteúdos dessa disciplina