Logo Passei Direto
Buscar
Material

Prévia do material em texto

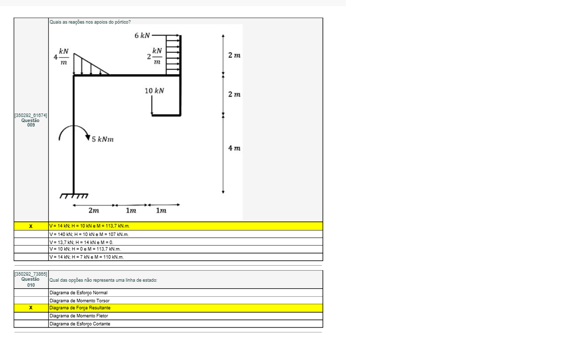
Quais as reações nos apoios do portico? 6 kN kN kN 4 2 2 m m m 10 kN 2m 61674] Questão 009 5 kNm 4 m 2m 1m 1m V= 14 kN: H = 10 kN e M = 113.7 kN m. V= 140 kN: H = 10 kN e M 107 kN.m V kN; H 14 kN M V = 10 kN: H 0 e M = kN.m. V 14 kN: H = 7 kN e M = 110 73865] Questão Qual das opções não representa uma linha de estado: 010 Diagrama de Esforço Normal Diagrama de Momento Torsor Diagrama de Força Resultante Diagrama de Momento Fletor Diagrama de Esforço Cortante

Mais conteúdos dessa disciplina