Logo Passei Direto
Buscar
Material
páginas com resultados encontrados.
páginas com resultados encontrados.
left-side-bubbles-backgroundright-side-bubbles-background

Experimente o Premium!star struck emoji

Acesse conteúdos dessa e de diversas outras disciplinas.

Libere conteúdos
sem pagar

Ajude estudantes e ganhe conteúdos liberados!

Prévia do material em texto

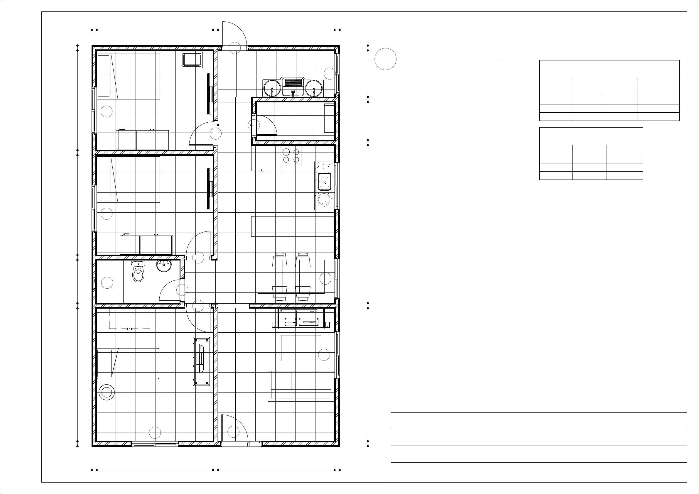
Tectonic Copyright 2007
0,15 3,50 0,15 3,50 0,15
0,
15
4,
00
0,
15
1,3
0
0,
15
3,
00
0,
15
3,
00
0,
15
1,00
A=11 m²
COZINHA
0,15 3,50 0,15 3,50 0,15
A=14 m²
QUARTO 1
A=3 m²
BANHEIRO
A=11 m²
QUARTO 2
A=11 m²
QUARTO 3
A=14 m²
SALA DE ESTAR
A=7 m²
SALA DE JANTAR
A=3 m²
DESPENSA
A=5 m²
LAVANDERIA
P01
P03
P02
P02
P02
J01
J01
J01
J01
J01
P02
P03
B01 J02
J02
0,
15
1,4
0
0,
15
1,1
5
0,
15
4,
75
0,
15
4,
00
0,
15
LOCAL:
ASSUNTO:
PROJETO:
ESCALA:
FOLHA:AUTOR DO PROJETO: DESENHO: DATA:
REV.
1 : 50
Planta Baixa/Esquadrias
JV engenharia 01JV engenharia 20/06/2021
1 : 50
PLANTA BAIXA
1
JANELAS
CÓDIGO LARGURA ALTURA
Altura do
peitoril
B01 0,40 0,40 1,70
J01 1,40 1,00 1,10
J02 1,20 1,00 1,10
PORTAS
CÓDIGO LARGURA ALTURA
P01 1,20 2,10
P02 0,80 2,10
P03 0,70 2,10

Mais conteúdos dessa disciplina