Logo Passei Direto
Buscar
Material
páginas com resultados encontrados.
páginas com resultados encontrados.
left-side-bubbles-backgroundright-side-bubbles-background

Crie sua conta grátis para liberar esse material. 🤩

Já tem uma conta?

Ao continuar, você aceita os Termos de Uso e Política de Privacidade

Prévia do material em texto

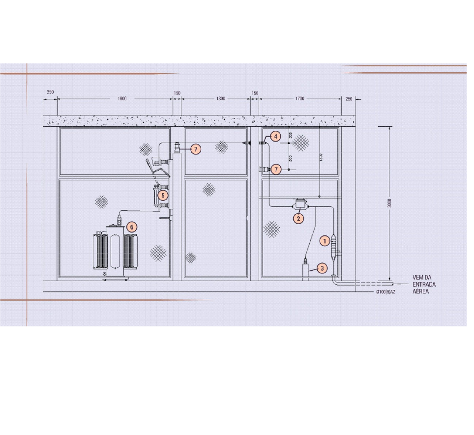
Para este Desafio, considere que seu superior lhe enviou o desenho da subestação consumidora que será construída na empresa. Ele solicitou que você criasse a lista dos materiais destacados no projeto.
Observe, a seguir, o projeto enviado para análise.
Você, de posse do desenho, deve identificar os equipamentos numerados e criar uma lista com os nomes para o setor de compras da empresa.
Resposta:
1- Mufla unipolar interna: 15kv
2-Transformador de corrente:15/5 A
3-Transformador de potencial:70:1
4-Bucha de passagem,uso interno:15kv
5-Chave seccionadora de comando simultâneo:15kv-200A
6-Transformador trifásico óleo 225kva-13,8/0,22-0,127kv.
7-Isolador de pedestal:15kv,uso interno

Mais conteúdos dessa disciplina