Logo Passei Direto
Buscar
Material
páginas com resultados encontrados.
páginas com resultados encontrados.
left-side-bubbles-backgroundright-side-bubbles-background

Crie sua conta grátis para liberar esse material. 🤩

Já tem uma conta?

Ao continuar, você aceita os Termos de Uso e Política de Privacidade

Prévia do material em texto

1
2
,2
5
12,2512,25
4,083 4,083 4,083 4,083 4,083 4,083
1
,4
6
2
1
,1
6
1
,1
6
1
,1
6
1
,1
8
3
1
,1
8
7
1
,1
6
1
,1
6
1
,1
6
1
,4
5
8
1,437 1,16 1,16 1,16 1,183 1,187 1,16 1,16 1,16 1,483
4
,0
8
3
4
,0
8
3
4
,0
8
3
25,06
1
2
,2
5
1
2
,3
9
3
2
5
,2
0
3
10
%
10
%
10
%
10
%
10%10%
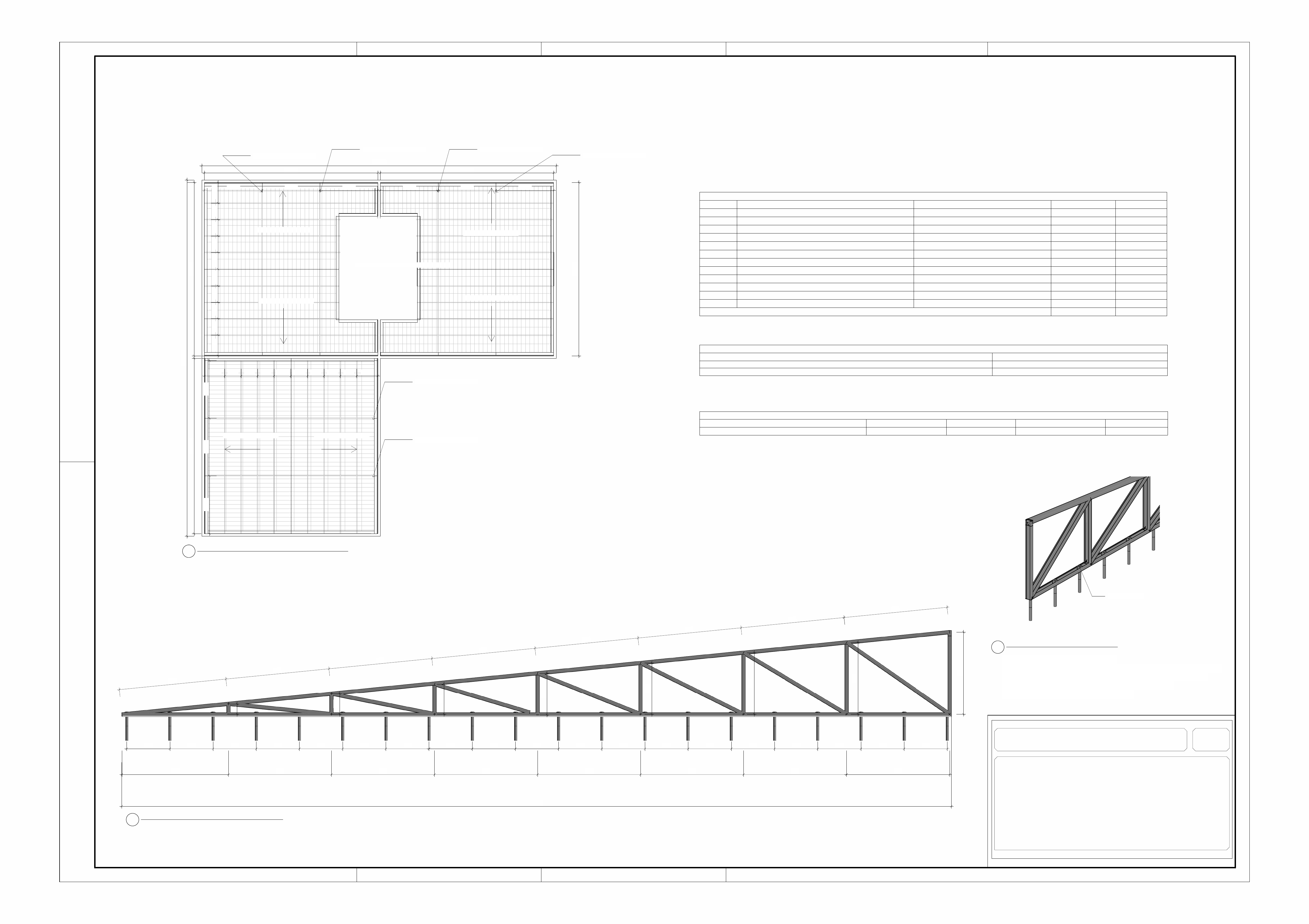
Telha zincada trapezoidal
LAJE TÉCNICA PARA CONDENSADORAS
Telha zincada trapezoidal
Telha zincada trapezoidal
Telha zincada trapezoidal Telha zincada trapezoidal
Telha zincada trapezoidal
Tesoura Metálica em perfil U
Tesoura Metálica em perfil U
Tesoura Metálica em perfil U
Tesoura Metálica em perfil U
Tesoura Metálica em perfil U
Tesoura Metálica em perfil U
PARABOLT 3/8''
728728728728728728753
732
732
732
732
731
732
757
Perfil Estrutural Metálico 75x40x2.65
5,864
5
0
8
4
3
5
3
6
3
2
9
5
1
4
5
7
3
732
5
8
728
2
1
3
305 305305305305305305305305305305305305305305305305305305
DATA : MAIO/2024
INDICADASESCALA :
R. C, S/N - CENTRO POLÍTICO ADMINISTRATIVO
CUIABÁ - MT
ESTADO DE MATO GROSSO
PROJETO PARA REFORMA DE TELHADO
LOCAL :
DESCRIÇÃO :
LAYOUT COBERTURA SECOM ÚNICA
FOLHA
 1 : 100
DETALHAMENTO PLANTA DE COBERTURA1
DETALHAMENTO TESOURA2
 1 : 10
VISTA FRONTAL TESOURA METÁLICA3
RUFO EM AÇO GALVANIZADO 84,23m
CALHA EM AÇO GALVANIZADA 78,90m
DESCRIÇÃO COMPRIMENTO TOTAL
QUANTITATIVO CALHAS E RUFOS
PERFIL METÁLICO U ENRIJECIDO 75X40X2,65 12,25m 30 3,44kg/m 1.264,2KG
DESCRIÇÃO COMPRIMENTO QUANTIDADE PESO POR METRO PESO TOTAL
QUANTITATIVOS TERÇAS METÁLICAS
TOTAL 2.597,33KG
12 PERFIL METÁLICO U ENRIJECIDO 75X40X2,65 62,92m 3,44kg/m 216,44
11 PERFIL METÁLICO U ENRIJECIDO 75X40X2,65 62,92m 3,44kg/m 216,44
10 PERFIL METÁLICO U ENRIJECIDO 75X40X2,65 62,92m 3,44kg/m 216,44
9 PERFIL METÁLICO U ENRIJECIDO 75X40X2,65 62,92m 3,44kg/m 216,44
8 PERFIL METÁLICO U ENRIJECIDO 75X40X2,65 62,92m 3,44kg/m 216,44
7 PERFIL METÁLICO U ENRIJECIDO 75X40X2,65 62,92m 3,44kg/m 216,44
6 PERFIL METÁLICO U ENRIJECIDO 75X40X2,65 62,92m 3,44kg/m 216,44
5 PERFIL METÁLICO U ENRIJECIDO 75X40X2,65 62,92m 3,44kg/m 216,44
4 PERFIL METÁLICO U ENRIJECIDO 75X40X2,65 62,92m 3,44kg/m 216,44
3 PERFIL METÁLICO U ENRIJECIDO 75X40X2,65 62,92m 3,44kg/m 216,44
2 PERFIL METÁLICO U ENRIJECIDO 75X40X2,65 62,92m 3,44kg/m 216,44
1 PERFIL METÁLICO U ENRIJECIDO 75X40X2,65 62,92m 3,44kg/m 216,44
TESOURA DESCRIÇÃO COMPRIMENTO TOTAL POR TESOURA PESO POR METRO PESO TOTAL
QUANTITATIVO TESOURAS










Mais conteúdos dessa disciplina