Logo Passei Direto
Buscar
Material
páginas com resultados encontrados.
páginas com resultados encontrados.
left-side-bubbles-backgroundright-side-bubbles-background

Experimente o Premium!star struck emoji

Acesse conteúdos dessa e de diversas outras disciplinas.

Libere conteúdos
sem pagar

Ajude estudantes e ganhe conteúdos liberados!

Prévia do material em texto

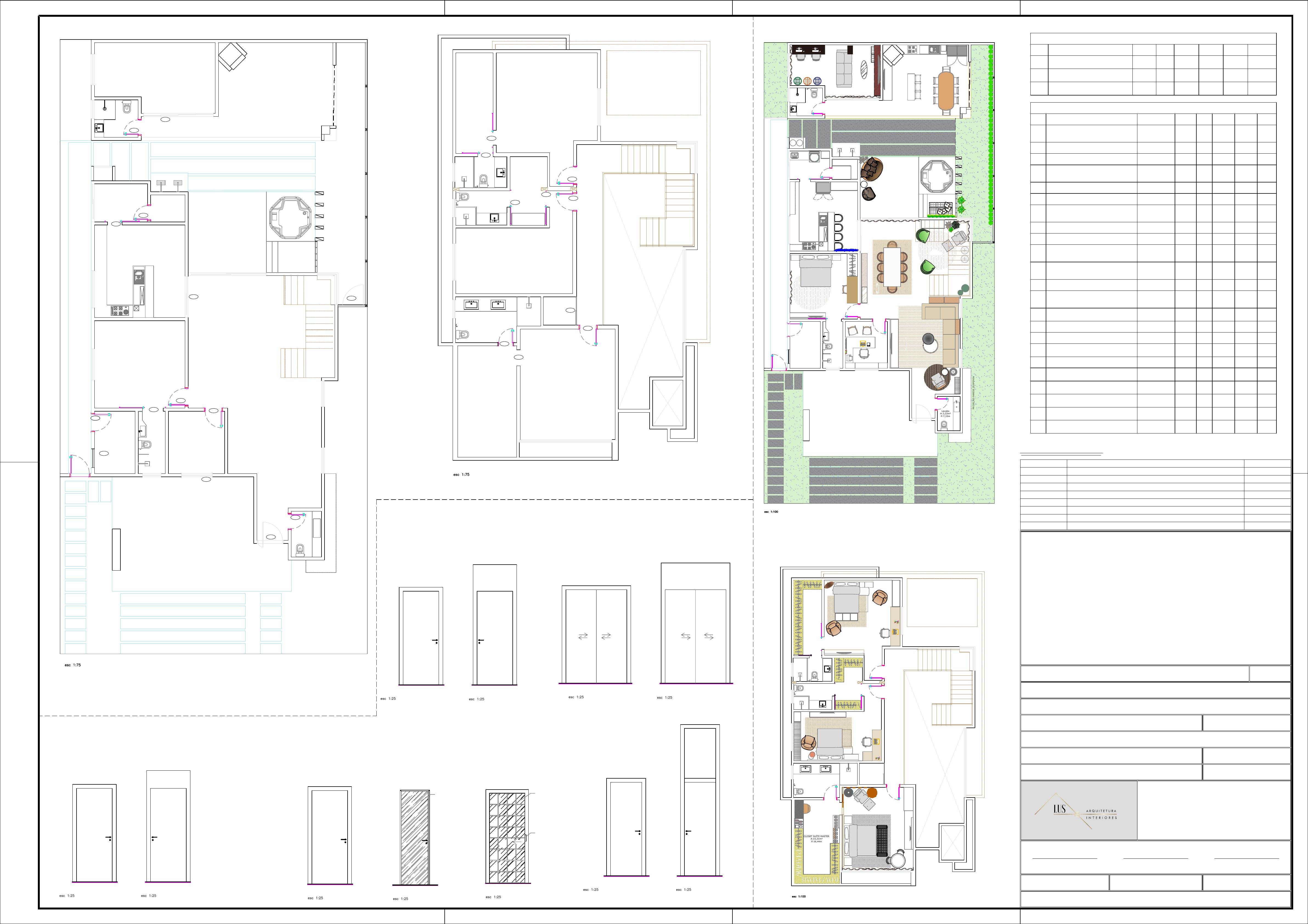
PLANTA BAIXA SUPERIOR
SUÍTE 03
A:24,71m²
P:22,64m
CLOSET 03
A:8,77m²
P:13,33m
BHO 03
A:3,76m²
P:8,02m
SUÍTE 02
A:19,85m²
P:21,20m
CLOSET 02
A:5,88m²
P:10,18m
BHO 2
A:4,11m²
P:8,27m
CLOSET SUÍTE MASTER
A:15,31m²
P:16,44m
BHO SUÍTE MASTER
A:8,16m²
P:12,64m
 SUÍTE MASTER
A:24,32m²
P:19,78m
 ROUPARIA
A:2,20m²
P:5,95m
 CIRCULAÇÃO
A:12,57m²
P:21,73m
P101
P102
P103
P104
P105
P106
P107
P108
P110
P109
Área gourmet
A:29,90m²
P:29,99m
Lavanderia
A:4,69m²
P:8,79m
Despensa
A:2,16m²
P:5,92m
Cozinha
A:19,47m²
P:17,65
Sala estar
Suíte hospedes
A:18,40m²
P:17,16m
Escritório
A:8,01m²
P:11,34m
Bho hospedes
A:3,92m²
P:8,63m
Depósito
A:6,04m²
P:10,03
Garagem
A:40,97m²
P:29,12m
Lavabo
A:3,22m²
P:7,33m
Sala jantar
Bho externo
A:3,80m²
P:7,82m
A:55,48m²
P:40,79m
Gramado
Estendal
PLANTA BAIXA TÉRREO
PR
O
JE
Ç
Ã
O
 P
A
R
ED
E 
S
U
S
PE
N
S
A
Varanda
A:14,68m²
P:15,32m
Deck
A:9,19m²
P:12,51m
P111
P112 P113
P114
P115
P116
P117
P118
P120
P121P121
J101
J102
01 02 03
04
GramadoGramado
Sala cinema/gamer
A:18,06m²
P:18,47m
P122
P123
Área gourmet
A:29,90m²
P:29,99m
Despensa
Cozinha
A:19,47m²
P:17,65
Sala estar
Suíte hospedes
A:18,40m²
P:17,16m
Escritório
A:8,01m²
P:11,34m
Bho hospedes
A:3,92m²
P:8,63m
Depósito
A:6,04m²
P:10,03
Garagem
A:40,97m²
P:29,12m
Lavabo
A:3,22m²
P:7,33m
Sala jantar
Bho externo
A:3,80m²
P:7,82m
A:55,48m²
P:40,79m
Gramado
LAYOUT TÉRREO
PR
O
JE
Ç
Ã
O
 P
A
R
ED
E 
S
U
S
PE
N
S
A
Varanda
A:14,68m²
P:15,32m
Deck
A:9,19m²
P:12,51m
GramadoGramado
Estendal
Sala cinema/gamer
A:18,06m²
P:18,47m
Lavanderia
LAYOUT PAV. SUPERIOR
SUÍTE 03
A:24,71m²
P:22,64m
CLOSET 03
A:8,77m²
P:13,33m
BHO 03
A:3,76m²
P:8,02m
SUÍTE 02
A:19,85m²
P:21,20m
CLOSET 02
A:5,88m²
P:10,18m
BHO 2
A:4,11m²
P:8,27m
CLOSET SUÍTE MASTER
A:15,31m²
P:16,44m
BHO SUÍTE MASTER
A:8,16m²
P:12,64m
 SUÍTE MASTER
A:24,32m²
P:19,78m
 ROUPARIA
A:2,20m²
P:5,95m
 CIRCULAÇÃO
A:12,57m²
P:21,73m
Vista frontal 05 Vista frontal 06
VIDRO
Vista frontal 07
VIDRO
PUXADOR
Vista frontal interna 02 Vista frontal externa 02Vista frontal interna 01 Vista frontal externa 01
Vista frontal interna 03 Vista frontal externa 03
Vista frontal interna 04 Vista frontal externa 04
TABELA DE ESQUADRIAS - JANELAS
CÓD. ESPECIFICAÇÃO TIPO FOLHAS LARG. (m) ALT. (m) PEIT .(m) AMBIENETE
J101 JANELA EM VIDRO 6mm INCOLOR E PERFIL EM
ALIMÍNIO ANODIZADO NATURAL CORRER 02 1,50 1,80 0,50 ESCRITÓRIO
J102 JANELA EM VIDRO 6mm INCOLOR E PERFIL EM
ALIMÍNIO ANODIZADO NATURAL
CORRER 01 0,90 0,50 1,90 DEPÓSITO
J103
JANELA EM VIDRO 6mm INCOLOR E PERFIL EM
ALIMÍNIO ANODIZADO NATURAL CORRER 01 0,90 0,50 1,90 BANHEIRO
SUITE 02
TABELA DE ESQUADRIAS - PORTAS
CÓD. ESPECIFICAÇÃO AMBIENTE TIPO FOLHAS LARG. (m)
FOLHA
ALT. (m)
FOLHA QUANT.
P101
PORTA DE COMPENSADO NAVAL ESTRUTURADO
COM MADEIRA- ACABAMENTO LISO PINTURA
LAQUEADA BRANCA - ALIZAR LATERAL DE 0,09CM
E ALIZAR SUPERIOR DE 0,60CM - VER VISTA 01
SUITE MASTER GIRO 01 0,80 2,10 01
P102 PORTA DE MÓVEL CLOSET SUITE
MASTER CORRER 01 0,85 2,10 01
P103 PORTA DE VIDRO 10MM PELICULA E ESPELHO
PRATA PELO LADO DO CLOSET
BANHEIRO SUITE
MASTER GIRO 01 0,80 2,10 01
P104
PORTA DE COMPENSADO NAVAL ESTRUTURADO
COM MADEIRA- ACABAMENTO LISO PINTURA
LAQUEADA BRANCA - ALIZAR LATERAL DE 0,09CM
E ALIZAR SUPERIOR DE 0,60CM - VER VISTA 01
SUITE 02 GIRO 01 0,80 2,10 01
P105 PORTA DE MÓVEL CLOSET SUITE 02 CORRER 01 0,85 2,10 01
P106 PORTA DE VIDRO 8MM PELICULA E ESPELHO
PRATA PELO LADO DO CLOSET BANHEIRO SUITE 02 CORRER 01 0,85 2,10 01
P107
PORTA DE COMPENSADO NAVAL ESTRUTURADO
COM MADEIRA- ACABAMENTO LISO PINTURA
LAQUEADA BRANCA - ALIZAR LATERAL DE 0,09CM
E ALIZAR SUPERIOR DE 0,60CM - VER VISTA 01
SUITE 03 GIRO 01 0,80 2,10 01
P108 PORTA DE MÓVEL CLOSET SUITE 03 CORRER 01 0,85 2,10 01
P109 PORTA DE VIDRO 8MM PELICULA E ESPELHO
PRATA PELO LADO DO CLOSET BANHEIRO SUITE 03 CORRER 01 0,85 2,10 01
P110
PORTA DE COMPENSADO NAVAL ESTRUTURADO
COM MADEIRA- ACABAMENTO LISO PINTURA
LAQUEADA BRANCA - ALIZAR LATERAL DE 0,09CM
E ALIZAR SUPERIOR DE 0,60CM - VER VISTA 02
ROUPARIA CORRER 02 1,37 2,10 01
P111
PORTA DE COMPENSADO NAVAL ESTRUTURADO
COM MADEIRA- ACABAMENTO LISO PINTURA
LAQUEADA BRANCA - ALIZAR LATEAL DE 0,09CM E
ALIZAR SUPERIOR 0,50CM - VER VISTA 03
SUITE HOSPEDE GIRO 01 0,80 2,10 01
P112 PORTA DE ESQUADRIA ESTRUTURADA COM
VIDRO 8MM E ESPELHO PRATA
BANHEIRO SUITE
HOSPEDE CORRER 01 1,05 2,10 01
P113
PORTA DE COMPENSADO NAVAL ESTRUTURADO
COM MADEIRA- ACABAMENTO LISO PINTURA
LAQUEADA BRANCA - ALIZAR LATEAL DE 0,09CM E
ALIZAR SUPERIOR 0,50CM - VER VISTA 03
ESCRITÓRIO GIRO 01 0,80 2,10 01
P114
PORTA DE MDF AMADEIRADO ESTRUTURADO COM
MADEIRA - ALIZAR LATERAL DE 0,09CM E ALIZAR
SUPERIOR DE 1,30M - VER VISTA 04
LAVABO GIRO 01 0,70 2,10 01
P115 PORTA DE MÓVEL COZINHA CORRER 01 1,98 2,60 01
P116 PORTA COM ESQUADRIA METÁLICA COR PRETA E
VIDRO CANELADO INCOLOR - VISTA 07
COZINHA ÁREA
SERVIÇO CORRER 01 0,75 2,10 01
P117 PORTA COM ESQUADRIA METÁLICA COR PRETA E
VIDRO INCOLOR - VISTA 06 DESPENSA GIRO 01 0,60 2,10 01
P118 PORTA COM ESQUADRIA METÁLICA ANODIZADO
PRETO E VIDRO 10MM INCOLOR
 SALA GAMER CORRER 04 3,37 2,50 01
P120
PORTA DE COMPENSADO NAVAL ESTRUTURADO
COM MADEIRA- ACABAMENTO LISO PINTURA
LAQUEADA BRANCA - ALIZAR DE 0,09CM - VISTA 05
BANHEIRO
EXTERNO GIRO 01 0,70 2,10 01
P121 PORTA DE VIDRO DEPÓSITO
(EXTERNO) GIRO 01 0,80 2,10 01
P122 PORTA DE VIDRO - ACESSO ÁREA GOURMET PORTA EXTERNA GIRO 01 1,00 1,60 01
P123
PORTA MADEIRA MACIÇA - DE ACORDO COM O
PROJETO ARQUITETÔNICO
ENTRADA
PRINCIPAL PIVOTANTE 01 1,20 2,30 01
P124 PORTA DE VIDRO EXTERNA ENTRADA
PRINCIPAL PIVOTANTE 01 1,20 2,30 01
*CONFERIR MEDIDAS IN LOCO
REGISTRO DE REVISÃO DE PROJETO:
DATA OBJETO DA REVISÃO REVISOR
OBRA:
ENDEREÇO DA OBRA:
PROPRIETÁRIO:
PROJETO:
PROJETO ARQUITETÔNICO:
CONTEÚDO DA PRANCHA:
PROJETO DE INTERIORES:
PRANCHA:
ÓRGÃOS PÚBLICOS:
DATA: DESENHO:ESCALA:
DIREITOS AUTORAIS (LDA) - LEI 9610 DE 19/ 02/ 1998. - ART. 7º - São obras intelectuais protegidas as criações de espírito, (...), tais como: X- Os projetos, esboços e obras plásticas concernentes a
geografia, engenharia, topografia, arquitetura, paisagismo, cenografia e ciência.
A reprodução ou execução no seu todo ou parte deste projeto, sem prévia autorização de seus autores, ficará sujeita às medidas legais cabíveis. A alteração deste projeto exime seu autor de quaisquer
responsabilidades posteriores.
PROJETO EXECUÇÃO PROPRIETÁRIO
REGISTRO PROFISSIONAL:
REGISTRO PROFISSIONAL:
CNPJ:
716.888.382-87
 
A1 02/07
LUCIANA MELO MAGRO
LUCIMARA MELO MAGRO
PLANTA BAIXA - LAYOUT - ESQUADRIA (TABELA E VISTAS)
FERNANDA MARQUES AGUIAR
CONDOMINIO ROYAL VILLE - LOTE 72 QUADRA K 
PROJETO DE INTERIORES RESIDENCIAL UNIFAMILIAR
ARQUITETÔNICO E DESIGN DE INTERIORES 
AGOSTO/2022 LUCIMARAINDICADA
ABD 25700
CAU/PA A180223-2
AutoCAD SHX Text
esc 1:75
AutoCAD SHX Text
esc 1:75
AutoCAD SHX Text
esc 1:100
AutoCAD SHX Text
esc 1:100
AutoCAD SHX Text
esc 1:25
AutoCAD SHX Text
esc 1:25
AutoCAD SHX Text
esc 1:25
AutoCAD SHX Text
esc 1:25
AutoCAD SHX Text
esc 1:25
AutoCAD SHX Text
esc 1:25
AutoCAD SHX Text
esc 1:25
AutoCAD SHX Text
esc 1:25
AutoCAD SHX Text
esc 1:25
AutoCAD SHX Text
esc 1:25
AutoCAD SHX Text
esc 1:25
	Sheets and Views
	A2

Mais conteúdos dessa disciplina