Logo Passei Direto
Buscar
Material
páginas com resultados encontrados.
páginas com resultados encontrados.
left-side-bubbles-backgroundright-side-bubbles-background

Crie sua conta grátis para liberar esse material. 🤩

Já tem uma conta?

Ao continuar, você aceita os Termos de Uso e Política de Privacidade

Prévia do material em texto

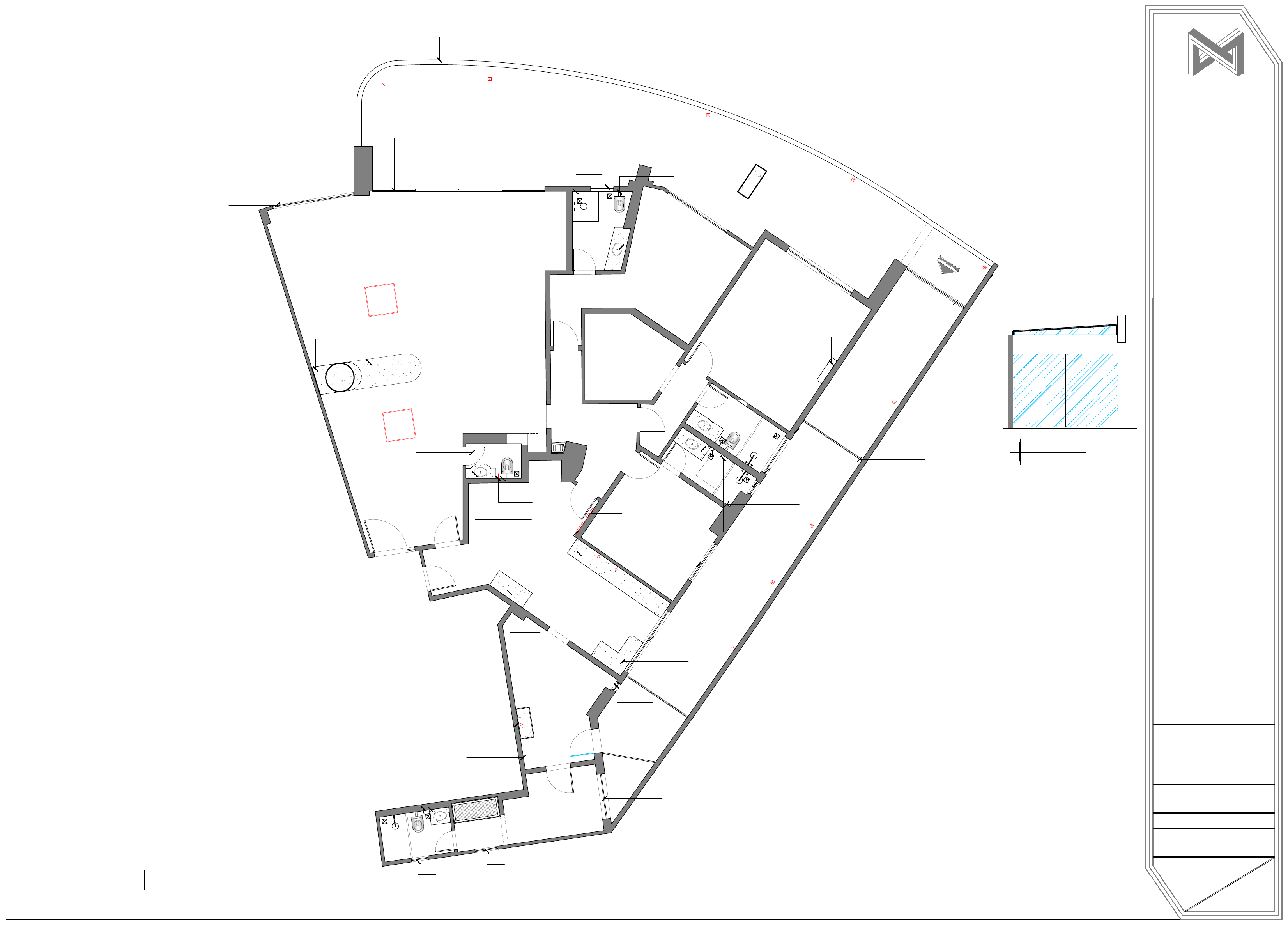
01
215.2
24,93m²
L
L
 MONICA DEMONER
01
AV. NOSSA SENHORA DOS NAVEGANTES, ED.: GLOBAL TOWER,
955 | CONJ. 817, ENSEADA DO SUÁ - VITÓRIA / ES
PHONE | (27) 99943-6807
E-MAIL | projetos@monicademoner.com.br
PLANTA DE LEVANTAMENTO
ESCALA 1/75
LEVANTAMENTO
QUADRO:
H= 47cm
P= 115cm
JANELA:
H= 135cm
P= 107,5cm
ESCALA:
DATA:
INDICADA
XX/XX/XXXX
ASSUNTO:
CONFERÊNCIA:
X
DATA:
MARÇO | 2021
DATA:DESENHO:
AMANDA CALMON 08/03/2021
PD=271cm
GESSO
COZINHA
BANCADA:
H= 93cm
S= 5cm
RB= 20cm
BANCADA:
H= 92cm
S= 5cm
RB= 20cm
JANELA:
H= 114cm
P= 127cm
BANCADA:
H= 92cm
S= 5cm
RB= 20cm
H
=
 
2
0
8
c
m
QUADRO:
H= 57cm
P= 115cm
VÃO:
H= 237,5cm
11,81m²
GESSO
AR
CONDIC.
QUARTO 02
PD=266cm
7,25m²
CIRC.
PD=CONFERIR
PONTO DE ÁGUA
H=110cm
11,00m²
GESSO
A/S
PD=271cm
H
=
 
2
0
8
,
5
c
m
AQUECEDOR DE
PASSAGEM -
LOCAL
JANELA:
H= 185cm
P= 57cm
JANELA:
H= 135cm
P= 107cm
76,20m²
SALA DE ESTAR E
JANTAR
PD=291,5cm (GESSO) + ALTO
PD=267cm (GESSO) + BAIXO
JANELA:
H= 242cm
P= 40cm
NIVEL:
+5cm
AR
CONDIC.
PD=241,5cm
BANCADA:
H= 123cm
S= 2cm
2 PRATELEIRAS:
H= 168cm
H= 214cm
S= 2cm
GESSO
MURETA: H= 42cm
G.C.: H=125cm
63,45m²
VARANDA
PD=283cm (PVC)
PD
=2
75
cm
VÃO:
H= 232cm
JANELA:
H= 75cm
P= 167cm
LAVABO
PAREDE:
H= 300cm
CLOSET
PD=265cm
GESSO
7,00m²
3,15m²
H
=
 
2
0
9
,
5
c
m
PD=250,5cm
CIRC.
8,56m²
QUARTO SERV.
GESSO
PD=269,5cm
2,00m²
GESSO
PD=267,5cm
REGISTRO:
H=180cm
R
BANCADA:
H=85cm
S= 5cm
RB= 10cm
4,40m²
R
BANHO 01
PD=266,5cm
GESSO
REGISTRO:
H=180cm
PD
=2
10
cm
JANELA:
H= 74cm
P= 163cm
BANCADA:
H= 88cm
S= 5cm
RB= 10cm
JANELA:
H= 75cm
P= 161cm
BANCADA:
H= 82cm
S= 5cm
RB=10cm
3,45m²
GESSO
BANHO 02
PD=264cm
4,42m²
GESSO
BANHO ST
PD=264cm
R
R
E
G
I
S
T
R
O
:
H
=
1
8
0
c
m
VÁLVULA:
H=105cm
VÁLVULA:
H=105cm
VÁLVULA:
H=105cm
42,00m²
A.EXT
BANCADA:
H= 84cm
S= 5cm
RB=10cm
JANELA:
H= 45cm
P= 198cm
R
REGISTRO:
H=180cm
JANELA:
H= 74cm
P= 168cm
3,26m²
BANHO SERV.
GESSO
PD=267,5cm
BANCADA:
H= 86cm
S= 2cm
RB= 10cm
R
REGISTRO:
H=182cm
16,00m²
GESSO
QUARTO 01
PD=262cm
17,60m²
GESSO
SUÍTE
PD=264cm
AR:
HTETO= 26cm
HAR= 30cm
PORTA:
H= 208cm
ATÉ A SOLEIRA
PAREDE:
H= 350cm
ATÉ O FINAL DO TELHADO
VISTA A
VISTA A
ESCALA 1/75
PROPRIETÁRIO
NATÁLIA NASSIF
CAU-ES : A72812-8
ARQUITETURA DE INTERIORES
ARQUITETA MONICA DEMONER
AUTORA DO PROJETO
AV. ANTÔNIO GIL VELOSO, EDIFÍCIO
RESIDENCIAL PRIMO - ANDAR SL - PRAIA DA
COSTA, VILA VELHA - ES
ENDEREÇO:
	Sheets and Views
	Model

Mais conteúdos dessa disciplina