Logo Passei Direto
Buscar
Material
páginas com resultados encontrados.
páginas com resultados encontrados.
left-side-bubbles-backgroundright-side-bubbles-background

Crie sua conta grátis para liberar esse material. 🤩

Já tem uma conta?

Ao continuar, você aceita os Termos de Uso e Política de Privacidade

left-side-bubbles-backgroundright-side-bubbles-background

Crie sua conta grátis para liberar esse material. 🤩

Já tem uma conta?

Ao continuar, você aceita os Termos de Uso e Política de Privacidade

Prévia do material em texto

As ações causadas pelo vento apresentam grande importância no dimensionamento de estruturas 
metálicas, especialmente em edifícios de elevada esbeltez. A norma ABNT NBR 6123:1988 - Forças 
devidas ao vento em edifícios - estabelece as disposições para determinação das forças devidas ao 
vento. 
ASSOCIAÇÃO BRASILEIRA DE NORMAS TÉCNICAS. NBR 6123:forças devidas ao vento em 
edificações. Rio de Janeiro: ABNT, 1988. 
CENTRO BRASILEIRO DA CONSTRUÇÃO EM AÇO (CBCA). Galpões para usos gerais. 4. ed. Rio 
de Janeiro: IABr/CBCA, 2018. 
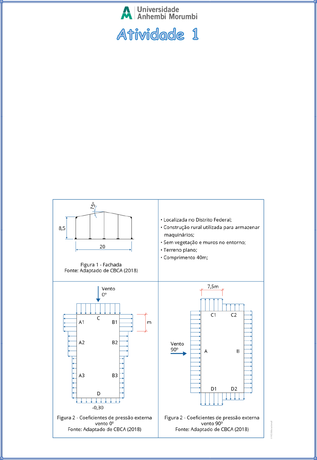
Para o galpão metálico, cujas características estão descritas abaixo, determine os seguintes 
parâmetros relacionados ao vento, detalhando as considerações feitas: 
• velocidade característica do vento; 
• pressão do vento; 
• coeficientes de pressão externo nas paredes para ventos incidentes a 0º m, C, A1, A2, 
A3, B1, B2, B3 e D; 
• coeficientes de pressão externo nas paredes para ventos incidentes a 90º n, C1, C2, A, B, 
D1 e D2. 
 
 
Resposta 
 
Velocidade característica do vento: A velocidade característica do vento no Distrito Federal 
varia de acordo com a região exata e a altura acima do solo. No entanto, para uma estimativa geral, a 
velocidade característica do vento pode ser assumida em cerca de 30 m/s (metros por segundo) com 
base em informações médias. 
 
Pressão do vento: A pressão do vento é calculada a partir da velocidade característica do vento 
e é expressa em kN/m² (quilômetros por segundo ao quadrado). Usando a fórmula da pressão dinâmica 
do vento, P = 0,5 * ρ * V^2, onde ρ é a densidade do ar (aproximadamente 1,225 kg/m³), e V é a 
velocidade característica do vento, obtemos: 
 
P = 0,5 * 1,225 * 30 ^ 2 = 551,25 Pa (Pascal) 
 
Convertendo para kN/m², obtemos 0,055125 kN/m². Esse é o valor da pressão do vento a ser 
considerado. 
 
Coeficientes de pressão externa nas paredes (0°): Os coeficientes de pressão externa nas 
paredes dependendo da forma da estrutura. Para um galpão metálico, você pode usar coeficientes 
típicos para edifícios retangulares. Para ventos incidentes a 0° (diretamente na parede), os coeficientes 
de pressão típicos incluem: 
C: 0,6 
A1: -0,7 
A2: -0,5 
A3: -0,3 
B1: 0,7 
B2: 0,5 
B3: 0,3 
D: 0,0 
Coeficientes de pressão externo nas paredes (90°): Para ventos incidentes a 90° (vento lateral), 
os coeficientes de pressão típicos incluem: 
C1: -0,7 
C2: 0,7 
A: -0,6 
B: 0,6 
D1: 0,0 
D2: 0,0

Mais conteúdos dessa disciplina