Logo Passei Direto
Buscar
Material
páginas com resultados encontrados.
páginas com resultados encontrados.
left-side-bubbles-backgroundright-side-bubbles-background

Crie sua conta grátis para liberar esse material. 🤩

Já tem uma conta?

Ao continuar, você aceita os Termos de Uso e Política de Privacidade

Prévia do material em texto

03
CORTE
AA
03
CORTE
AA
03
CORTE
BB
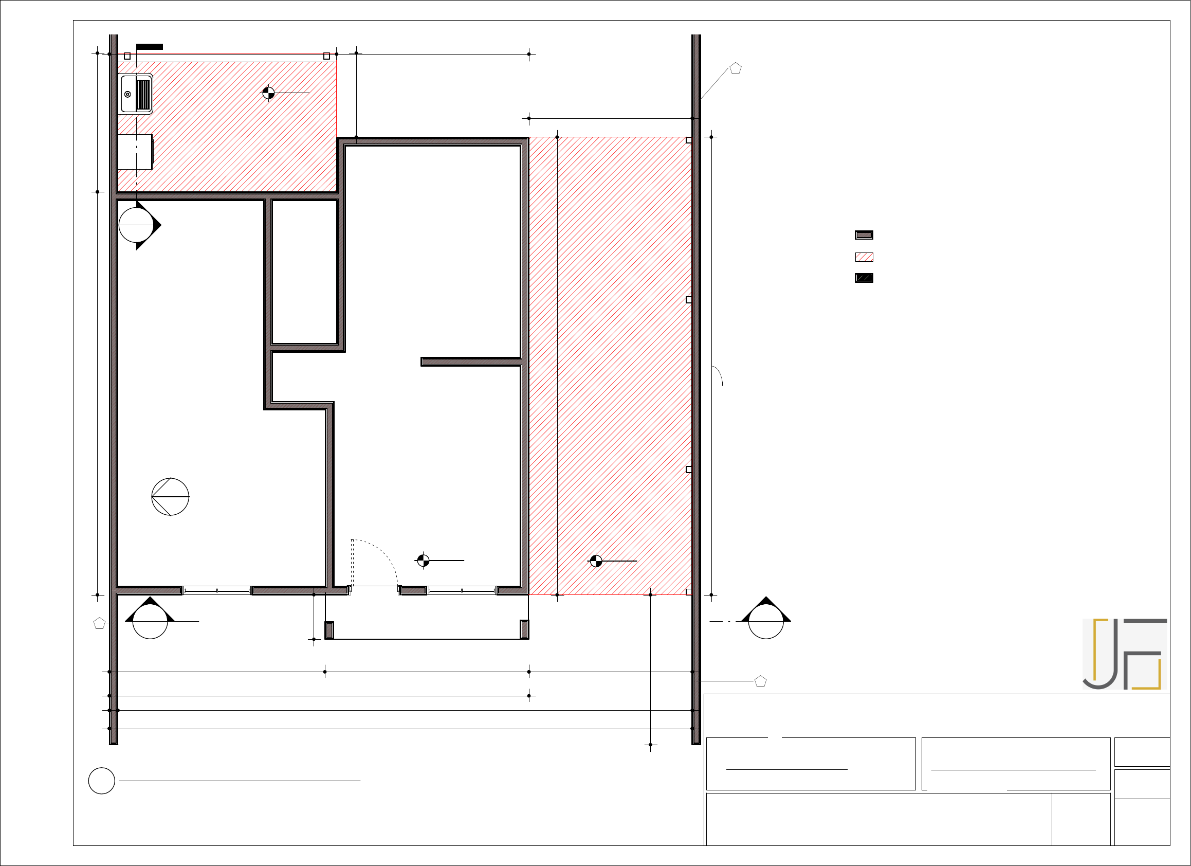
área 
regular 54,68
á
re
a 
á
 r
e
gu
la
ri
za
r
2
1
,9
8
 m
2
área á
regularizar 
9,28
Padrão normal R1-N
Área Regular : 54,68m2
Á Regularizar : 21,98m2
À Regularizar : 9,28 m2
À Construir: 40.09 m2
Área total: 129,03 m2
muro
muro
muro
meia parede
0.15 9.85
10.00
3.70 3.50
7.20
2.80
7.
85
2.80
3.90 3.30
2.
38
N
0.
76
1.
44
6.
91 7
.8
5
0.20 0.15
0.15
2.
57
PROPRIETÁRIO:
LOCAL:
RESPONSÁVEL TÉCNICO:
DATA:
ESCALA:
/
PRANCHA:
KELEN HENRIQUES TEIXEIRA
-CPF:015.240.770-70
Rua Avelino Lemos da Silveira-N:20- Vila Pinheiro-Setor:09- Quadra :512-Lote:18-Caçapava do Sul
/RS
Jaqueline dos Santos Fonseca
ÁREA
129,03 m2
MAIO/2023
REGULARIZAÇÃO DE EDIFICAÇÃO NÃO CADASTRADA
Indicada
02 04
PLANTA BAIXA
1 : 50
PLANTA BAIXA TÉRREO REGULARIZAÇÃO1