Logo Passei Direto
Buscar

Ferramentas de estudo

Questões resolvidas

As primeiras noções geométricas surgiram quando o homem teve a necessidade de definir “medidas”, isto é, a comparar as distâncias entre vários pontos e entre as formas e dimensões dos corpos que o rodeavam. Sejam as afirmativas abaixo sobre noções primitivas.
Marque a opção com as afirmativas corretas:
I. As dimensões de um sólido geométrico são definidas pela largura, comprimento e altura.
II. Por dois pontos distintos só passa uma única reta.
III. Quando um ponto muda constantemente de posição no espaço, percorrendo-o em várias direções, ele dará origem a uma linha poligonal.
IV. O plano é o conjunto das posições de uma reta que se desloca em trajetória perpendicular a si mesma.
V. O espaço é o conjunto de todos os pontos.
( ) a) I e III
( ) b) II, III e V
( ) c) II, III e IV
( ) d) I, II e III
( ) e) I, II e V

Sejam as afirmativas abaixo sobre geometria plana.
Marque a opção com as afirmativas corretas:
I. Quando um ponto muda constantemente de posição no espaço, percorrendo-o em várias direções, ele dará origem a uma linha curva.
II. Ponto médio é o ponto que divide o segmento em dois segmentos da mesma medida.
III. Por um ponto fora de uma reta dada só se pode traçar apenas uma reta paralela a ela.
IV. Segmentos de reta que possuem a mesma medida são chamados de bissetrizes.
V. O ponto pode ser considerado como a interseção de duas linhas e é representado por letras minúscula do alfabeto.
( ) a) II, III e IV
( ) b) I, III e V
( ) c) I, II e III
( ) d) I e V
( ) e) I, II e IV

Em desenhos técnicos devem ser utilizados formatos de papel da série A, conforme a NBR 16752, sendo o formato A0 o máximo, e A4 o mínimo. A figura abaixo representa esquematicamente uma folha de papel A1. Nessa folha, os valores de a, b e m (margem direita) são, respectivamente:
Marque com um X a afirmativa correta:
( ) a) 594mm, 420mm e 07mm
( ) b) 841mm, 429mm e 10mm
( ) c) 1189mm, 841mm e 15mm
( ) d) 841mm , 594mm e 10mm
( ) e) 1189mm, 841mm e 10mm

Em Normas da ABNT, de acordo com a NBR 8403, dentre as várias aplicações de tipos de linhas, observe o quadro abaixo e marque com um X a afirmativa correta:
As linhas contínuas largas, contínuas estreitas e traço e ponto estreita, são utilizadas para representar, respectivamente:
( ) a) linhas de cotas; linhas auxiliares e planos de cortes.
( ) b) contornos e arestas visíveis; linhas de cotas e auxiliares e linhas de simetria.
( ) c) planos de cortes; arestas não visíveis e contornos visíveis.
( ) d) linhas de cotas; hachuras e contornos não visíveis.
( ) e) contornos visíveis; trajetórias e contornos não visíveis.

Correlacione as figuras referente a ângulos com suas respectivas definições:
(1) Ângulo raso
(2) Ângulo agudo
(3) Ângulo reto
(4) Ângulos suplementares
(5) Ângulo obtuso
(6) Ângulos complementares

Todas as coisas que estamos acostumados a ver, se apresentam aos nossos olhos como formas geométricas. Sejam as afirmativas abaixo sobre polígonos.
Marque a opção com as afirmativas corretas:
I. A soma dos comprimentos dos lados é chamado de períneo.
II. Polígonos são figuras formadas pela junção de segmentos de extremidade a extremidade, onde estes pontos de união são os vértices e os segmentos são os lados.
III. Quanto a natureza dos ângulos, os triângulos podem ser: agudânculo, retângulo e obtusângolo.
IV. Ângulos complementares são ângulos cuja soma de suas medidas é igual a 90⁰.
V. Quanto a dimensão dos lados, os triângulos podem ser: equilátero, isósceles e escaleno.
( ) a) I e III
( ) b) II, IV e V
( ) c) II, III e IV
( ) d) I, II e V
( ) e) III, IV e V

Sejam as afirmativas abaixo sobre quadriláteros.
Marque a opção com as afirmativas corretas:
I. Os trapézios são paralelogramas que apresentam apenas dois lados opostos paralelos. A altura é a maior distância entre as duas bases.
II. O paralelograma propriamente possui lados opostos congruentes e ângulos opostos congruentes (2 agudos) e suas diagonais são iguais.
III. Os quadriláteros se classificam em paralelogramas e trapézios.
IV. O losângo é um paralelograma que possui lados e ângulos opostos congruentes e suas diagonais são perpendiculares entre si.
( ) a) I e II
( ) b) I, II e III
( ) c) I, III e IV
( ) d) III e IV
( ) e) II, III e IV

A escala a ser escolhida para um desenho depende da complexidade do objeto a ser representado e da finalidade da representação. Em todos os casos a escala selecionada deve ser suficiente para permitir uma interpretação fácil e clara da informação representada.
Marque a afirmativa correta. De acordo com a NBR 8196, uma escala admissível para a redução de um desenho técnico é:
( ) a) 1:17
( ) b) 2:1
( ) c) 1:1
( ) d) 1:25
( ) e) 10:1

Sejam as afirmativas abaixo sobre Escalas.
Marque com um X a opção com as afirmativas corretas:
I. Os desenhos representados em escala guardam com o objeto real uma determinada semelhança, pois a figura desenhada e o objeto que ela representa são figuras semelhantes.
II. Os valores numéricos e angulares das medidas do objeto permanecem invariáveis em qualquer escala.
III. Escala natural é aquela utilizada quando o tamanho do desenho do objeto é maior do que o tamanho real do mesmo.
IV. Sendo escala, é a relação entre o tamanho do desenho do objeto e o seu tamanho real, pode-se dizer na escala 1:2, o desenho do objeto é duas vezes maior do que seu tamanho real.
( ) a) II, III e IV
( ) b) I e II
( ) c) I, II e III
( ) d) III e IV
( ) e) I e IV

As figuras abaixo representam desenhos em escala de redução. - O desenho maior está em escala de 1:25. - O desenho do meio tem a metade do tamanho do desenho maior. - O desenho menor tem a metade do tamanho do desenho do meio.
Qual a escala destes desenhos? Responda do menor para o maior.

Sejam as afirmativas abaixo sobre sistemas de projeções.
Marque com um X a opção com as afirmativas corretas:
I. A projeção cilíndrica, independe da posição do observador e pode ser paralela ou ortogonal.
II. Os elementos básicos da projeção são: o plano de projeção, o objeto, os raios projetantes e o centro de projeção.
III. A projeção cônica é a projeção, cujos raios projetantes que incidem no objeto e no plano de projeção, partem de um centro de projeção que está a uma distância finita do objeto.
IV. Sendo o método concebido por Gaspar Monge de representar com precisão, os objetos de três dimensões, em superfícies planas, pode-se afirmar que o sistema exige 3 planos ortogonais entre si.
( ) a) I, II e III
( ) b) II e III
( ) c) I e IV
( ) d) I, III e IV
( ) e) II, III e IV

Sejam as afirmativas abaixo sobre sistemas de projeções.
Marque a opção com as afirmativas corretas:
I. Os elementos básicos da projeção são: o plano horizontal, o objeto, o raio incidente, e o centro de projeção (observador).
II. As projeções se classificam em cilíndrica e cônica.
III. O desenho técnico utiliza um processo chamado caixa envolvente, no qual pressupõe-se que o objeto em estudo é projetado sobre cada uma das faces desta caixa, obtendo-se, com isto, quatro projeções do objeto.
IV. Atualmente a maioria dos países adota as projeções no 1 diedro. Entretanto alguns países com Estados Unidos, Canadá e Japão representam seus desenhos técnicos no 3 diedro.
( ) a) II e IV
( ) b) I, II e III
( ) c) II, III e IV
( ) d) I e III
( ) e) I, II e IV

Os desenhos básicos que compõem um projeto de arquitetura, a partir de projeções ortogonais, são: as plantas baixas, os cortes, as elevações ou fachadas, a planta de cobertura, a planta de localização ou implantação e a planta de situação. Sejam as afirmativas abaixo:
Marque a opção com as afirmativas corretas:
I. As plantas baixas, sempre que possível devem ser representadas na escala 1:100. Em projetos de edificações de grande porte, por inconveniência ou impossibilidade de tamanho do papel, é permissível o desenho na escala 1:75 ou 1:50.
II. Corte é o resultado da interseção de um plano vertical com o volume arquitetônico. Podem ser transversais (plano de corte na menor dimensão da edificação) ou longitudinais (na maior dimensão).
III. Nas plantas baixas devem ser indicada além do nível dos pisos em relação à cota 0,50 do terreno; a representação dos vãos de janelas abertas e a discrição do tipo de piso do banheiro e cozinha.
IV. A planta baixa deve conter as linhas de corte com setas indicando o sentido de visualização.
( ) a ) I e II
( ) b) II e IV
( ) c) I, III e IV
( ) d) II, III e IV
( ) e) I, II e III

Os desenhos básicos que compõem um projeto de arquitetura, a partir de projeções ortogonais, são: as plantas baixas, os cortes, as elevações ou fachadas, a planta de cobertura, a planta de localização ou implantação e a planta de situação. Sejam as afirmativas abaixo:
Marque a opção com as afirmativas corretas:
I. A planta baixa deve conter as linhas de corte com setas indicando o sentido de visualização.
II. Corte é o resultado da interseção de um plano horizontal com o volume arquitetônico. Podem ser transversos (plano de corte na maior dimensão da edificação) ou latitudinais (na menor dimensão).
III. Nas plantas baixas deve ser indicado além do nível dos pisos em relação à cota 0,00 do terreno e as aberturas de portas e janelas com suas medidas, os nomes e áreas dos ambientes, entre outras.
IV. As plantas baixas, sempre que possível devem ser representadas na escala 1:50. Em projetos de edificações de grande porte, por inconveniência ou impossibilidade de tamanho do papel, é permissível o desenho na escala 1:75 ou 1:100.
( ) a ) I e II
( ) b) I, II e III
( ) c) I, III e IV
( ) d) II e III
( ) e) II, III e IV

Sejam as afirmativas referente as plantas de corte:
Marque com um X a opção com as afirmativas corretas:
I. Nos cortes, as cotas são verticais (determinando as altura dos elementos construtivos) e horizontais (detrminando as larguras dos vãos).
II. No corte se representa tudo o que está atrás do plano secante, sendo que as linhas que estavam ocultas nas vistas ortogonais, passam a ficar visíveis.
III. Os cortes podem ser transversais (plano de corte na menor dimensão da edificação) ou longitudinais (na maior dimensão).
( ) a) I, II e III
( ) b) II e III
( ) c) I e II
( ) d) I e III
( ) e) só a II

Sejam as afirmativas referente as plantas de corte:
Marque com um X a opção com as afirmativas corretas:
I. Na planta baixa devem ser indicadas as linhas de corte bem como sua localização. A orientação dos cortes é feita na direção dos extremos mais significantes do espaço cortado.
II. Os cortes são representações de vistas ortográficas, obtidos quando imaginamos um plano vertical passando por uma construção, normalmente paralelo às paredes.
III. No corte se representa tudo o que está na frente do plano secante, tornando visíveis as linhas horizontais.
( ) a) só a II
( ) b) I e III
( ) c) I e II
( ) d) II e III
( ) e) I, II e III

Material
páginas com resultados encontrados.
páginas com resultados encontrados.
left-side-bubbles-backgroundright-side-bubbles-background

Experimente o Premium!star struck emoji

Acesse conteúdos dessa e de diversas outras disciplinas.

Libere conteúdos
sem pagar

Ajude estudantes e ganhe conteúdos liberados!

left-side-bubbles-backgroundright-side-bubbles-background

Experimente o Premium!star struck emoji

Acesse conteúdos dessa e de diversas outras disciplinas.

Libere conteúdos
sem pagar

Ajude estudantes e ganhe conteúdos liberados!

left-side-bubbles-backgroundright-side-bubbles-background

Experimente o Premium!star struck emoji

Acesse conteúdos dessa e de diversas outras disciplinas.

Libere conteúdos
sem pagar

Ajude estudantes e ganhe conteúdos liberados!

left-side-bubbles-backgroundright-side-bubbles-background

Experimente o Premium!star struck emoji

Acesse conteúdos dessa e de diversas outras disciplinas.

Libere conteúdos
sem pagar

Ajude estudantes e ganhe conteúdos liberados!

left-side-bubbles-backgroundright-side-bubbles-background

Experimente o Premium!star struck emoji

Acesse conteúdos dessa e de diversas outras disciplinas.

Libere conteúdos
sem pagar

Ajude estudantes e ganhe conteúdos liberados!

left-side-bubbles-backgroundright-side-bubbles-background

Experimente o Premium!star struck emoji

Acesse conteúdos dessa e de diversas outras disciplinas.

Libere conteúdos
sem pagar

Ajude estudantes e ganhe conteúdos liberados!

Questões resolvidas

As primeiras noções geométricas surgiram quando o homem teve a necessidade de definir “medidas”, isto é, a comparar as distâncias entre vários pontos e entre as formas e dimensões dos corpos que o rodeavam. Sejam as afirmativas abaixo sobre noções primitivas.
Marque a opção com as afirmativas corretas:
I. As dimensões de um sólido geométrico são definidas pela largura, comprimento e altura.
II. Por dois pontos distintos só passa uma única reta.
III. Quando um ponto muda constantemente de posição no espaço, percorrendo-o em várias direções, ele dará origem a uma linha poligonal.
IV. O plano é o conjunto das posições de uma reta que se desloca em trajetória perpendicular a si mesma.
V. O espaço é o conjunto de todos os pontos.
( ) a) I e III
( ) b) II, III e V
( ) c) II, III e IV
( ) d) I, II e III
( ) e) I, II e V

Sejam as afirmativas abaixo sobre geometria plana.
Marque a opção com as afirmativas corretas:
I. Quando um ponto muda constantemente de posição no espaço, percorrendo-o em várias direções, ele dará origem a uma linha curva.
II. Ponto médio é o ponto que divide o segmento em dois segmentos da mesma medida.
III. Por um ponto fora de uma reta dada só se pode traçar apenas uma reta paralela a ela.
IV. Segmentos de reta que possuem a mesma medida são chamados de bissetrizes.
V. O ponto pode ser considerado como a interseção de duas linhas e é representado por letras minúscula do alfabeto.
( ) a) II, III e IV
( ) b) I, III e V
( ) c) I, II e III
( ) d) I e V
( ) e) I, II e IV

Em desenhos técnicos devem ser utilizados formatos de papel da série A, conforme a NBR 16752, sendo o formato A0 o máximo, e A4 o mínimo. A figura abaixo representa esquematicamente uma folha de papel A1. Nessa folha, os valores de a, b e m (margem direita) são, respectivamente:
Marque com um X a afirmativa correta:
( ) a) 594mm, 420mm e 07mm
( ) b) 841mm, 429mm e 10mm
( ) c) 1189mm, 841mm e 15mm
( ) d) 841mm , 594mm e 10mm
( ) e) 1189mm, 841mm e 10mm

Em Normas da ABNT, de acordo com a NBR 8403, dentre as várias aplicações de tipos de linhas, observe o quadro abaixo e marque com um X a afirmativa correta:
As linhas contínuas largas, contínuas estreitas e traço e ponto estreita, são utilizadas para representar, respectivamente:
( ) a) linhas de cotas; linhas auxiliares e planos de cortes.
( ) b) contornos e arestas visíveis; linhas de cotas e auxiliares e linhas de simetria.
( ) c) planos de cortes; arestas não visíveis e contornos visíveis.
( ) d) linhas de cotas; hachuras e contornos não visíveis.
( ) e) contornos visíveis; trajetórias e contornos não visíveis.

Correlacione as figuras referente a ângulos com suas respectivas definições:
(1) Ângulo raso
(2) Ângulo agudo
(3) Ângulo reto
(4) Ângulos suplementares
(5) Ângulo obtuso
(6) Ângulos complementares

Todas as coisas que estamos acostumados a ver, se apresentam aos nossos olhos como formas geométricas. Sejam as afirmativas abaixo sobre polígonos.
Marque a opção com as afirmativas corretas:
I. A soma dos comprimentos dos lados é chamado de períneo.
II. Polígonos são figuras formadas pela junção de segmentos de extremidade a extremidade, onde estes pontos de união são os vértices e os segmentos são os lados.
III. Quanto a natureza dos ângulos, os triângulos podem ser: agudânculo, retângulo e obtusângolo.
IV. Ângulos complementares são ângulos cuja soma de suas medidas é igual a 90⁰.
V. Quanto a dimensão dos lados, os triângulos podem ser: equilátero, isósceles e escaleno.
( ) a) I e III
( ) b) II, IV e V
( ) c) II, III e IV
( ) d) I, II e V
( ) e) III, IV e V

Sejam as afirmativas abaixo sobre quadriláteros.
Marque a opção com as afirmativas corretas:
I. Os trapézios são paralelogramas que apresentam apenas dois lados opostos paralelos. A altura é a maior distância entre as duas bases.
II. O paralelograma propriamente possui lados opostos congruentes e ângulos opostos congruentes (2 agudos) e suas diagonais são iguais.
III. Os quadriláteros se classificam em paralelogramas e trapézios.
IV. O losângo é um paralelograma que possui lados e ângulos opostos congruentes e suas diagonais são perpendiculares entre si.
( ) a) I e II
( ) b) I, II e III
( ) c) I, III e IV
( ) d) III e IV
( ) e) II, III e IV

A escala a ser escolhida para um desenho depende da complexidade do objeto a ser representado e da finalidade da representação. Em todos os casos a escala selecionada deve ser suficiente para permitir uma interpretação fácil e clara da informação representada.
Marque a afirmativa correta. De acordo com a NBR 8196, uma escala admissível para a redução de um desenho técnico é:
( ) a) 1:17
( ) b) 2:1
( ) c) 1:1
( ) d) 1:25
( ) e) 10:1

Sejam as afirmativas abaixo sobre Escalas.
Marque com um X a opção com as afirmativas corretas:
I. Os desenhos representados em escala guardam com o objeto real uma determinada semelhança, pois a figura desenhada e o objeto que ela representa são figuras semelhantes.
II. Os valores numéricos e angulares das medidas do objeto permanecem invariáveis em qualquer escala.
III. Escala natural é aquela utilizada quando o tamanho do desenho do objeto é maior do que o tamanho real do mesmo.
IV. Sendo escala, é a relação entre o tamanho do desenho do objeto e o seu tamanho real, pode-se dizer na escala 1:2, o desenho do objeto é duas vezes maior do que seu tamanho real.
( ) a) II, III e IV
( ) b) I e II
( ) c) I, II e III
( ) d) III e IV
( ) e) I e IV

As figuras abaixo representam desenhos em escala de redução. - O desenho maior está em escala de 1:25. - O desenho do meio tem a metade do tamanho do desenho maior. - O desenho menor tem a metade do tamanho do desenho do meio.
Qual a escala destes desenhos? Responda do menor para o maior.

Sejam as afirmativas abaixo sobre sistemas de projeções.
Marque com um X a opção com as afirmativas corretas:
I. A projeção cilíndrica, independe da posição do observador e pode ser paralela ou ortogonal.
II. Os elementos básicos da projeção são: o plano de projeção, o objeto, os raios projetantes e o centro de projeção.
III. A projeção cônica é a projeção, cujos raios projetantes que incidem no objeto e no plano de projeção, partem de um centro de projeção que está a uma distância finita do objeto.
IV. Sendo o método concebido por Gaspar Monge de representar com precisão, os objetos de três dimensões, em superfícies planas, pode-se afirmar que o sistema exige 3 planos ortogonais entre si.
( ) a) I, II e III
( ) b) II e III
( ) c) I e IV
( ) d) I, III e IV
( ) e) II, III e IV

Sejam as afirmativas abaixo sobre sistemas de projeções.
Marque a opção com as afirmativas corretas:
I. Os elementos básicos da projeção são: o plano horizontal, o objeto, o raio incidente, e o centro de projeção (observador).
II. As projeções se classificam em cilíndrica e cônica.
III. O desenho técnico utiliza um processo chamado caixa envolvente, no qual pressupõe-se que o objeto em estudo é projetado sobre cada uma das faces desta caixa, obtendo-se, com isto, quatro projeções do objeto.
IV. Atualmente a maioria dos países adota as projeções no 1 diedro. Entretanto alguns países com Estados Unidos, Canadá e Japão representam seus desenhos técnicos no 3 diedro.
( ) a) II e IV
( ) b) I, II e III
( ) c) II, III e IV
( ) d) I e III
( ) e) I, II e IV

Os desenhos básicos que compõem um projeto de arquitetura, a partir de projeções ortogonais, são: as plantas baixas, os cortes, as elevações ou fachadas, a planta de cobertura, a planta de localização ou implantação e a planta de situação. Sejam as afirmativas abaixo:
Marque a opção com as afirmativas corretas:
I. As plantas baixas, sempre que possível devem ser representadas na escala 1:100. Em projetos de edificações de grande porte, por inconveniência ou impossibilidade de tamanho do papel, é permissível o desenho na escala 1:75 ou 1:50.
II. Corte é o resultado da interseção de um plano vertical com o volume arquitetônico. Podem ser transversais (plano de corte na menor dimensão da edificação) ou longitudinais (na maior dimensão).
III. Nas plantas baixas devem ser indicada além do nível dos pisos em relação à cota 0,50 do terreno; a representação dos vãos de janelas abertas e a discrição do tipo de piso do banheiro e cozinha.
IV. A planta baixa deve conter as linhas de corte com setas indicando o sentido de visualização.
( ) a ) I e II
( ) b) II e IV
( ) c) I, III e IV
( ) d) II, III e IV
( ) e) I, II e III

Os desenhos básicos que compõem um projeto de arquitetura, a partir de projeções ortogonais, são: as plantas baixas, os cortes, as elevações ou fachadas, a planta de cobertura, a planta de localização ou implantação e a planta de situação. Sejam as afirmativas abaixo:
Marque a opção com as afirmativas corretas:
I. A planta baixa deve conter as linhas de corte com setas indicando o sentido de visualização.
II. Corte é o resultado da interseção de um plano horizontal com o volume arquitetônico. Podem ser transversos (plano de corte na maior dimensão da edificação) ou latitudinais (na menor dimensão).
III. Nas plantas baixas deve ser indicado além do nível dos pisos em relação à cota 0,00 do terreno e as aberturas de portas e janelas com suas medidas, os nomes e áreas dos ambientes, entre outras.
IV. As plantas baixas, sempre que possível devem ser representadas na escala 1:50. Em projetos de edificações de grande porte, por inconveniência ou impossibilidade de tamanho do papel, é permissível o desenho na escala 1:75 ou 1:100.
( ) a ) I e II
( ) b) I, II e III
( ) c) I, III e IV
( ) d) II e III
( ) e) II, III e IV

Sejam as afirmativas referente as plantas de corte:
Marque com um X a opção com as afirmativas corretas:
I. Nos cortes, as cotas são verticais (determinando as altura dos elementos construtivos) e horizontais (detrminando as larguras dos vãos).
II. No corte se representa tudo o que está atrás do plano secante, sendo que as linhas que estavam ocultas nas vistas ortogonais, passam a ficar visíveis.
III. Os cortes podem ser transversais (plano de corte na menor dimensão da edificação) ou longitudinais (na maior dimensão).
( ) a) I, II e III
( ) b) II e III
( ) c) I e II
( ) d) I e III
( ) e) só a II

Sejam as afirmativas referente as plantas de corte:
Marque com um X a opção com as afirmativas corretas:
I. Na planta baixa devem ser indicadas as linhas de corte bem como sua localização. A orientação dos cortes é feita na direção dos extremos mais significantes do espaço cortado.
II. Os cortes são representações de vistas ortográficas, obtidos quando imaginamos um plano vertical passando por uma construção, normalmente paralelo às paredes.
III. No corte se representa tudo o que está na frente do plano secante, tornando visíveis as linhas horizontais.
( ) a) só a II
( ) b) I e III
( ) c) I e II
( ) d) II e III
( ) e) I, II e III

Prévia do material em texto

ENGENHARIA CIVIL 
DESENHO BÁSICO PROFª.: LÚCIA DE ABREU ROSAS 
 
Exercícios V1 
1) As primeiras noções geométricas surgiram quando o homem teve a necessidade de definir “medidas”, isto é, a 
comparar as distâncias entre vários pontos e entre as formas e dimensões dos corpos que o rodeavam. Sejam as 
afirmativas abaixo sobre noções primitivas. 
I. As dimensões de um sólido geométrico são definidas pela largura, comprimento e altura. 
II. Por dois pontos distintos só passa uma única reta. 
III. Quando um ponto muda constantemente de posição no espaço, percorrendo-o em várias direções, ele dará 
origem a uma linha poligonal. 
IV. O plano é o conjunto das posições de uma reta que se desloca em trajetória perpendicular a si mesma. 
V. O espaço é o conjunto de todos os pontos. 
Marque a opção com as afirmativas corretas: 
( ) a) I e III ( ) b) II, III e V ( ) c) II, III e IV ( ) d) I, II e III ( ) e) I, II e V 
 
2) Sejam as afirmativas abaixo sobre geometria plana. 
I. Quando um ponto muda constantemente de posição no espaço, percorrendo-o em várias direções, ele dará 
origem a uma linha curva. 
II. Ponto médio é o ponto que divide o segmento em dois segmentos da mesma medida. 
III. Por um ponto fora de uma reta dada só se pode traçar apenas uma reta paralela a ela. 
IV. Segmentos de reta que possuem a mesma medida são chamados de bissetrizes. 
V. O ponto pode ser considerado como a interseção de duas linhas e é representado por letras minúscula do 
alfabeto. 
Marque a opção com as afirmativas corretas: 
( ) a) II, III e IV ( ) b) I, III e V ( ) c) I, II e III ( ) d) I e V ( ) e) I, II e IV 
 
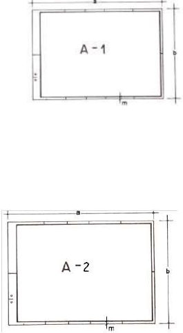
3) Em desenhos técnicos devem ser utilizados formatos de papel da série A, conforme a NBR 16752, sendo o 
formato A0 o máximo, e A4 o mínimo. A figura abaixo representa esquematicamente uma folha de papel A1. Nessa 
folha, os valores de a, b e m (margem direita) são, respectivamente: 
 
Marque com um X a afirmativa correta: 
( ) a) 594mm, 420mm e 07mm 
( ) b) 841mm, 429mm e 10mm 
( ) c) 1189mm, 841mm e 15mm 
( ) d) 841mm , 594mm e 10mm 
( ) e) 1189mm, 841mm e 10mm 
 
4) Em desenhos técnicos devem ser utilizados formatos de papel da série A, conforme a NBR 16752, sendo o 
formato A0 o máximo, e A4 o mínimo. A figura abaixo representa esquematicamente uma folha de papel A2. Nessa 
folha, os valores de a, b e m (margem direita) são, respectivamente: 
 
5) Marque com um X a afirmativa correta: 
( ) a) 594mm, 420mm e 07mm 
( ) b) 841mm, 429mm e 10mm 
( ) c) 297mm, 210mm e 07mm 
( ) d) 841mm, 594mm e 10mm 
( ) e) 420mm, 297mm e 10m
6) Em Normas da ABNT, de acordo com a NBR 8403, dentre as várias aplicações de tipos de linhas, observe o 
quadro abaixo e marque com um X a afirmativa correta: 
 
Linha Denominação 
 
 
As linhas contínuas largas, contínuas estreitas e traço e ponto estreita, são utilizadas para representar, 
respectivamente: 
( ) a) linhas de cotas; linhas auxiliares e planos de cortes. 
( ) b) contornos e arestas visíveis; linhas de cotas e auxiliares e linhas de simetria. 
( ) c) planos de cortes; arestas não visíveis e contornos visíveis. 
( ) d) linhas de cotas; hachuras e contornos não visíveis. 
( ) e) contornos visíveis; trajetórias e contornos não visíveis. 
 
7) Correlacione as figuras referente a ângulos com suas respectivas definições: 
(1) Ângulo raso ( ) 
(2) Ângulo agudo 
(3) Ângulo reto 
 
(4) Ângulos suplementares 
 
 
(5) Ângulo obtuso 
 
( ) 
 
 
( ) 
 
 
 
( ) 
 
 
( ) 
 
(6) Ângulos complementares 
 
 
 ( ) 
 
 
8) Todas as coisas que estamos acostumados a ver, se apresentam aos nossos olhos como formas geométricas. 
Sejam as afirmativas abaixo sobre polígonos. 
I. A soma dos comprimentos dos lados é chamado de períneo. 
II. Polígonos são figuras formadas pela junção de segmentos de extremidade a extremidade, onde estes pontos 
de união são os vértices e os segmentos são os lados. 
III. Quanto a natureza dos ângulos, os triângulos podem ser: agudânculo, retângulo e obtusângolo. 
IV. Ângulos complementares são ângulos cuja soma de suas medidas é igual a 90⁰ 
V. Quanto a dimensão dos lados, os triângulos podem ser: equilátero, isósceles e escaleno. 
Marque a opção com as afirmativas corretas: 
( ) a) I e III ( ) b) II, IV e V ( ) c) II, III e IV ( ) d) I, II e V ( ) e) III, IV e V 
 
9) Sejam as afirmativas abaixo sobre quadriláteros. 
I. Os trapézios são paralelogramas que apresentam apenas dois lados opostos paralelos. A altura é a maior 
distância entre as duas bases. 
II. O paralelograma propriamente possui lados opostos congruentes e ângulos opostos congruentes (2 agudos) e 
suas diagonais são iguais. 
III. Os quadriláteros se classificam em paralelogramas e trapézios. 
IV. O losângo é um paralelograma que possui lados e ângulos opostos congruentes e suas diagonais são 
perpendiculares entre si. 
Marque a opção com as afirmativas corretas: 
( ) a) I e II ( ) b) I, II e III ( ) c) I, III e IV ( ) d) III e IV ( ) e) II, III e IV 
10) A escala a ser escolhida para um desenho depende da complexidade do objeto e da finalidade da 
representação. 
Em todos os casos a escala selecionada deve ser suficiente para permitir uma interpretação fácil e clara da 
informação representada. A escala e o tamanho do objeto ou elemento em questão são parâmetros para a escolha 
do formato da folha de desenho.” 
Marque a afirmativa correta. De acordo com a NBR 8196, uma escala admissível para a ampliação de um desenho 
técnico é: 
( ) a) 1:20 ( ) b) 1:1 ( ) c) 2:1 ( ) d) 1:35 ( ) e) 17:1 
 
11) A escala a ser escolhida para um desenho depende da complexidade do objeto a ser representado e da 
finalidade da representação. Em todos os casos a escala selecionada deve ser suficiente para permitir uma 
interpretação fácil e clara da informação representada. 
Marque a afirmativa correta. De acordo com a NBR 8196, uma escala admissível para a redução de um desenho 
técnico é: 
( ) a) 1:17 ( ) b) 2:1 ( ) c) 1:1 ( ) d) 1:25 ( ) e) 10:1 
 
12) Sejam as afirmativas abaixo sobre Escalas. 
I. Os desenhos representados em escala guardam com o objeto real uma determinada semelhança, pois a figura 
desenhada e o objeto que ela representa são figuras semelhantes. 
II. Os valores numéricos e angulares das medidas do objeto permanecem invariáveis em qualquer escala. 
III. Escala natural é aquela utilizada quando o tamanho do desenho do objeto é maior do que o tamanho real do 
mesmo. 
IV. Sendo escala, é a relação entre o tamanho do desenho do objeto e o seu tamanho real, pode-se dizer na escala 
1:2, o desenho do objeto é duas vezes maior do que seu tamanho real. 
Marque com um X a opção com as afirmativas corretas: 
( ) a) II, III e IV ( ) b) I e II ( ) c) I, II e III ( ) d) III e IV ( ) e) I e IV 
 
13) As figuras abaixo representam desenhos em escala de redução. 
- O desenho maior está em escala de 1:25. 
- O desenho do meio tem a metade do tamanho do desenho maior. 
- O desenho menor tem a metade do tamanho do desenho do meio. 
Qual a escala destes desenhos? Responda do menor para o maior. 
 
 
 
 
 14) Sejam as afirmativas abaixo sobre sistemas de projeções. 
I. A projeção cilíndrica, independe da posição do observador e pode ser paralela ou ortogonal. 
II. Os elementos básicos da projeção são: o plano de projeção, o objeto, os raios projetantes e o centro de 
projeção. 
III. A projeção cônica é a projeção, cujos raios projetantes que incidem no objeto e no plano de projeção, partem 
de um centro de projeção que está a uma distância finita do objeto. 
IV. Sendo o método concebido por Gaspar Monge de representar com precisão, os objetos de três dimensões, em 
superfícies planas, pode-se afirmar que o sistema exige 3 planos ortogonais entre si. 
Marque com um X a opção com as afirmativascorretas: 
( ) a) I, II e III ( ) b) II e III ( ) c) I e IV ( ) d) I, III e IV ( ) e) II, III e IV 
 
15) Sejam as afirmativas abaixo sobre sistemas de projeções. 
I. Os elementos básicos da projeção são: o plano horizontal, o objeto, o raio incidente, e o centro de projeção 
(observador). 
II. As projeções se classificam em cilíndrica e cônica. 
III. O desenho técnico utiliza um processo chamado caixa envolvente, no qual pressupõe-se que o objeto em 
estudo é projetado sobre cada uma das faces desta caixa, obtendo-se, com isto, quatro projeções do objeto. 
IV. Atualmente a maioria dos países adota as projeções no 1 diedro. Entretanto alguns países com Estados Unidos, 
Canadá e Japão representam seus desenhos técnicos no 3 diedro. 
Marque a opção com as afirmativas corretas: 
( ) a) II e IV ( ) b) I, II e III ( ) c) II, III e IV ( ) d) I e III ( ) e) I, II e IV 
 
 16) Com relação ao sistema de projeções, indique o conjunto correto das projeções ortográficas da peça apresentada 
em perspectiva: 
 
 
 
 
 
 
 
 
 
17) Com relação ao sistema de projeções, indique o conjunto correto das projeções ortográficas da peça apresentada 
em perspectiva: 
 
 
 
 18) Identifique e enumere as projeções correspondentes a cada peça apresentada em perspectiva. 
 
 
(1) 
 
 
 
 
 (2) 
 
 
 
 
(3) 
 
 
 
(4) 
 
 
 
 
(5) 
 
 
 
 
 (6) 
 
 
 
 
19- Os desenhos básicos que compõem um projeto de arquitetura, a partir de projeções ortogonais, são: as plantas 
baixas, os cortes, as elevações ou fachadas, a planta de cobertura, a planta de localização ou implantação e a planta 
de situação. Sejam as afirmativas abaixo: 
I. As plantas baixas, sempre que possível devem ser representadas na escala 1:100. Em projetos de edificações de 
grande porte, por inconveniência ou impossibilidade de tamanho do papel, é permissível o desenho na escala 1:75 ou 
1:50. 
II. Corte é o resultado da interseção de um plano vertical com o volume arquitetônico. Podem ser transversais (plano 
de corte na menor dimensão da edificação) ou longitudinais (na maior dimensão). 
III. Nas plantas baixas devem ser indicada além do nível dos pisos em relação à cota 0,50 do terreno; a representação 
dos vãos de janelas abertas e a discrição do tipo de piso do banheiro e cozinha. 
IV. A planta baixa deve conter as linhas de corte com setas indicando o sentido de visualização. 
Marque a opção com as afirmativas corretas: 
( ) a ) I e II ( ) b) ) II e IV ( ) c) I, III e IV ( ) d) II, III e IV ( ) e) I, II e III 
 
20 – Os desenhos básicos que compõem um projeto de arquitetura, a partir de projeções ortogonais, são: as plantas 
baixas, os cortes, as elevações ou fachadas, a planta de cobertura, a planta de localização ou implantação e a planta 
de situação. Sejam as afirmativas abaixo: 
I. A planta baixa deve conter as linhas de corte com setas indicando o sentido de visualização. 
II. Corte é o resultado da interseção de um plano horizontal com o volume arquitetônico. Podem ser transversos (plano 
de corte na maior dimensão da edificação) ou latitudinais (na menor dimensão). 
III. Nas plantas baixas deve ser indicado além do nível dos pisos em relação à cota 0,00 do terreno e as aberturas de 
portas e janelas com suas medidas, os nomes e áreas dos ambientes, entre outras. 
IV. As plantas baixas, sempre que possível devem ser representadas na escala 1:50. Em projetos de edificações de 
grande porte, por inconveniência ou impossibilidade de tamanho do papel, é permissível o desenho na escala 1:75 ou 
1:100 
Marque a opção com as afirmativas corretas: 
( ) a ) I e II ( ) b) I, II e III ( ) c) I, III e IV ( ) d) II e III ( ) e) II, III e IV 
 
21 – Sejam as afirmativas referente as plantas de corte: 
I. Nos cortes, as cotas são verticais (determinando as altura dos elementos construtivos) e horizontais (detrminando 
as larguras dos vãos). 
II. No corte se representa tudo o que está atrás do plano secante, sendo que as linhas que estavam ocultas nas vistas 
ortogonais, passam a ficar visíveis. 
III. Os cortes podem ser transversais (plano de corte na menor dimensão da edificação) ou longitudinais (na maior 
dimensão). 
Marque com um X a opção com as afirmativas corretas: 
( ) a) I, II e III ( ) b) II e III ( ) c) I e II ( ) d) I e III ( ) e) só a II 
 
22 - Sejam as afirmativas referente as plantas de corte: 
I. Na planta baixa devem ser indicadas as linhas de corte bem como sua localização. A orientação dos cortes é feita 
na direção dos extremos mais significantes do espaço cortado. 
II. Os cortes são representações de vistas ortográficas, obtidos quando imaginamos um plano vertical passando por 
uma construção, normalmente paralelo às paredes. 
III. No corte se representa tudo o que está na frente do plano secante, tornando visíveis as linhas horizontais. 
Marque com um X a opção com as afirmativas corretas: 
( ) a) só a II ( ) b) I e III ( ) c) I e II ( ) d) II e III ( ) e) I, II e III 
 
 
Questões discursivas: 
- Escalas: noções básicas relação p/ achar medida real ou medida do desenho 
- Noções de geometria: sólidos geométricos

Mais conteúdos dessa disciplina