Logo Passei Direto
Buscar
Material
páginas com resultados encontrados.
páginas com resultados encontrados.

Prévia do material em texto

3
.
0
0
3
.
0
0
0
.
1
5
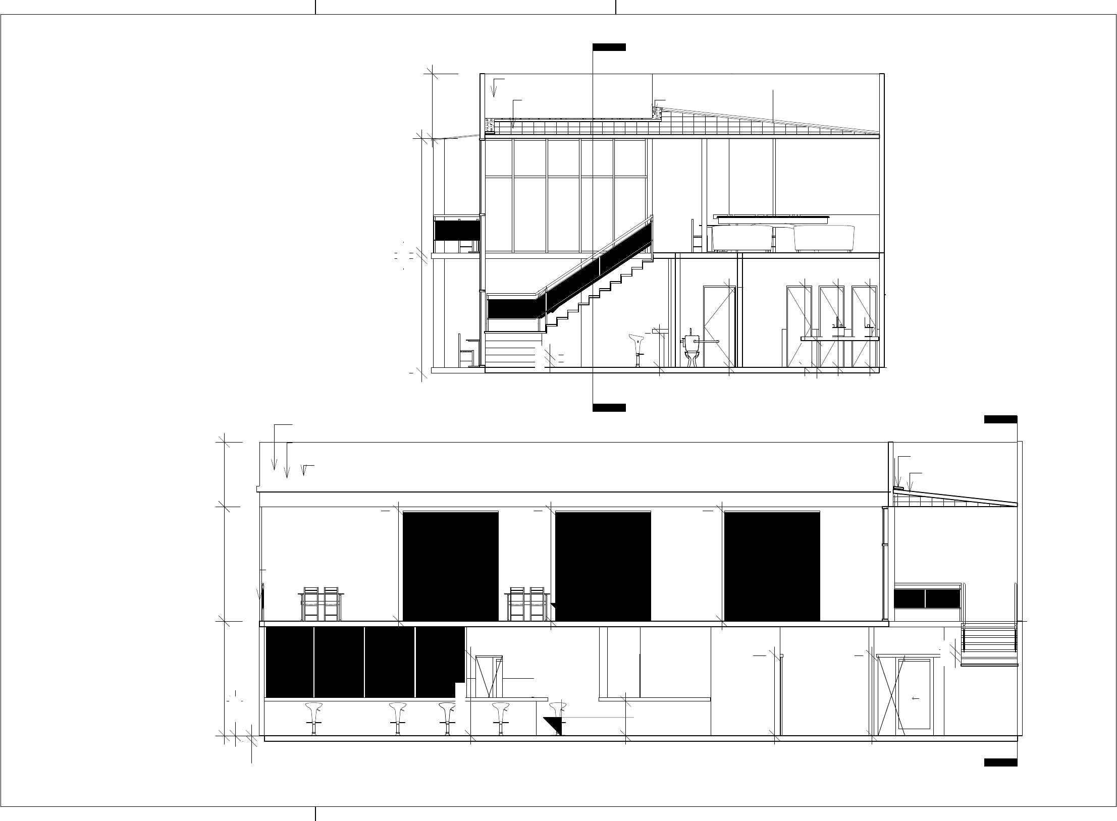
guarda corpo
0
.
1
9
0
.
9
0
2
.
1
0
2
.
1
0
2
.
1
0
2
.
1
0
0
.
7
0
1
.
7
0
platibanda
telha de fibrocimento rufo
PNE BHO FEMBALCÃO
Área de bilhar
Térreo
Superior
Parede de vidro
0
.
1
5
0
.
9
0
3
.
0
0
balcão
Caixacozinha
2
.
1
0
0
.
9
0
2
.
1
0
2
.
1
0porta de correr
porta de correr
porta de correr
2
.
9
0
2
.
9
0
2
.
9
0
3
.
0
0
platibanda
telhado de vidro lâminado
Guarda Corpo
guarda corpo
Telha de Fribrocimento
1
.
7
0
PV
térreo
0.00
Rufo
Rufo
0
.
1
9
pav 1
3.00
CORTE LONGITUDIAL
CORTE TRANSVERSAL
	Sheets and Views
	Layout1